← Rutland County Council

Status

Unknown Change of use
Received
03 Jan 2025
New homes
4

Full proposal

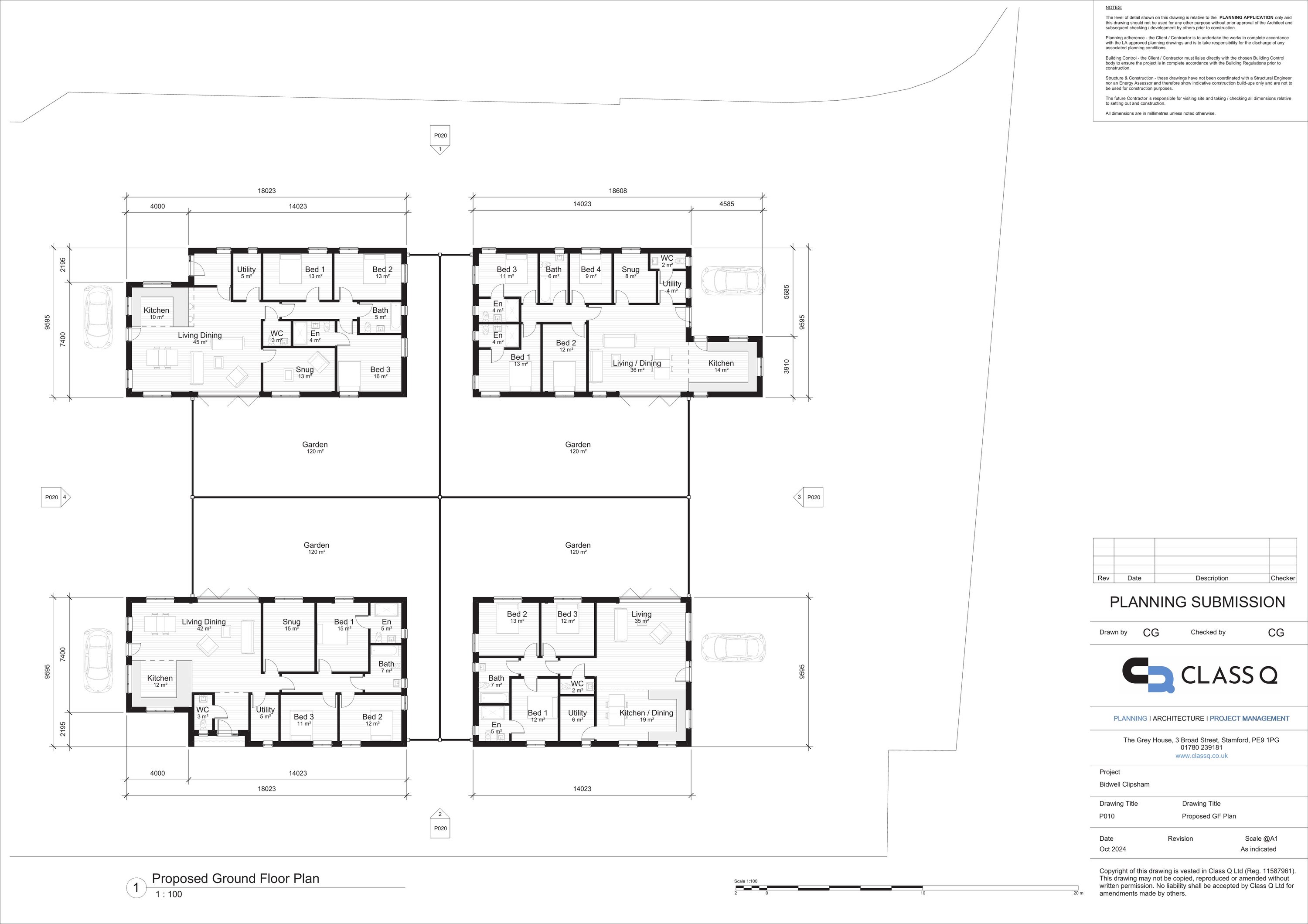
Proposed change of use of an agricultural barn to 4 dwellings.

Documents

Representations
Archived · Original link
Consultee Comment
Archived · Original link
Representations
Archived · Original link
Representations
Archived · Original link
Decision Notice
Archived · Original link
Drawing Existing
Archived · Original link
Drawing Proposed
Archived · Original link
Drawing Existing
Archived · Original link
Drawing Proposed
Archived · Original link
Drawing Existing/Proposed
Archived · Original link
Drawing Existing
Archived · Original link
Drawing Proposed
Archived · Original link
Supporting Document
Archived · Original link
Supporting Document
Archived · Original link

Have your say

Your comment matters. Councils must consider every representation that raises material planning considerations.

Write a comment