← Rutland County Council

Status

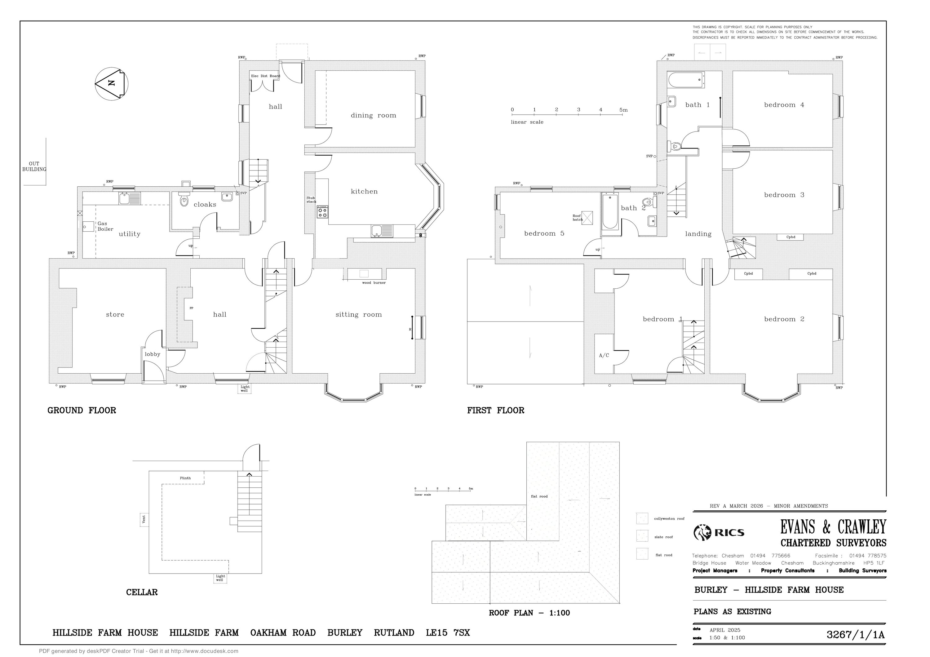
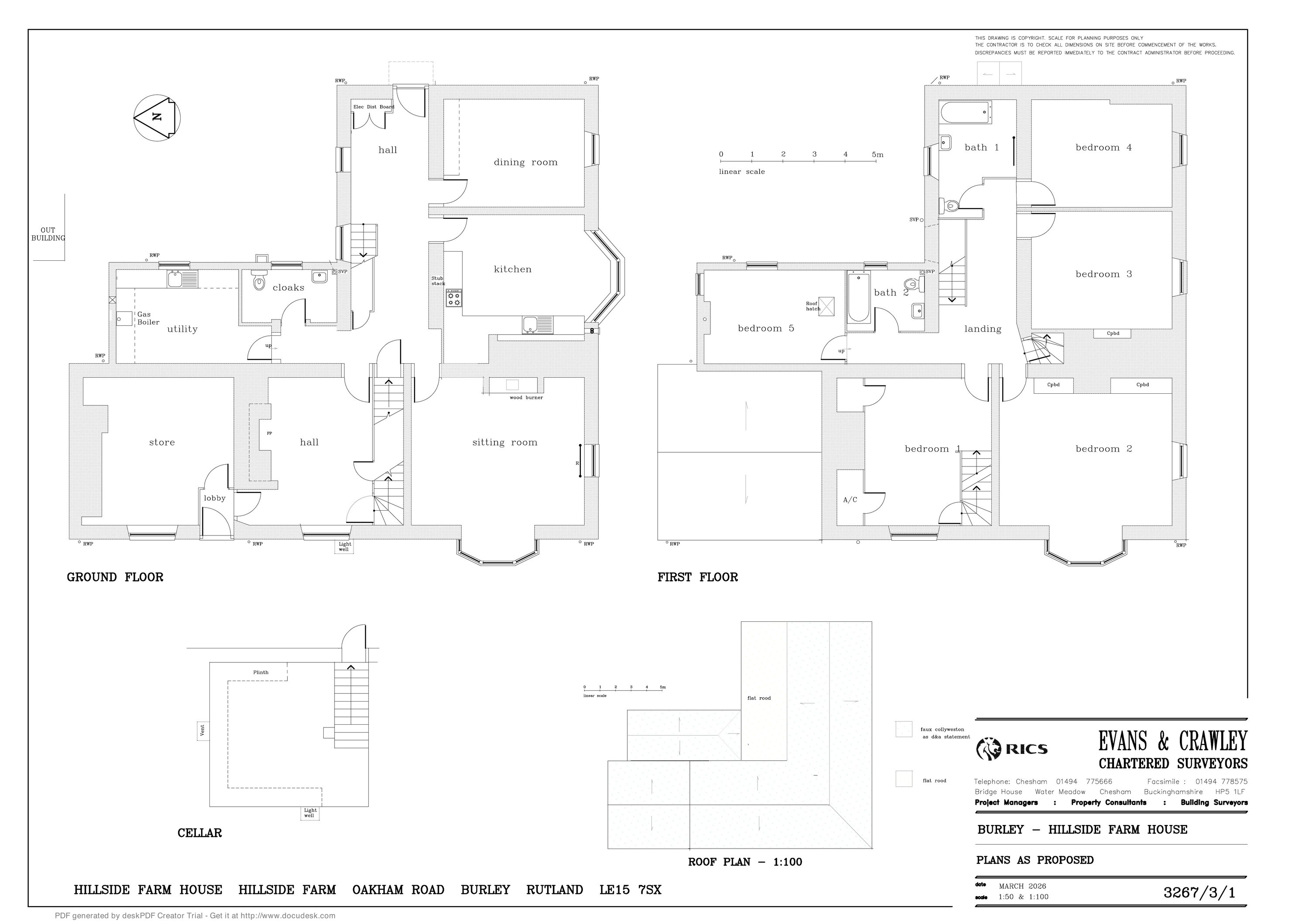
Registered Listed building
Received
Last month
New homes
0

Full proposal

Re-roofing of the dwelling, replacing the Collyweston with conservation stone slates.

Documents

Drawing Proposed
Archived · Original link
Drawing Existing
Archived · Original link
Drawing Existing
Archived · Original link
Drawing Proposed
Archived · Original link
Drawing Proposed
Archived · Original link
Drawing Existing
Archived · Original link
Supporting Document
Archived · Original link
Drawing Existing
Archived · Original link
Supporting Document
Archived · Original link

Have your say

Your comment matters. Councils must consider every representation that raises material planning considerations.

Write a comment