← Rutland County Council

Status

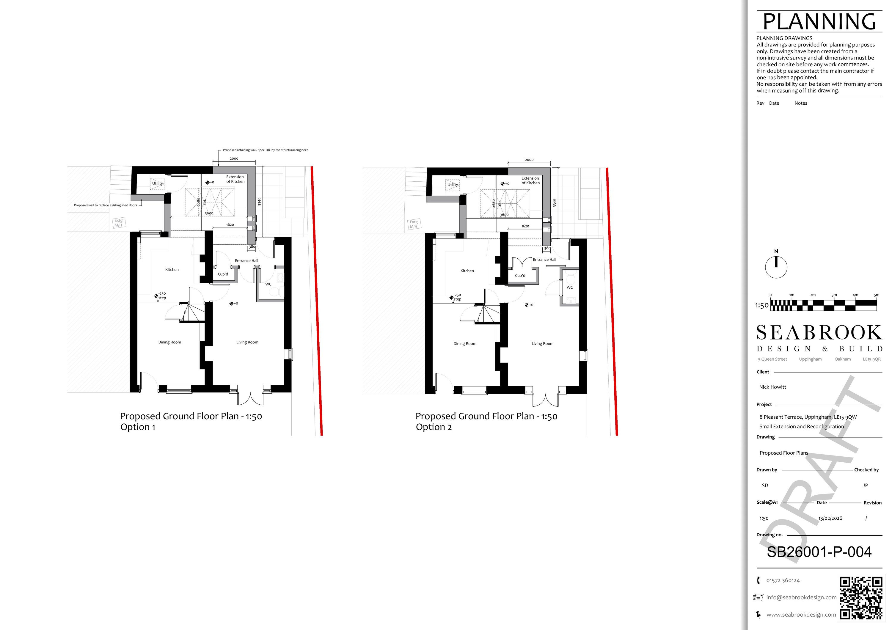
Registered House extension
Received
Last month
New homes
0

Full proposal

Small extension to front elevation not surpassing current building line of house with minor internal reconfiguration.

Documents

Drawing Existing
Archived · Original link
Drawing Existing
Archived · Original link
Drawing Proposed
Archived · Original link
Drawing Proposed
Archived · Original link
Notified Neighbour List
Archived · Original link

Have your say

Your comment matters. Councils must consider every representation that raises material planning considerations.

Write a comment