← Salford City Council

Status

Pending House extension
Received
Not recorded
New homes
0

Full proposal

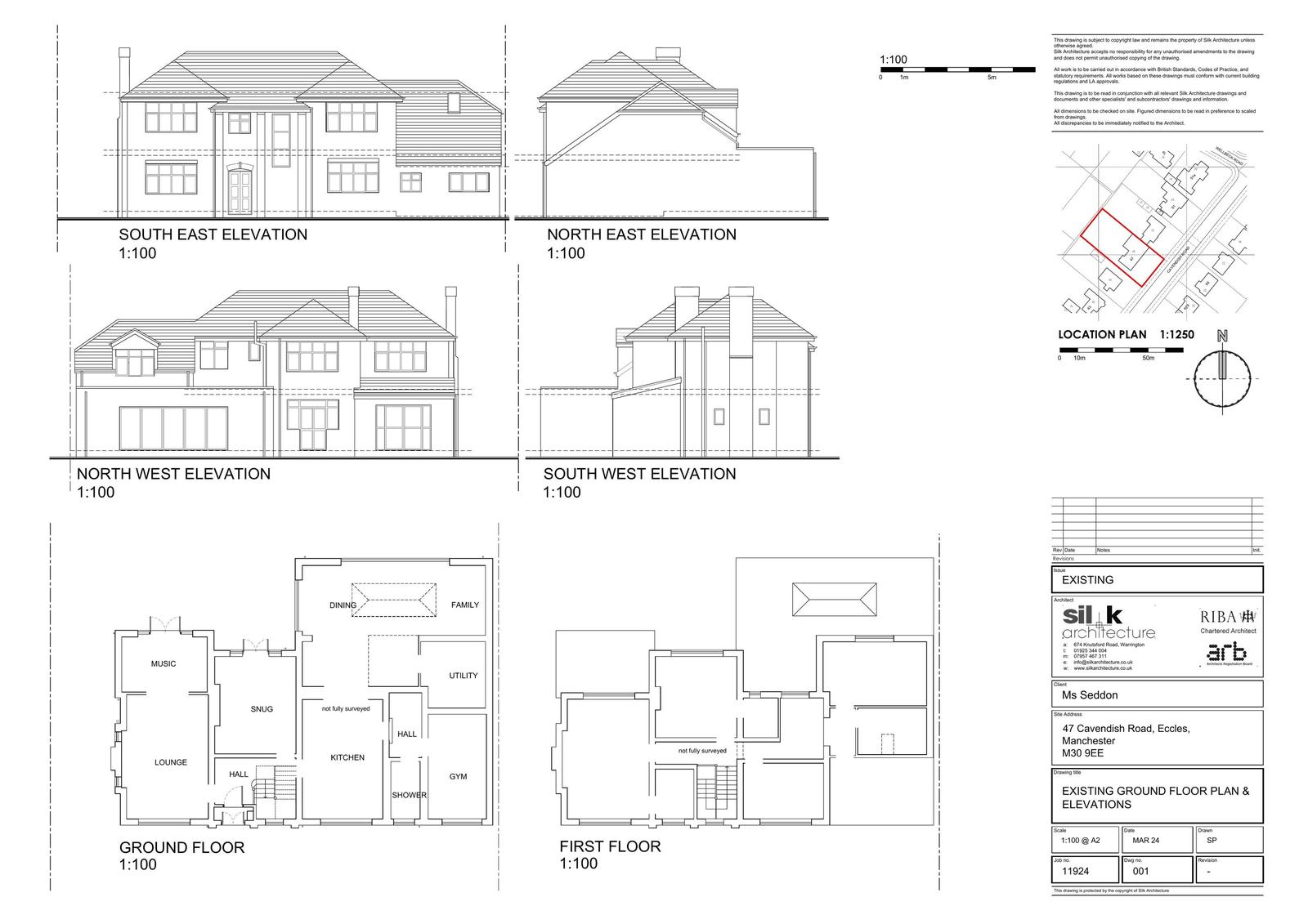
Reference PA/2024/1135 Application type Householder planning permission Site address 47 Cavendish Road, ECCLES, MANCHESTER, M30 9EE Description Erection of a single storey front porch and side extension and amendment to driveway, including the erection of a new front wall with gates Status Decision Made Decision date 28/3/2025

Documents

Uncategorised
Archived · Original link
Uncategorised
Archived · Original link
Uncategorised
Archived · Original link
Uncategorised
Archived · Original link
Uncategorised
Archived · Original link
Uncategorised
Archived · Original link
Uncategorised
Archived · Original link
Uncategorised
Archived · Original link
Uncategorised
Archived · Original link
Uncategorised
Archived · Original link

Have your say

Your comment matters. Councils must consider every representation that raises material planning considerations.

Write a comment