← Salford City Council

Status

Pending Change of use
Received
Not recorded
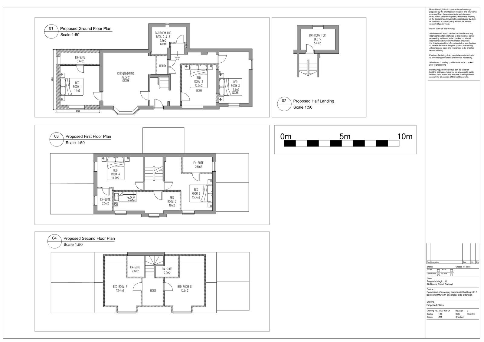
New homes
8

Full proposal

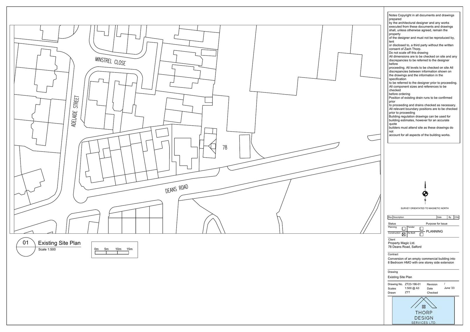
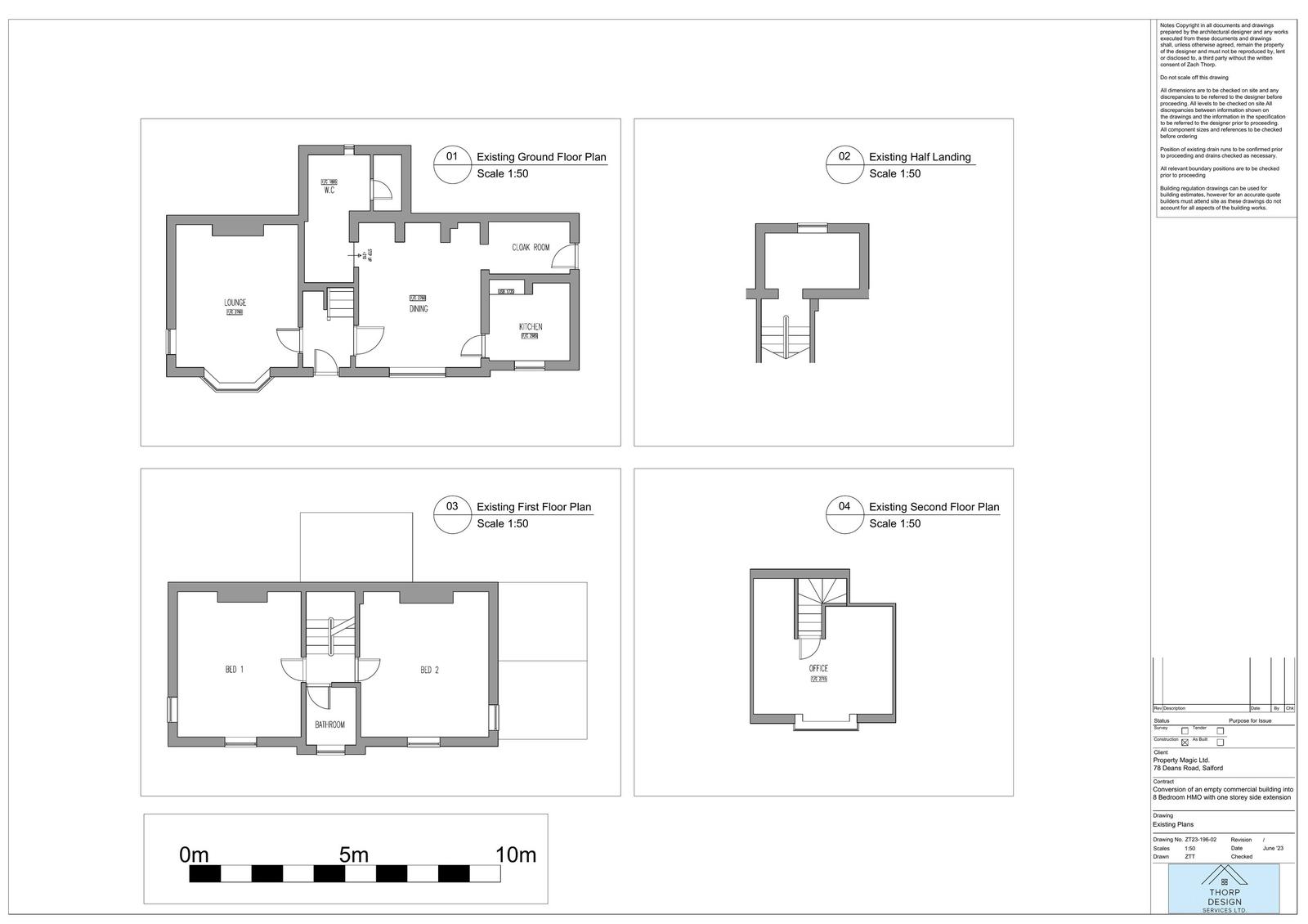
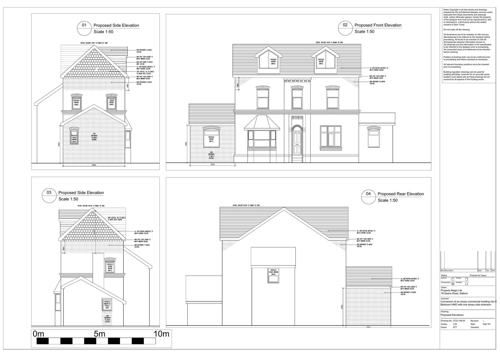
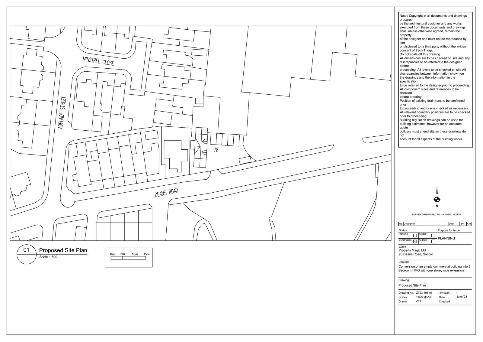
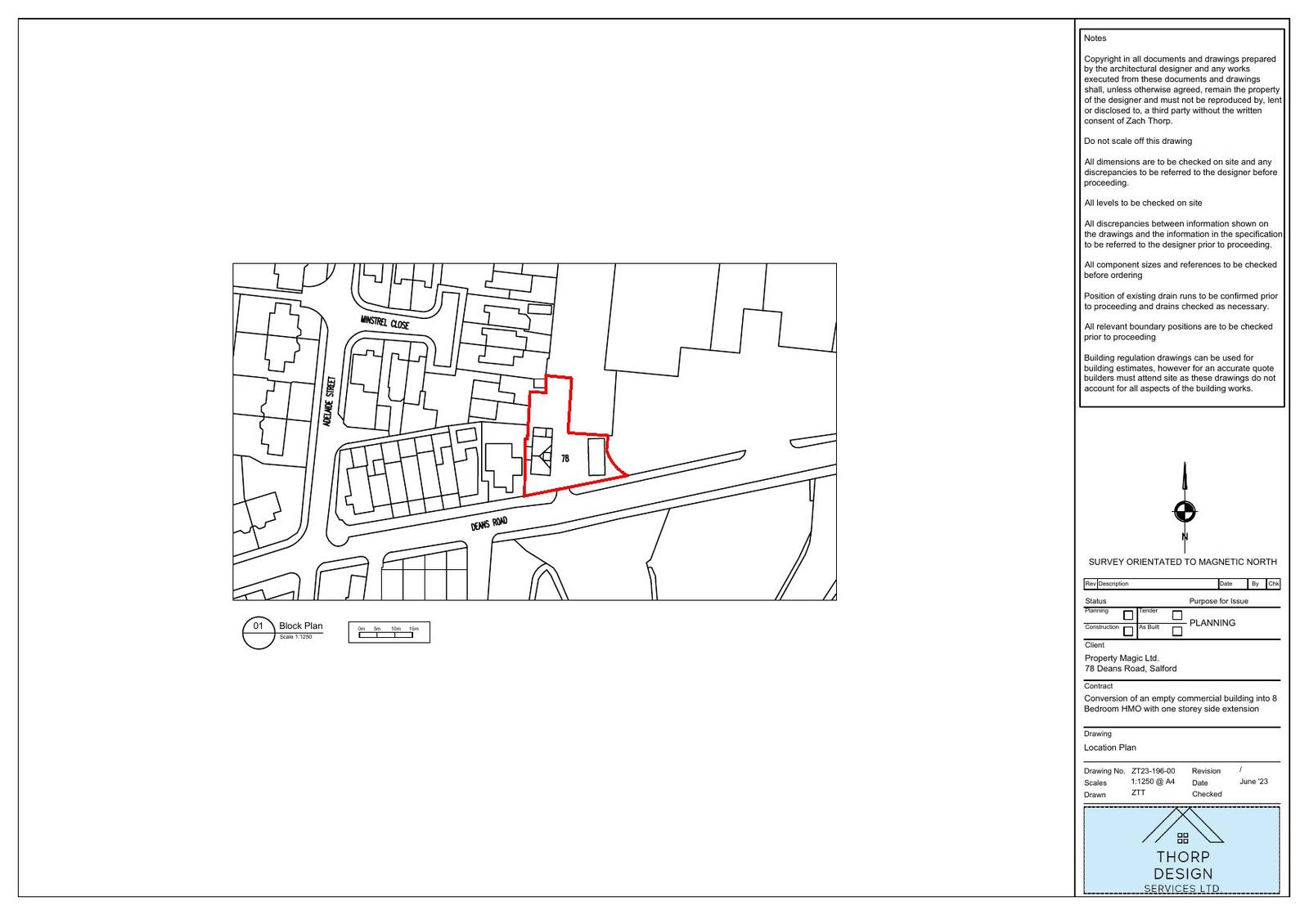
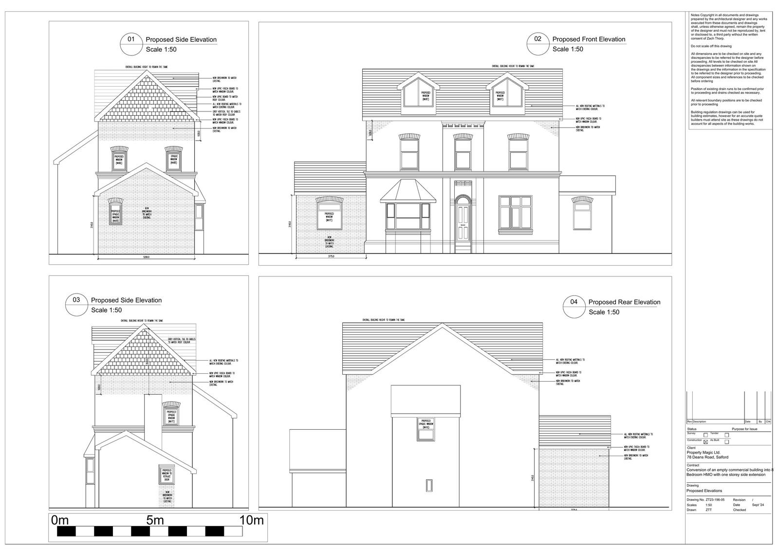
Reference PA/2024/1425 Application type Full planning permission Site address 78 Deans Road, SWINTON, MANCHESTER, M27 0JF Description Conversion of vacant children’s nursery into an 8-occupant House in Multiple Occupation (HMO) (sui generis) with a single storey side extension, front dormers and alterations to the elevations and roof. Status Decision Made Decision date 16/5/2025

Documents

Uncategorised
Archived · Original link
Uncategorised
Archived · Original link
Uncategorised
Archived · Original link
Uncategorised
Archived · Original link
Uncategorised
Archived · Original link
Uncategorised
Archived · Original link
Uncategorised
Archived · Original link
Uncategorised
Archived · Original link
Uncategorised
Archived · Original link
Uncategorised
Archived · Original link
Uncategorised
Archived · Original link
Uncategorised
Archived · Original link
Uncategorised
Archived · Original link
Uncategorised
Archived · Original link
Uncategorised
Archived · Original link
Uncategorised
Archived · Original link
Uncategorised
Archived · Original link
Uncategorised
Archived · Original link
Uncategorised
Archived · Original link
Uncategorised
Archived · Original link

Have your say

Your comment matters. Councils must consider every representation that raises material planning considerations.

Write a comment