← Salford City Council

Status

Pending House extension
Received
Not recorded
New homes
0

Full proposal

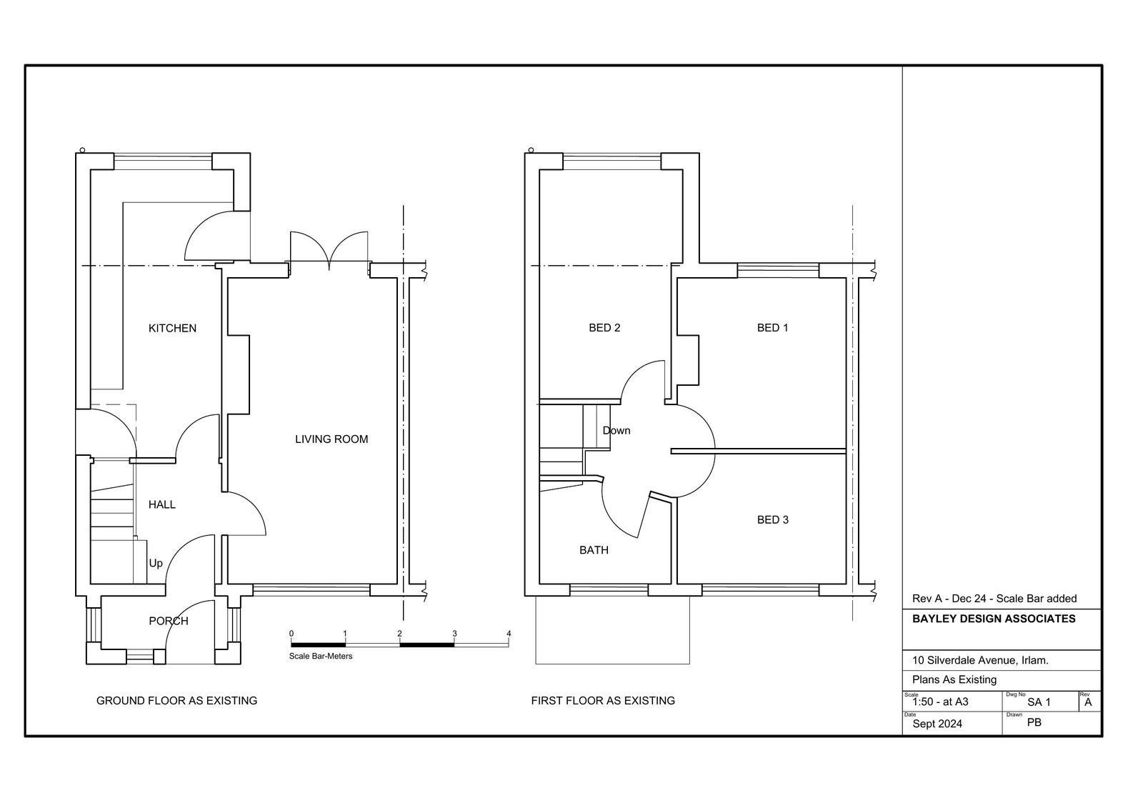
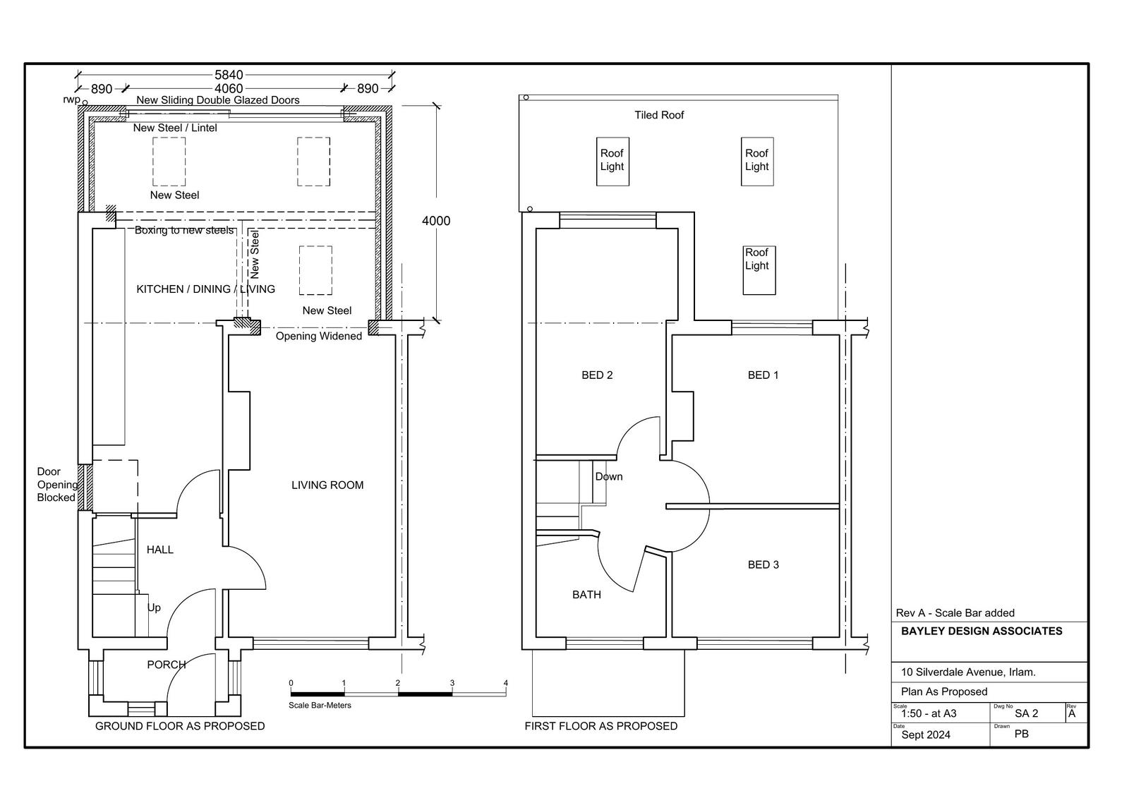
Reference PA/2024/1531 Application type Householder planning permission Site address 10 Silverdale Avenue, Irlam, M44 6HQ Description Erection of a single storey rear extension including external alterations Status Decision Made Decision date 26/2/2025

Documents

Uncategorised
Archived · Original link
Uncategorised
Archived · Original link
Uncategorised
Archived · Original link
Uncategorised
Archived · Original link
Uncategorised
Archived · Original link
Uncategorised
Archived · Original link
Uncategorised
Archived · Original link
Uncategorised
Archived · Original link

Have your say

Your comment matters. Councils must consider every representation that raises material planning considerations.

Write a comment