← Salford City Council

Status

Pending Change of use
Received
Not recorded
New homes
0

Full proposal

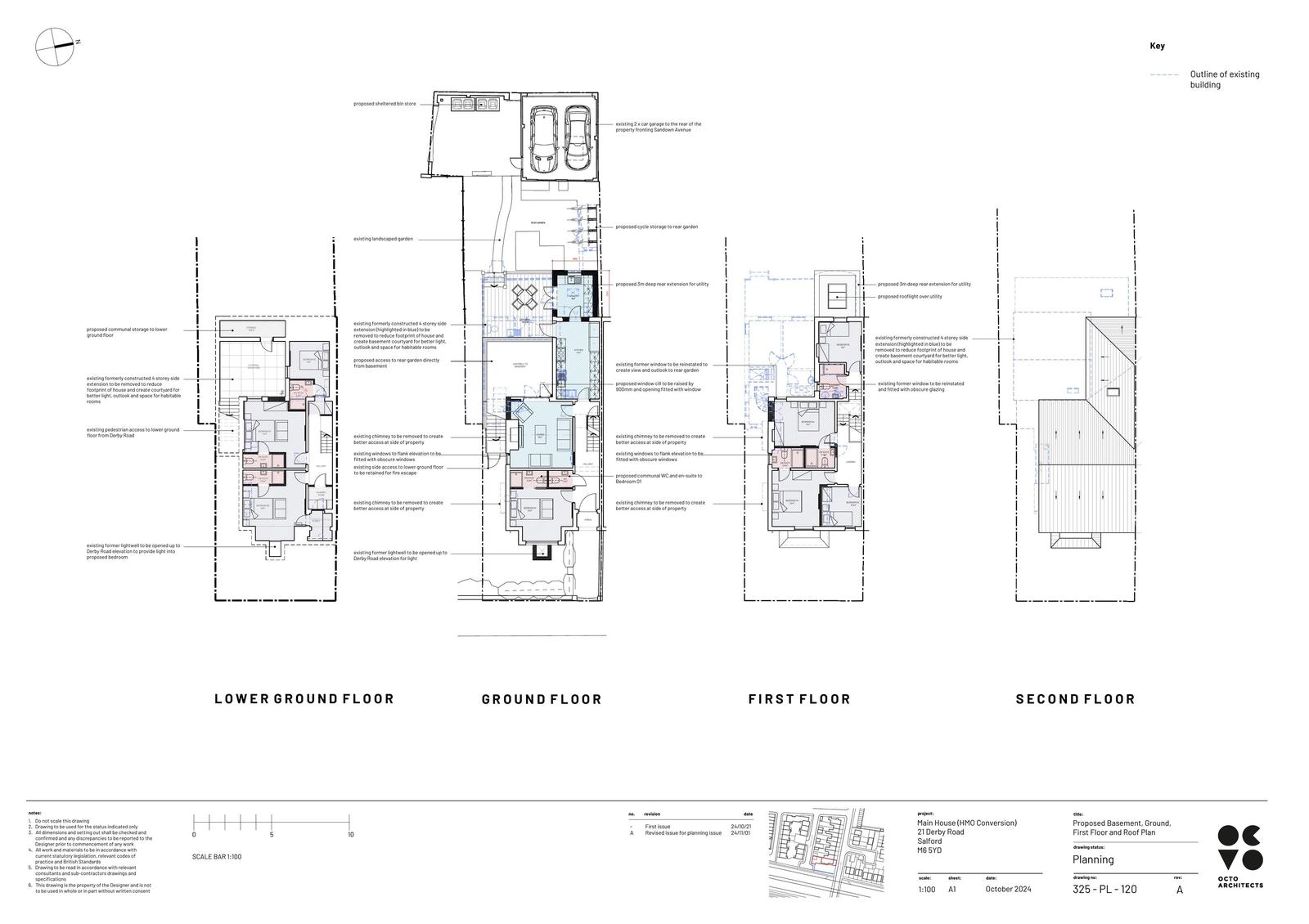
Reference PA/2024/1650 Application type Full planning permission Site address 21 Derby Road, SALFORD, M6 5YD Description Change of use from existing dwellinghouse (use class C3) to a 8 occupant House in Multiple Occupation (HMO) (sui generis), partial demolition of existing dwelling, erection of single storey rear extension, basement conversion with a lightwell, bin and cycle stores, patio to the rear, new access stairs. Status Decision Made Decision date 07/3/2025

Documents

Uncategorised
Archived · Original link
Uncategorised
Archived · Original link
Uncategorised
Archived · Original link
Uncategorised
Archived · Original link
Uncategorised
Archived · Original link
Uncategorised
Archived · Original link
Uncategorised
Archived · Original link
Uncategorised
Archived · Original link
Uncategorised
Archived · Original link
Uncategorised
Archived · Original link
Uncategorised
Archived · Original link

Have your say

Your comment matters. Councils must consider every representation that raises material planning considerations.

Write a comment