← Salford City Council

Status

Pending House extension
Received
Not recorded
New homes
0

Full proposal

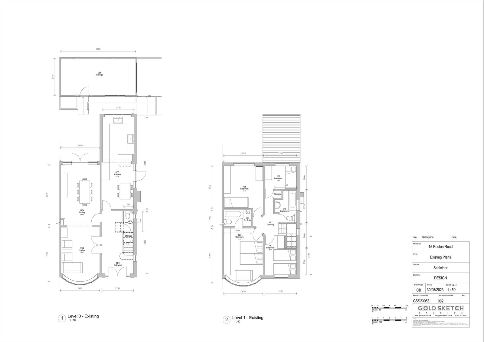
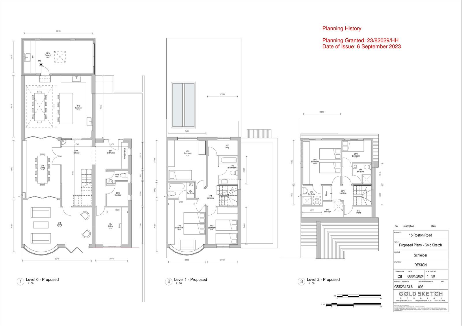
Reference PA/2025/0024 Application type Householder planning permission Site address 15 Roston Road, SALFORD, M7 4FS Description Proposed single storey side extension, single storey rear extension connected to detached garage and converted into a habitable room, loft conversion with rear dormer and hip to gable extension. Status Decision Made Decision date 17/3/2025

Documents

Uncategorised
Archived · Original link
Uncategorised
Archived · Original link
Uncategorised
Archived · Original link
Uncategorised
Archived · Original link
Uncategorised
Archived · Original link
Uncategorised
Archived · Original link
Uncategorised
Archived · Original link
Uncategorised
Archived · Original link

Have your say

Your comment matters. Councils must consider every representation that raises material planning considerations.

Write a comment