← Salford City Council

Status

Pending House extension
Received
Not recorded
New homes
0

Full proposal

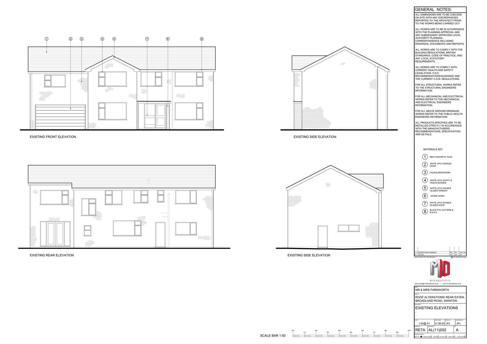
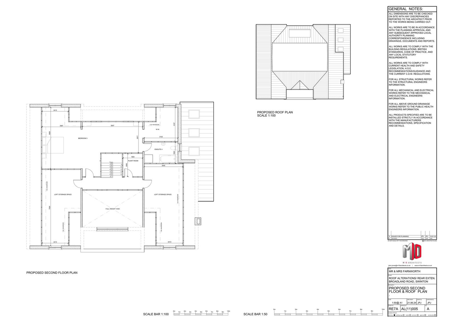
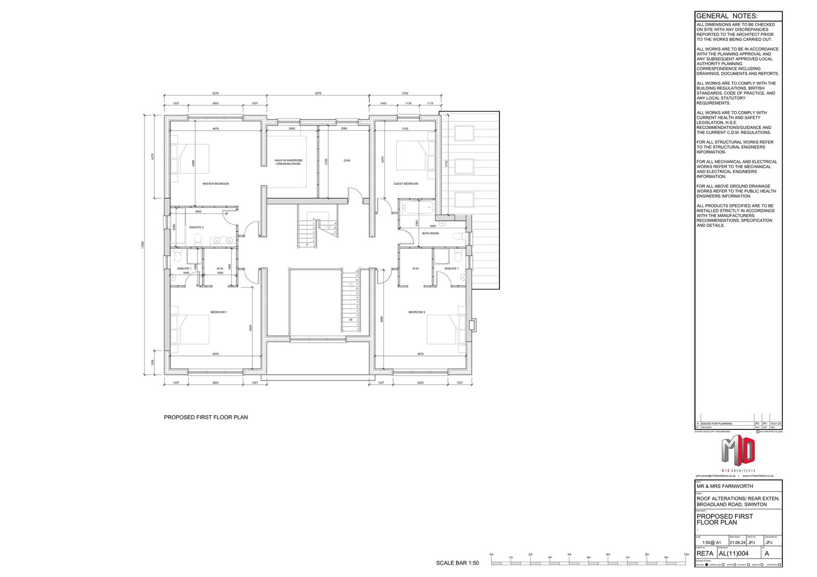
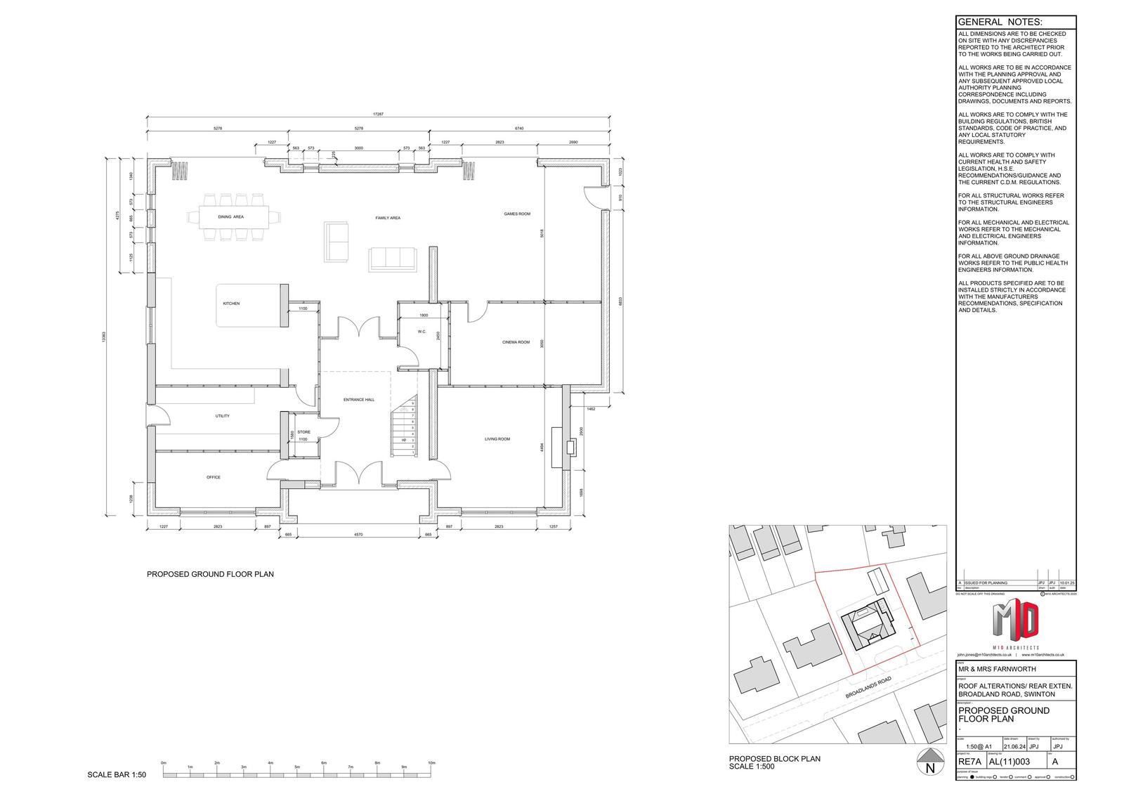
Reference PA/2025/0039 Application type Householder planning permission Site address 4 Broadlands Road, SWINTON, MANCHESTER, M28 2NX Description Erection of a two storey front, part two, part single storey side, two storey rear extension and rear dormer including raising of the roof ridge height Status Decision Made Decision date 03/3/2025

Documents

Uncategorised
Archived · Original link
Uncategorised
Archived · Original link
Uncategorised
Archived · Original link
Uncategorised
Archived · Original link
Uncategorised
Archived · Original link
Uncategorised
Archived · Original link
Uncategorised
Archived · Original link
Uncategorised
Archived · Original link
Uncategorised
Archived · Original link
Uncategorised
Archived · Original link
Uncategorised
Archived · Original link
Uncategorised
Archived · Original link
Uncategorised
Archived · Original link
Uncategorised
Archived · Original link

Have your say

Your comment matters. Councils must consider every representation that raises material planning considerations.

Write a comment