← Salford City Council

Status

Pending New housing
Received
Not recorded
New homes
42

Full proposal

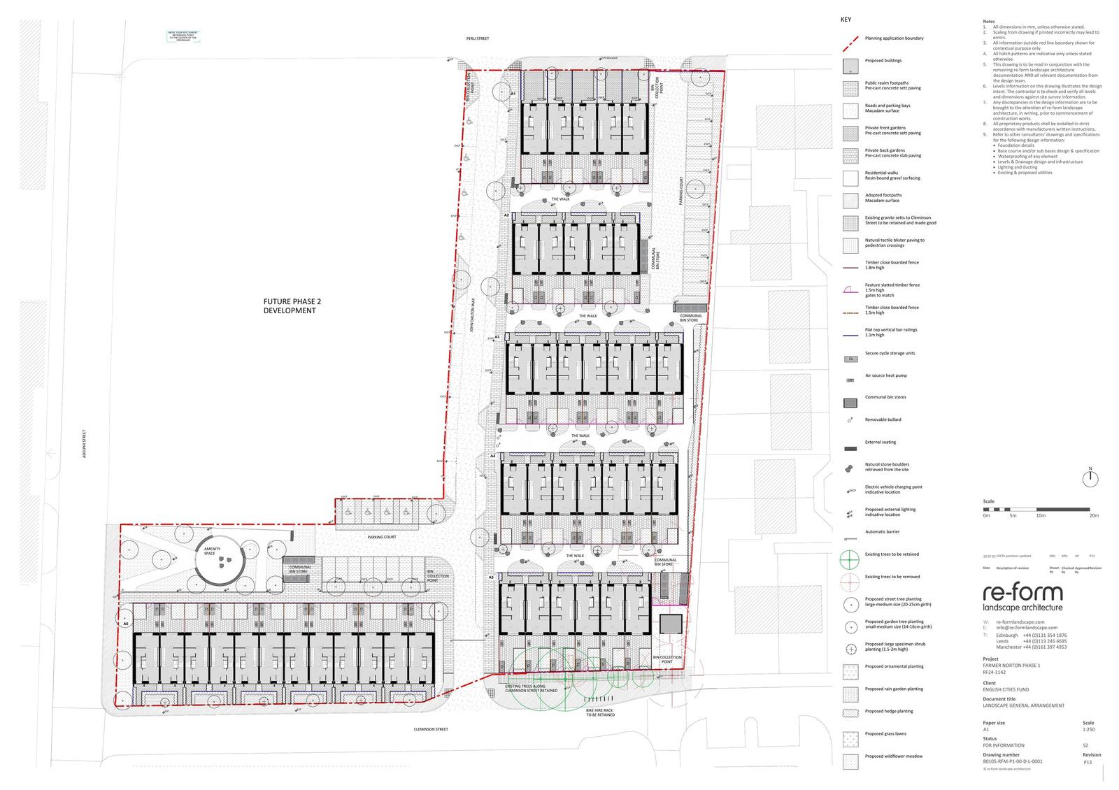
Reference PA/2025/0043 Application type Full planning permission Site address Car Park, Peru Street, SALFORD Description Demolition of existing structure and erection of residential development comprising 42 three bed dwellings (Use Class C3) together with secure cycle storage, secure external bin storage, car parking, landscaping, substation and associated works. Status Decision Made Decision date 19/12/2025

Documents

Uncategorised
Archived · Original link
Uncategorised
Archived · Original link
Uncategorised
Archived · Original link
Uncategorised
Archived · Original link
Uncategorised
Archived · Original link
Uncategorised
Archived · Original link
Uncategorised
Archived · Original link
Uncategorised
Archived · Original link
Uncategorised
Archived · Original link
Uncategorised
Archived · Original link
Uncategorised
Archived · Original link
Uncategorised
Archived · Original link
Uncategorised
Archived · Original link
Uncategorised
Archived · Original link
Uncategorised
Archived · Original link
Uncategorised
Archived · Original link
Uncategorised
Archived · Original link
Uncategorised
Archived · Original link
Uncategorised
Archived · Original link
Uncategorised
Archived · Original link

Have your say

Your comment matters. Councils must consider every representation that raises material planning considerations.

Write a comment