← Salford City Council

Status

Pending House extension
Received
Not recorded
New homes
0

Full proposal

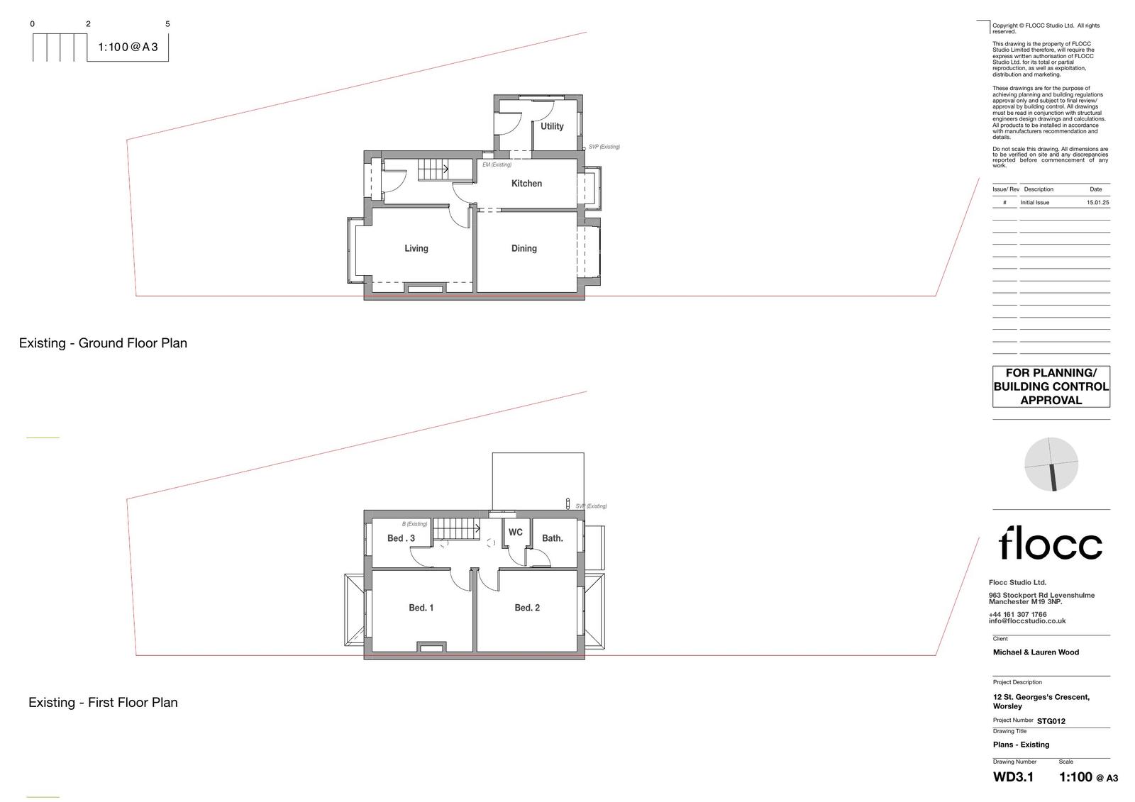
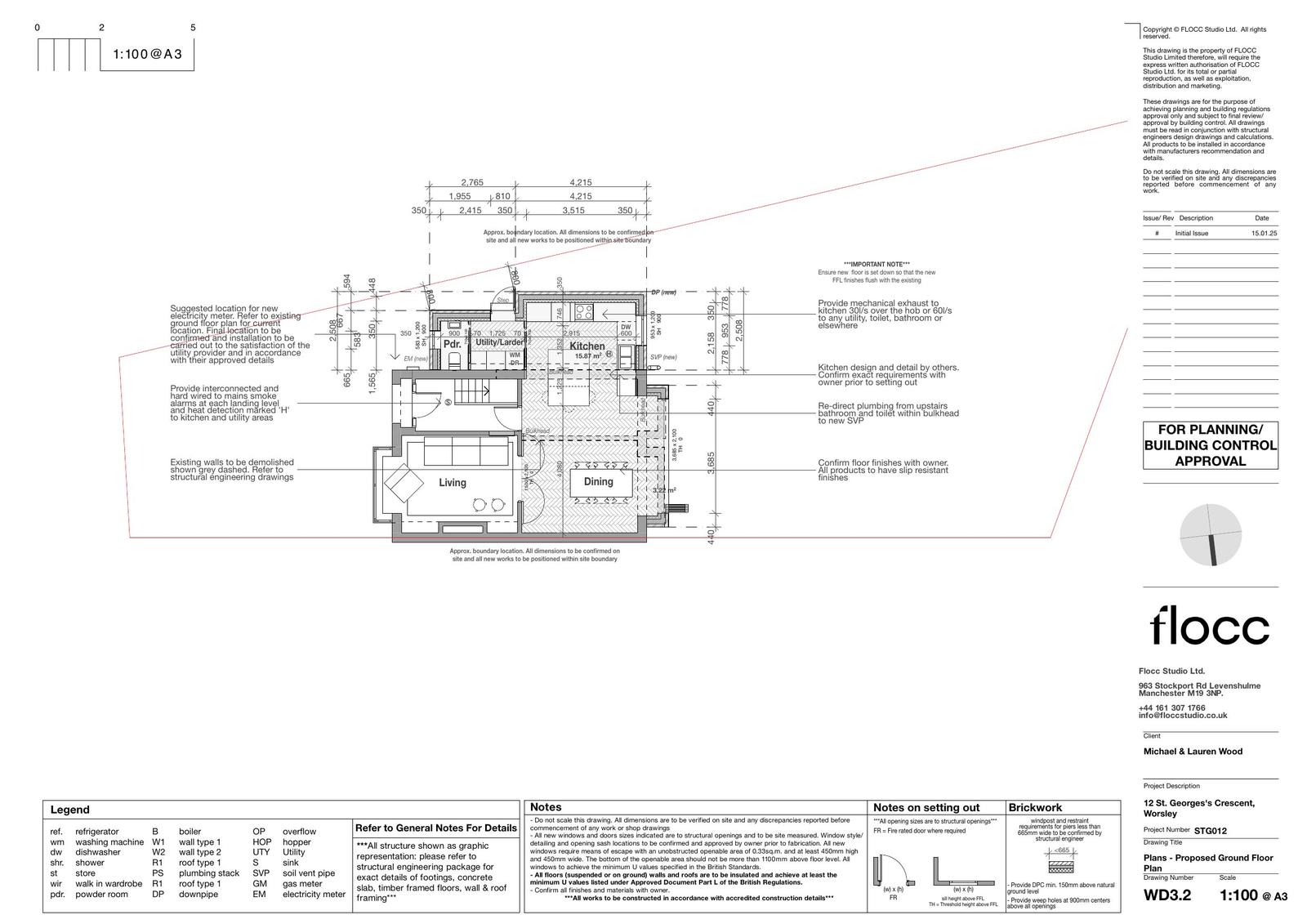
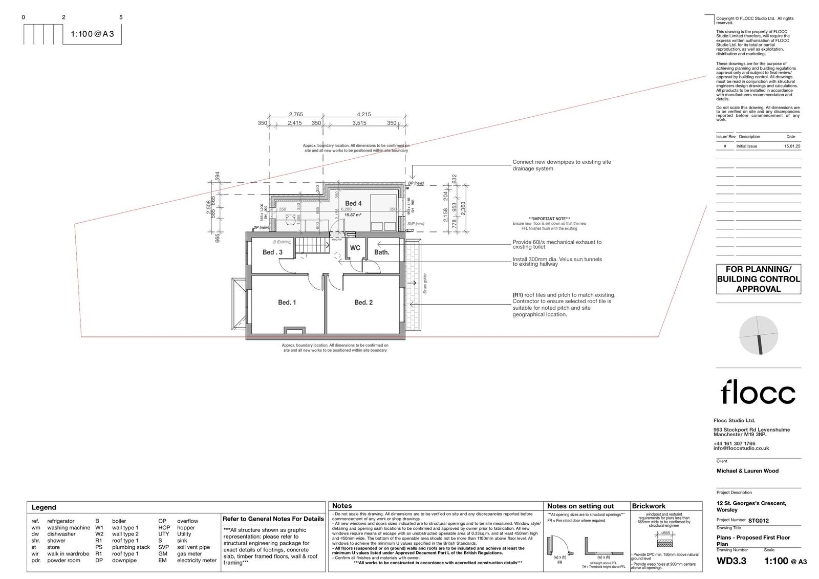
Reference PA/2025/0059 Application type Householder planning permission Site address 12 St Georges Crescent, Worsley, M28 3AN Description Proposed two storey side extension, alterations to existing rear facing bay windows and internal alterations to an existing dwelling. Status Decision Made Decision date 06/3/2025

Documents

Uncategorised
Archived · Original link
Uncategorised
Archived · Original link
Uncategorised
Archived · Original link
Uncategorised
Archived · Original link
Uncategorised
Archived · Original link
Uncategorised
Archived · Original link
Uncategorised
Archived · Original link
Uncategorised
Archived · Original link
Uncategorised
Archived · Original link
Uncategorised
Archived · Original link
Uncategorised
Archived · Original link
Uncategorised
Archived · Original link
Uncategorised
Archived · Original link

Have your say

Your comment matters. Councils must consider every representation that raises material planning considerations.

Write a comment