← Salford City Council

Status

Pending House extension
Received
Not recorded
New homes
0

Full proposal

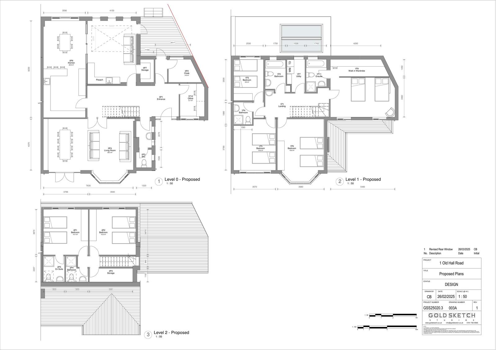
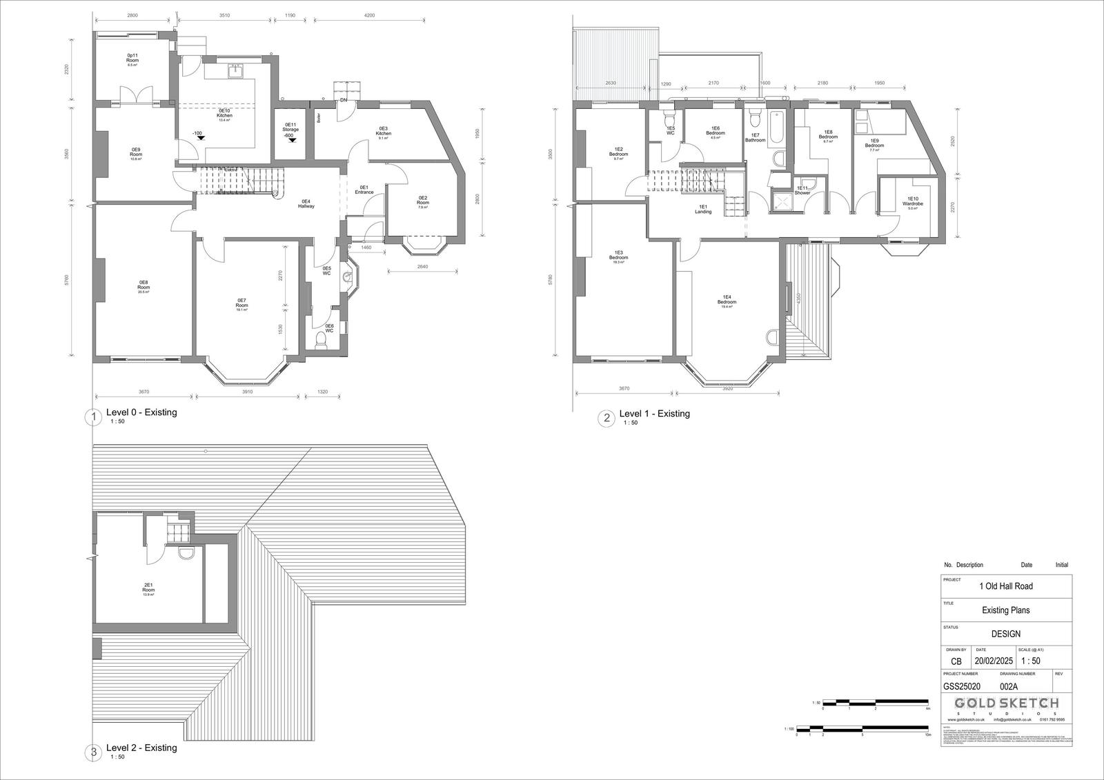
Reference PA/2025/0470 Application type Householder planning permission Site address 1 Old Hall Road, SALFORD, M7 4JJ Description Erection of a single storey rear extension, rear dormer and hip to gable roof extension. Status Decision Made Decision date 24/6/2025

Documents

Uncategorised
Archived · Original link
Uncategorised
Archived · Original link
Uncategorised
Archived · Original link
Uncategorised
Archived · Original link
Uncategorised
Archived · Original link
Uncategorised
Archived · Original link
Uncategorised
Archived · Original link
Uncategorised
Archived · Original link
Uncategorised
Archived · Original link
Uncategorised
Archived · Original link

Have your say

Your comment matters. Councils must consider every representation that raises material planning considerations.

Write a comment