← Salford City Council

Status

Pending House extension
Received
Not recorded
New homes
0

Full proposal

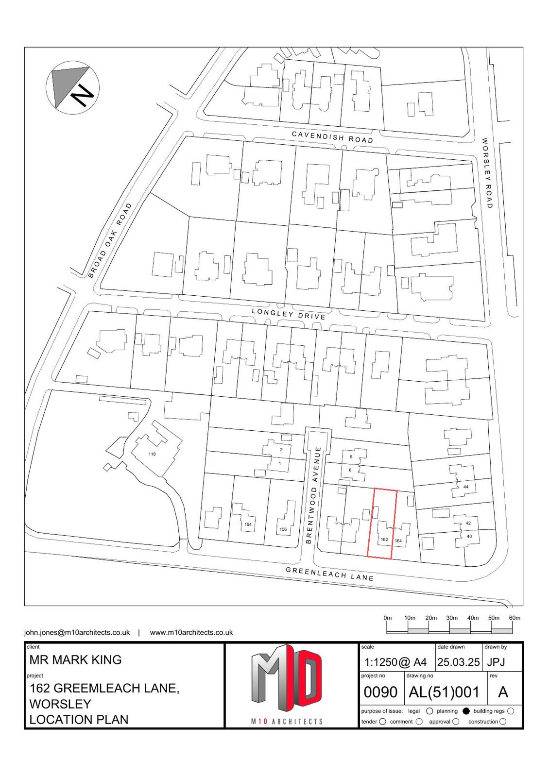
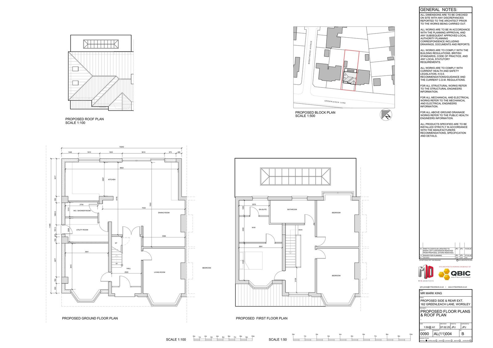
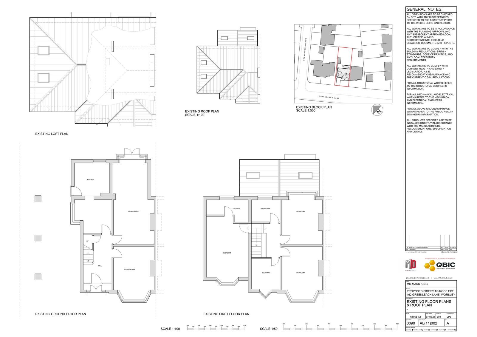
Reference PA/2025/0481 Application type Householder planning permission Site address 162 Greenleach Lane, WORSLEY, MANCHESTER, M28 2TS Description Erection of a single storey side (infill) extension with a front canopy, demolition of existing rear extension and erection of a single storey rear / side extension including external alterations and alterations to existing front boundary treatment and driveway including new surfacing Status Decision Made Decision date 11/7/2025

Documents

Uncategorised
Archived · Original link
Uncategorised
Archived · Original link
Uncategorised
Archived · Original link
Uncategorised
Archived · Original link
Uncategorised
Archived · Original link
Uncategorised
Archived · Original link
Uncategorised
Archived · Original link
Uncategorised
Archived · Original link
Uncategorised
Archived · Original link
Uncategorised
Archived · Original link
Uncategorised
Archived · Original link
Uncategorised
Archived · Original link

Have your say

Your comment matters. Councils must consider every representation that raises material planning considerations.

Write a comment