← Salford City Council

Status

Pending House extension
Received
Not recorded
New homes
0

Full proposal

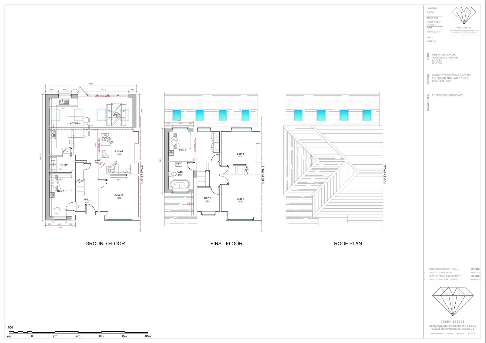
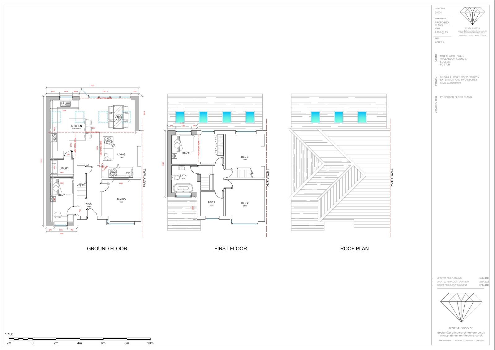
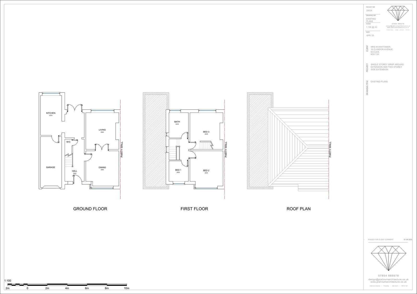
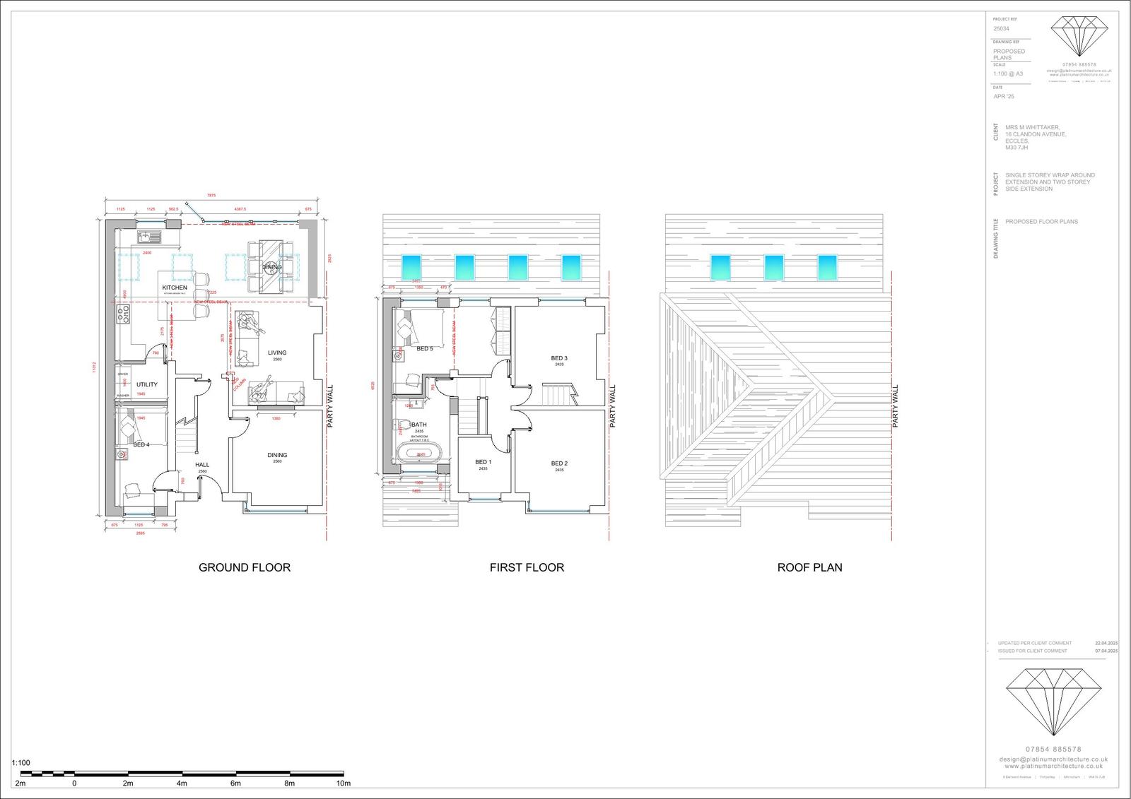
Reference PA/2025/0626 Application type Householder planning permission Site address 16 Clandon Avenue, ECCLES, MANCHESTER, M30 7JH Description Erection of a single storey wrap around extension, two storey side extension and garage conversion Status Decision Made Decision date 07/7/2025

Documents

Uncategorised
Archived · Original link
Uncategorised
Archived · Original link
Uncategorised
Archived · Original link
Uncategorised
Archived · Original link
Uncategorised
Archived · Original link
Uncategorised
Archived · Original link
Uncategorised
Archived · Original link
Uncategorised
Archived · Original link
Uncategorised
Archived · Original link
Uncategorised
Archived · Original link
Uncategorised
Archived · Original link
Uncategorised
Archived · Original link
Uncategorised
Archived · Original link

Have your say

Your comment matters. Councils must consider every representation that raises material planning considerations.

Write a comment