← Salford City Council

Status

Pending House extension
Received
Not recorded
New homes
0

Full proposal

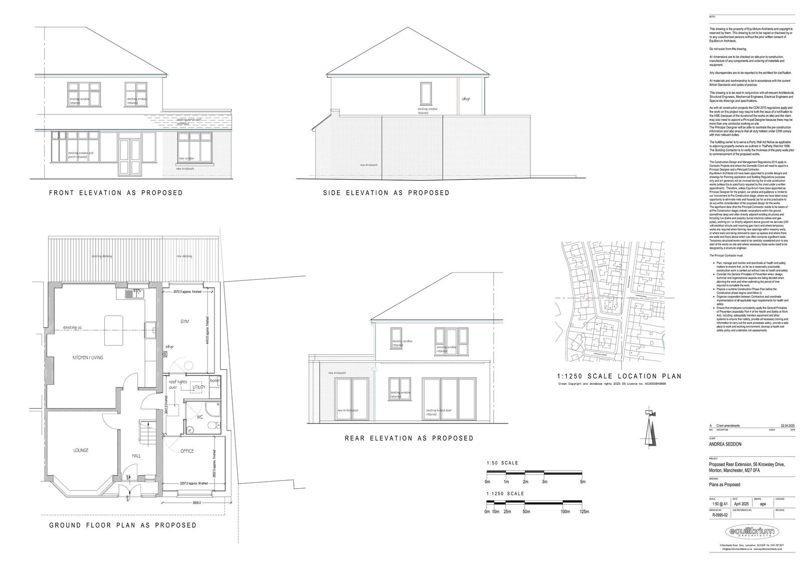
Reference PA/2025/0643 Application type Householder planning permission Site address 56 Knowsley Drive, SWINTON, MANCHESTER, M27 0FA Description Demolition of existing single storey side garage and erection of a single storey side extension and extend existing front canopy Status Decision Made Decision date 14/7/2025

Documents

Uncategorised
Archived · Original link
Uncategorised
Archived · Original link
Uncategorised
Archived · Original link
Uncategorised
Archived · Original link
Uncategorised
Archived · Original link
Uncategorised
Archived · Original link

Have your say

Your comment matters. Councils must consider every representation that raises material planning considerations.

Write a comment