← Salford City Council

Status

Pending House extension
Received
Not recorded
New homes
0

Full proposal

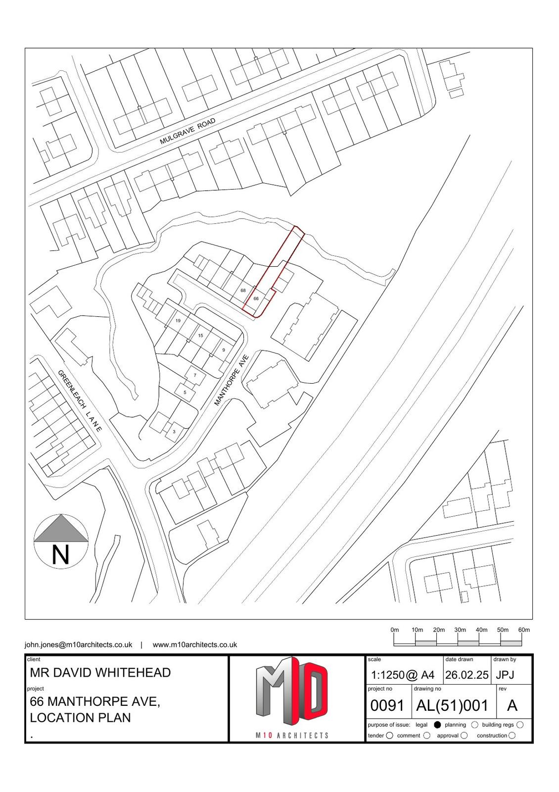
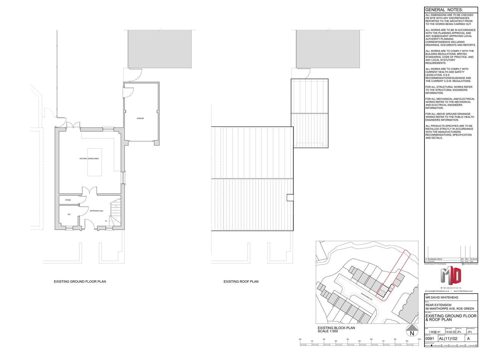
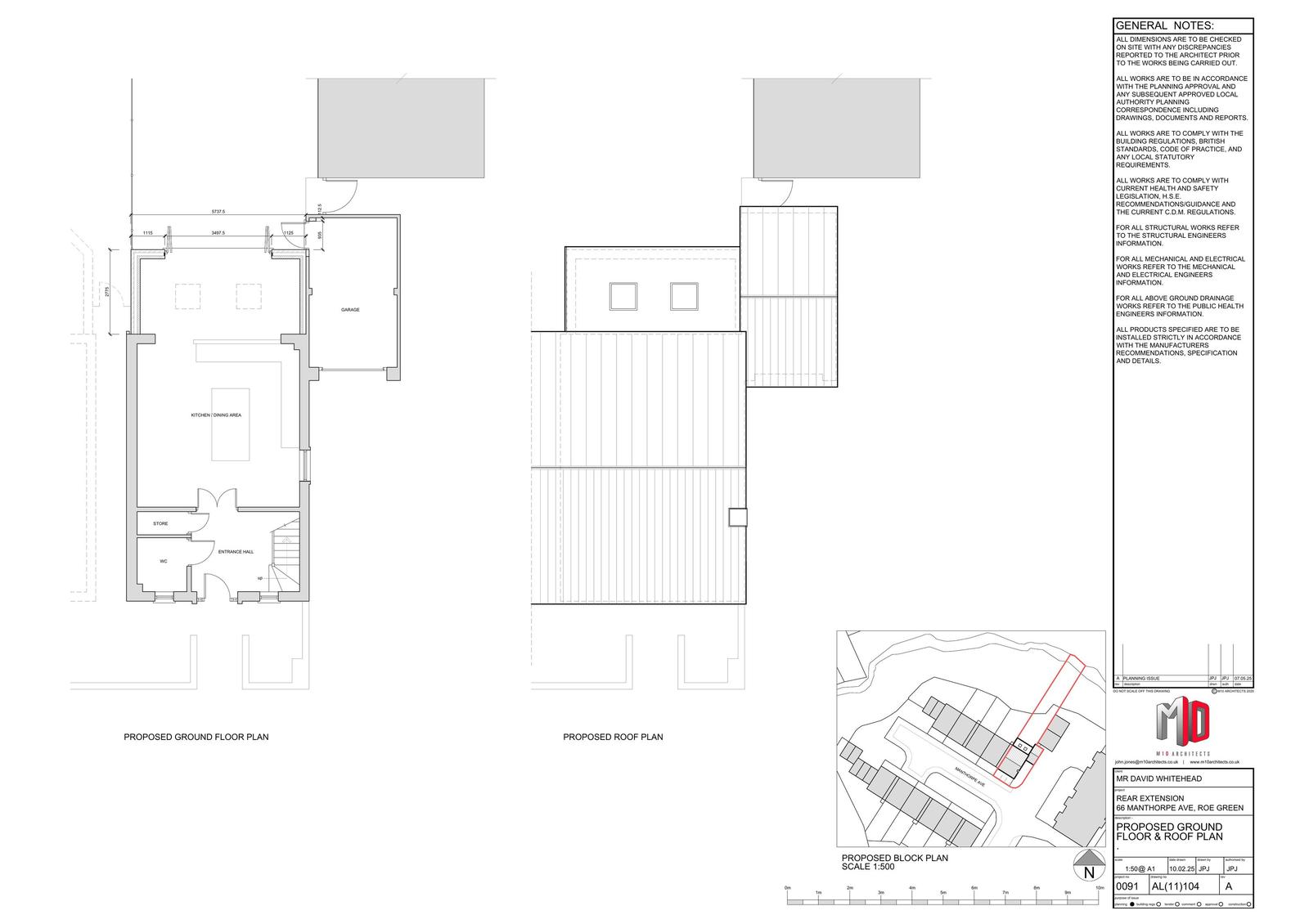
Reference PA/2025/0672 Application type Householder planning permission Site address 66 Manthorpe Avenue, Worsley, Manchester, M28 2AZ Description Erection of a single storey rear extension Status Decision Made Decision date 09/7/2025

Documents

Uncategorised
Archived · Original link
Uncategorised
Archived · Original link
Uncategorised
Archived · Original link
Uncategorised
Archived · Original link
Uncategorised
Archived · Original link
Uncategorised
Archived · Original link
Uncategorised
Archived · Original link
Uncategorised
Archived · Original link
Uncategorised
Archived · Original link
Uncategorised
Archived · Original link
Uncategorised
Archived · Original link

Have your say

Your comment matters. Councils must consider every representation that raises material planning considerations.

Write a comment