← Salford City Council

Status

Pending House extension
Received
Not recorded
New homes
0

Full proposal

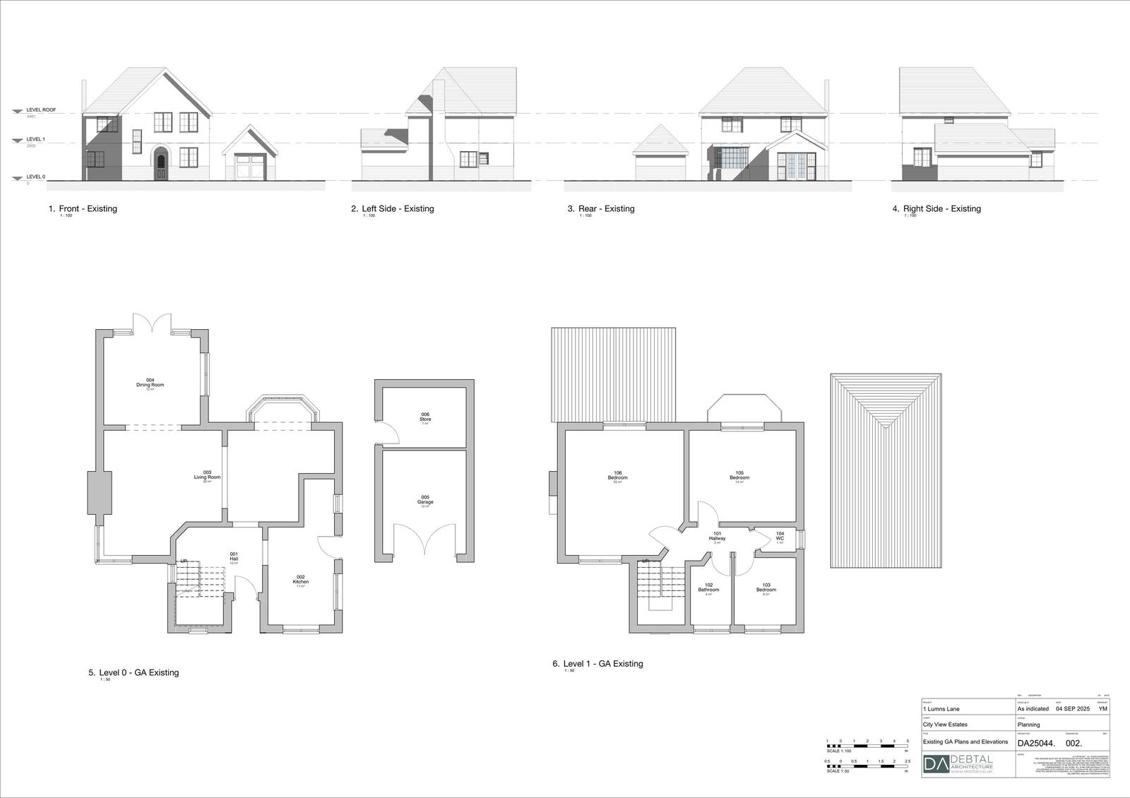
Reference PA/2025/1644 Application type Householder planning permission Site address 1 Lumns Lane, SWINTON, MANCHESTER, M27 8LN Description Erection of a single storey side and rear extension and a two storey rear extension. Status Under Consultation Decision date

Documents

Uncategorised
Archived · Original link
Uncategorised
Archived · Original link
Uncategorised
Archived · Original link
Uncategorised
Archived · Original link
Uncategorised
Archived · Original link
Uncategorised
Archived · Original link

Have your say

Your comment matters. Councils must consider every representation that raises material planning considerations.

Write a comment