← Salford City Council

Status

Pending House extension
Received
Not recorded
New homes
0

Full proposal

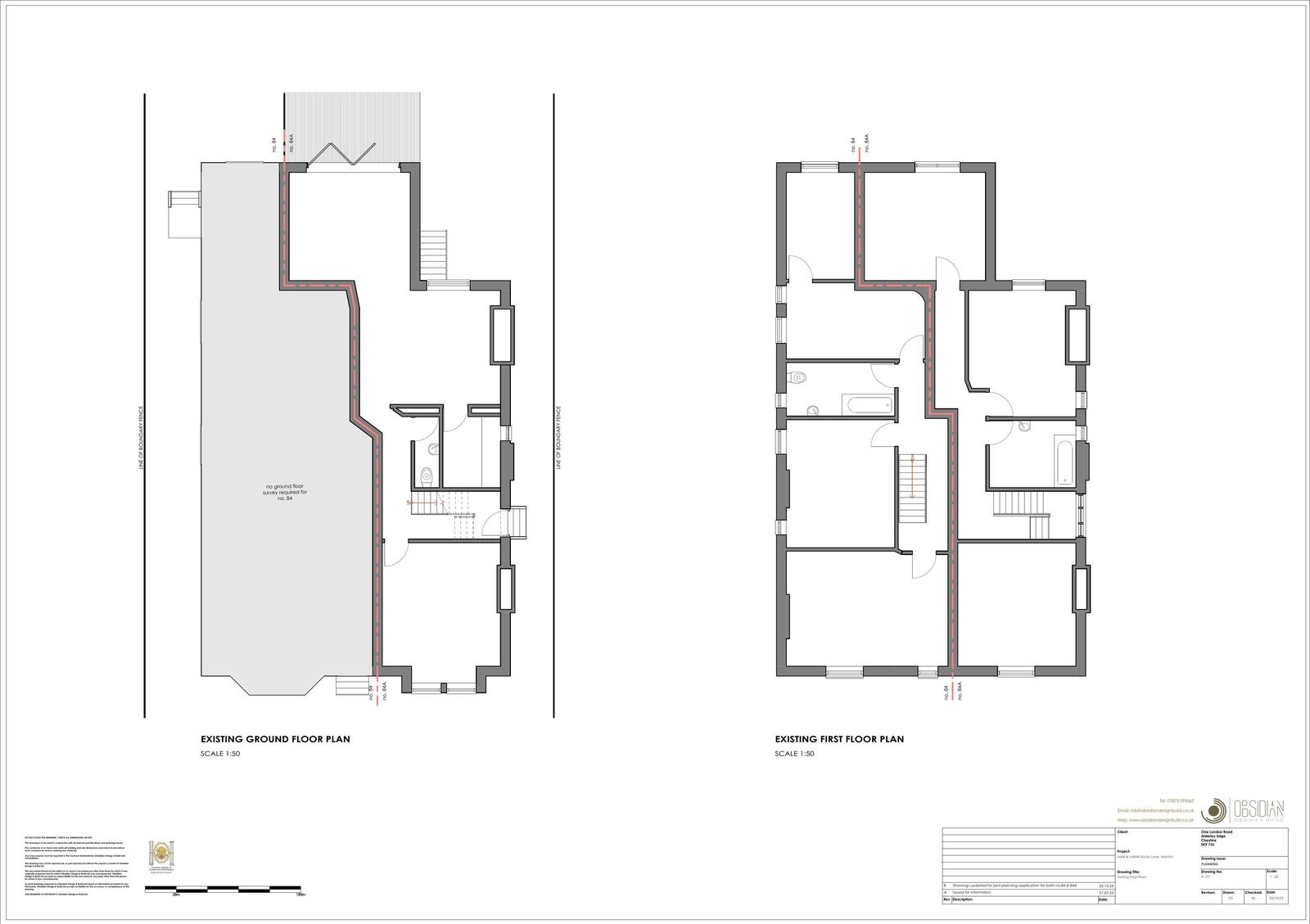
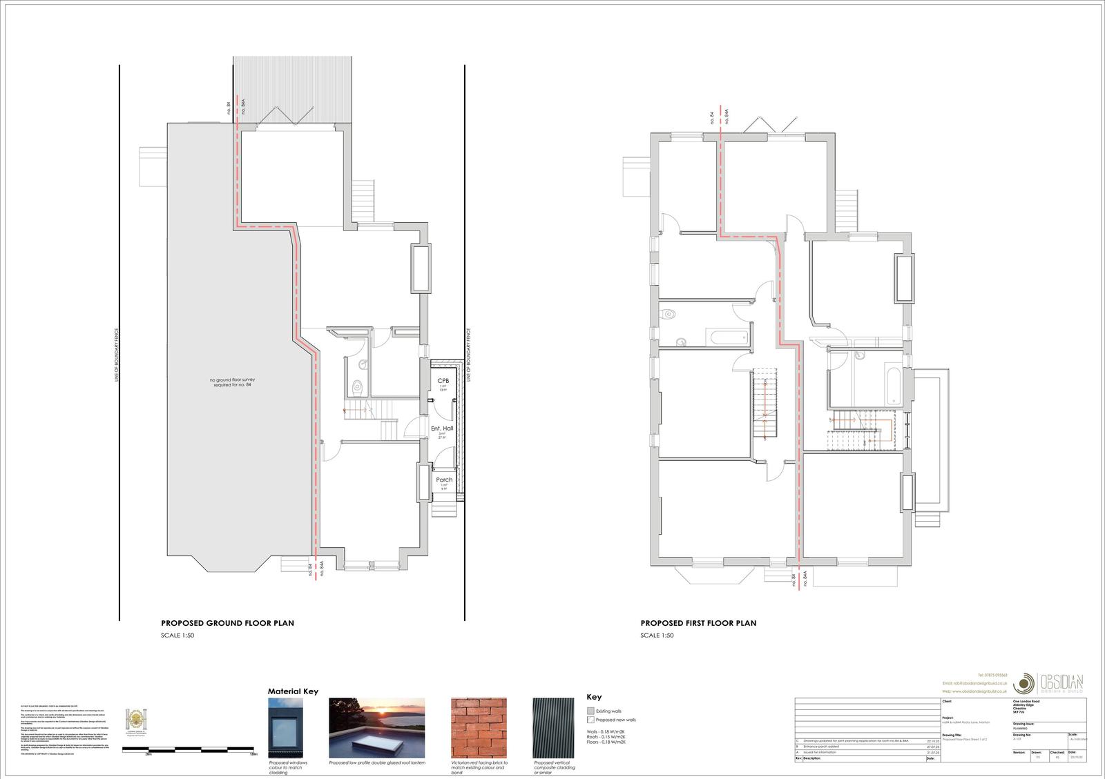
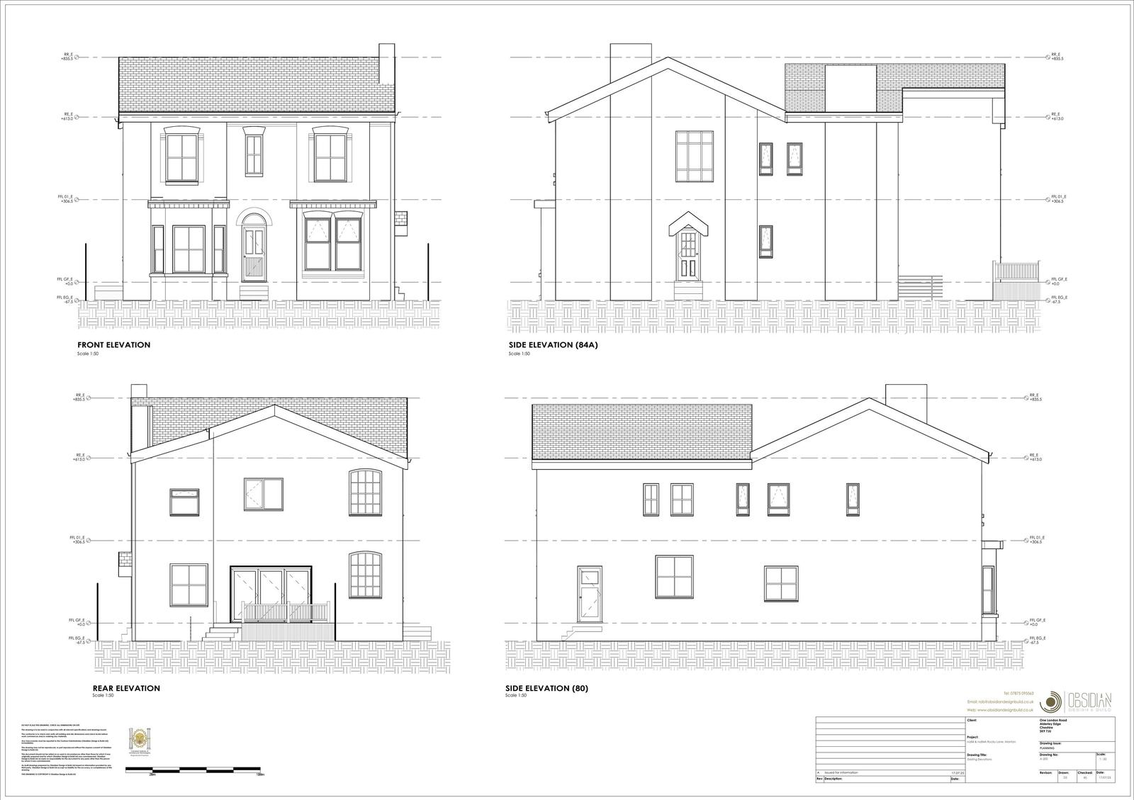
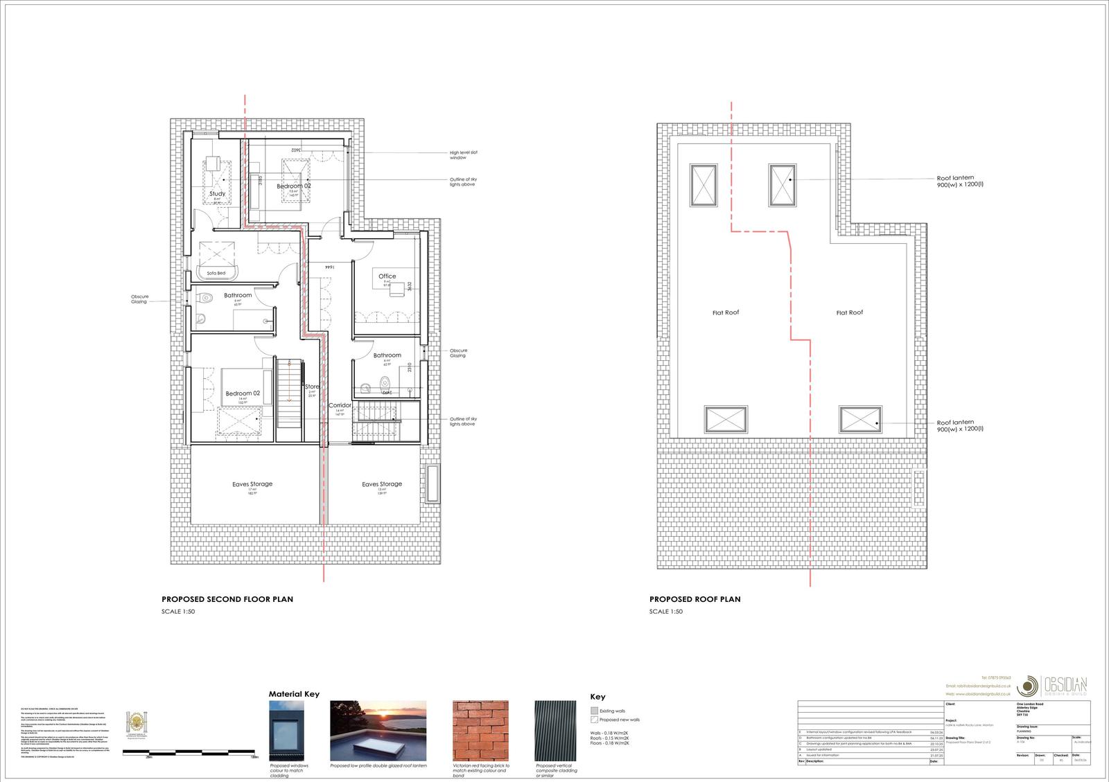
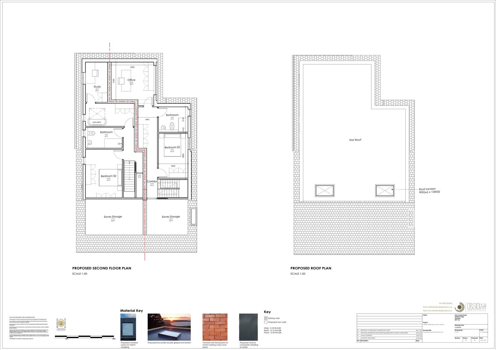
Reference PA/2025/1687 Application type Full planning permission Site address 84, No. 84 & No. 84A, Rocky Lane, Monton, Salford, M30 9LY Description Erection of single storey side extension, new front porch/entrance, second floor loft conversation and side/rear dormers Status Under Consultation Decision date

Documents

Uncategorised
Archived · Original link
Uncategorised
Archived · Original link
Uncategorised
Archived · Original link
Uncategorised
Archived · Original link
Uncategorised
Archived · Original link
Uncategorised
Archived · Original link
Uncategorised
Archived · Original link
Uncategorised
Archived · Original link
Uncategorised
Archived · Original link
Uncategorised
Archived · Original link
Uncategorised
Archived · Original link
Uncategorised
Archived · Original link
Uncategorised
Archived · Original link

Have your say

Your comment matters. Councils must consider every representation that raises material planning considerations.

Write a comment