← Salford City Council

Status

Pending Commercial
Received
Not recorded
New homes
0

Full proposal

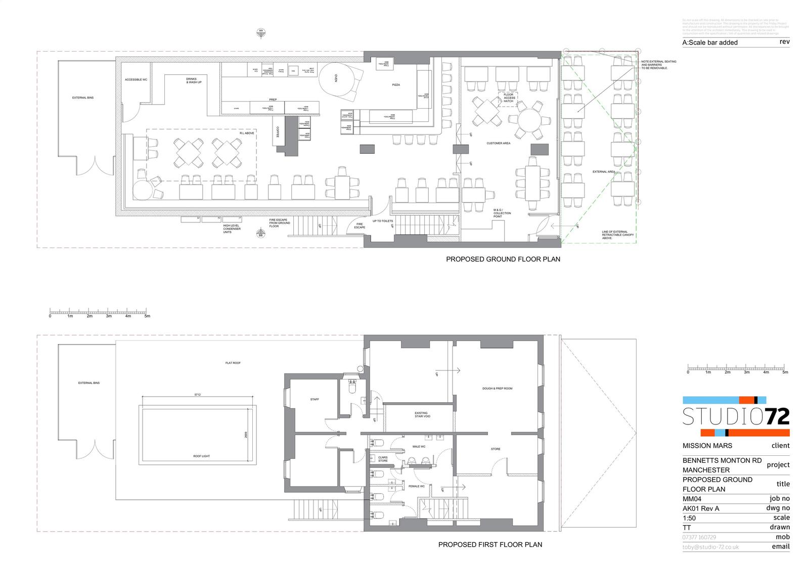
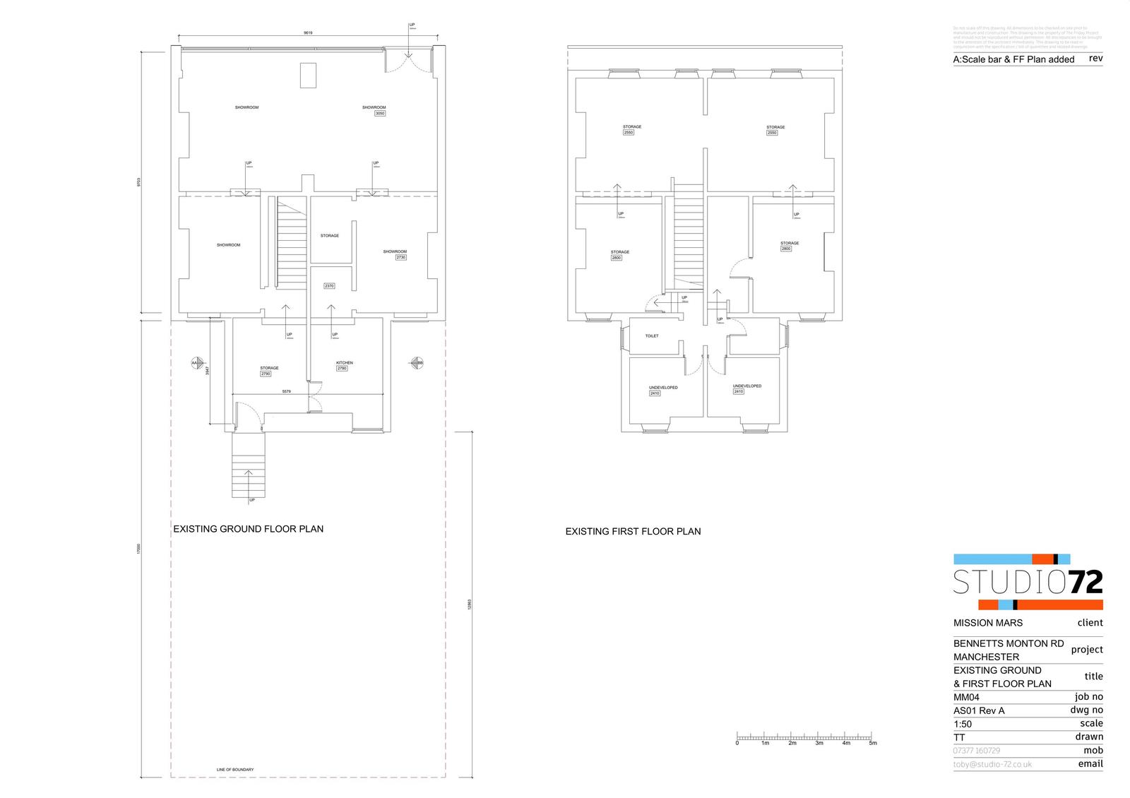
Reference PA/2025/1796 Application type Full planning permission Site address 237-239 Monton Road, ECCLES, MANCHESTER, M30 9PS Description Erection of a single storey rear extension with roof light and extraction flue, new rear door and steel escape stairs, 3 no. condenser units, bin store, new shop frontage including retractable canopy and outside seating area (to facilitate the use of the premises as a restaurant) Status Under Consultation Decision date

Documents

Uncategorised
Archived · Original link
Uncategorised
Archived · Original link
Uncategorised
Archived · Original link
Uncategorised
Archived · Original link
Uncategorised
Archived · Original link
Uncategorised
Archived · Original link
Uncategorised
Archived · Original link
Uncategorised
Archived · Original link
Uncategorised
Archived · Original link
Uncategorised
Archived · Original link
Uncategorised
Archived · Original link
Uncategorised
Archived · Original link
Uncategorised
Archived · Original link
Uncategorised
Archived · Original link
Uncategorised
Archived · Original link
Uncategorised
Archived · Original link
Uncategorised
Archived · Original link
Uncategorised
Archived · Original link
Uncategorised
Archived · Original link
Uncategorised
Archived · Original link

Have your say

Your comment matters. Councils must consider every representation that raises material planning considerations.

Write a comment