← Salford City Council

Status

Pending House extension
Received
Not recorded
New homes
0

Full proposal

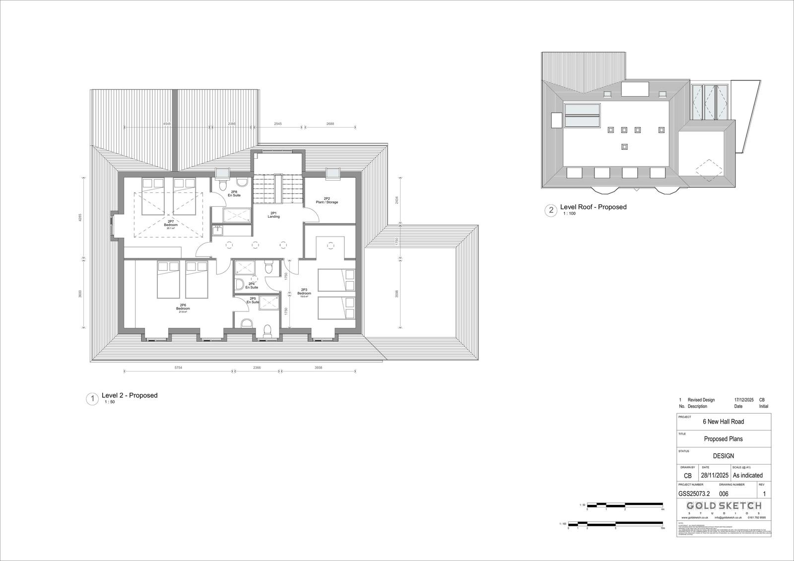
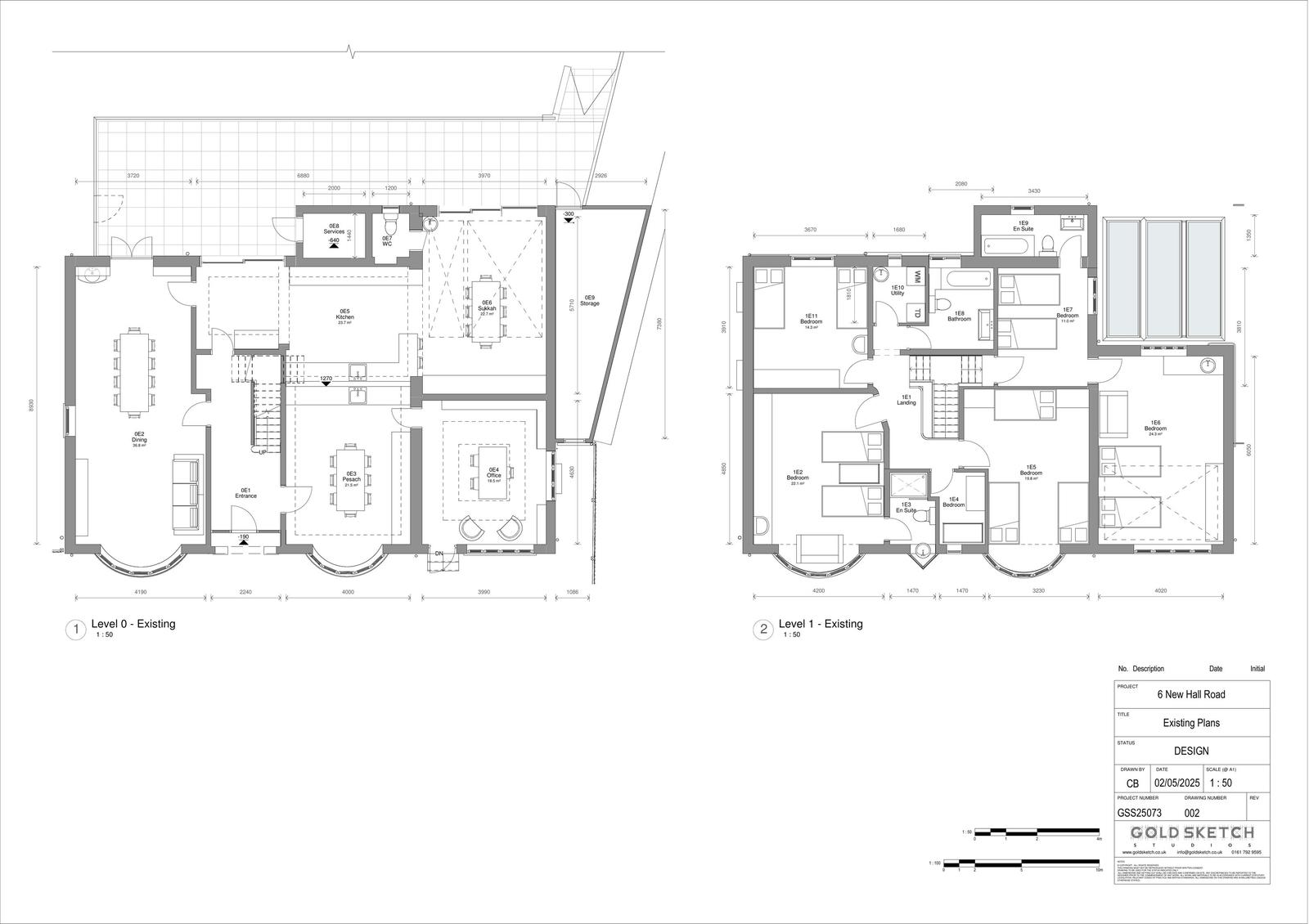
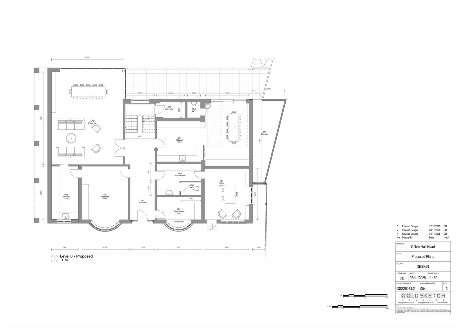
Reference PA/2026/0023 Application type Householder planning permission Site address 6 New Hall Road, SALFORD, M7 4EL Description Proposed two storey side and rear extension, loft conversion with installation of front and rear dormers, alterations to roof and render to all external walls Status Under Consultation Decision date

Documents

Uncategorised
Archived · Original link
Uncategorised
Archived · Original link
Uncategorised
Archived · Original link
Uncategorised
Archived · Original link
Uncategorised
Archived · Original link
Uncategorised
Archived · Original link
Uncategorised
Archived · Original link
Uncategorised
Archived · Original link
Uncategorised
Archived · Original link
Uncategorised
Archived · Original link
Uncategorised
Archived · Original link
Uncategorised
Archived · Original link

Have your say

Your comment matters. Councils must consider every representation that raises material planning considerations.

Write a comment