← Salford City Council

Status

Pending Change of use
Received
Not recorded
New homes
13

Full proposal

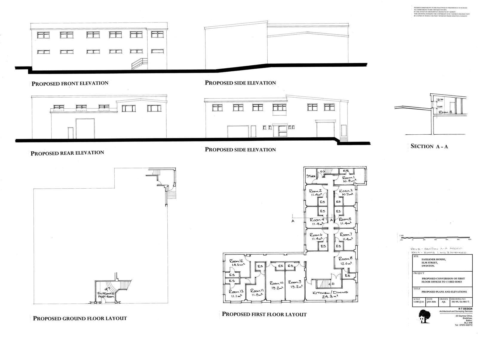
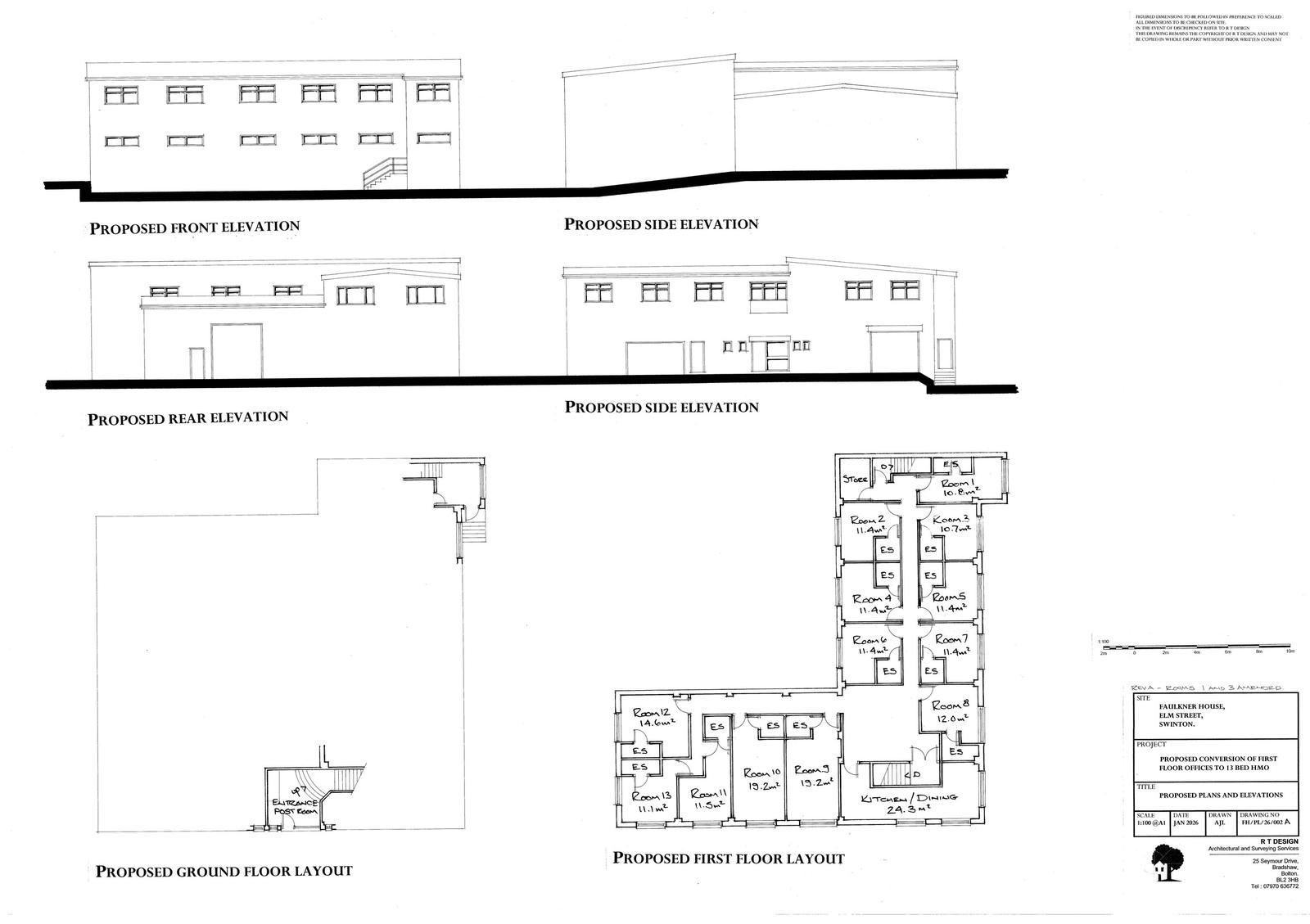
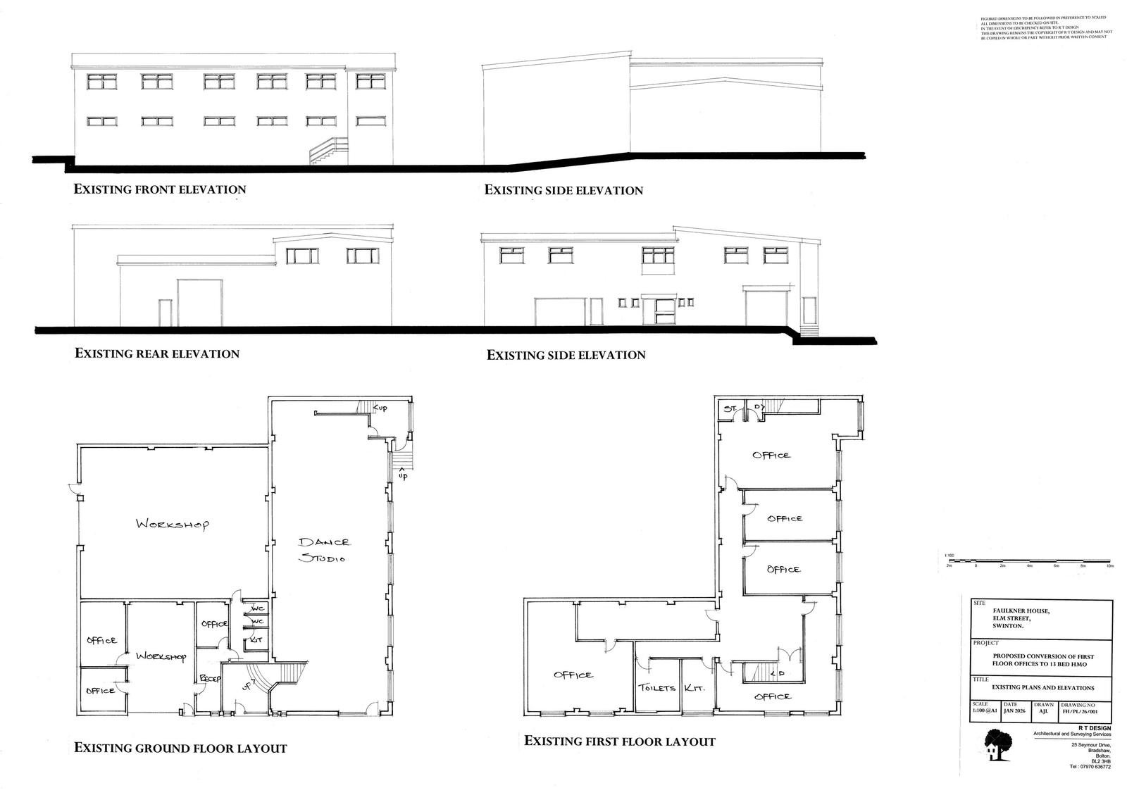
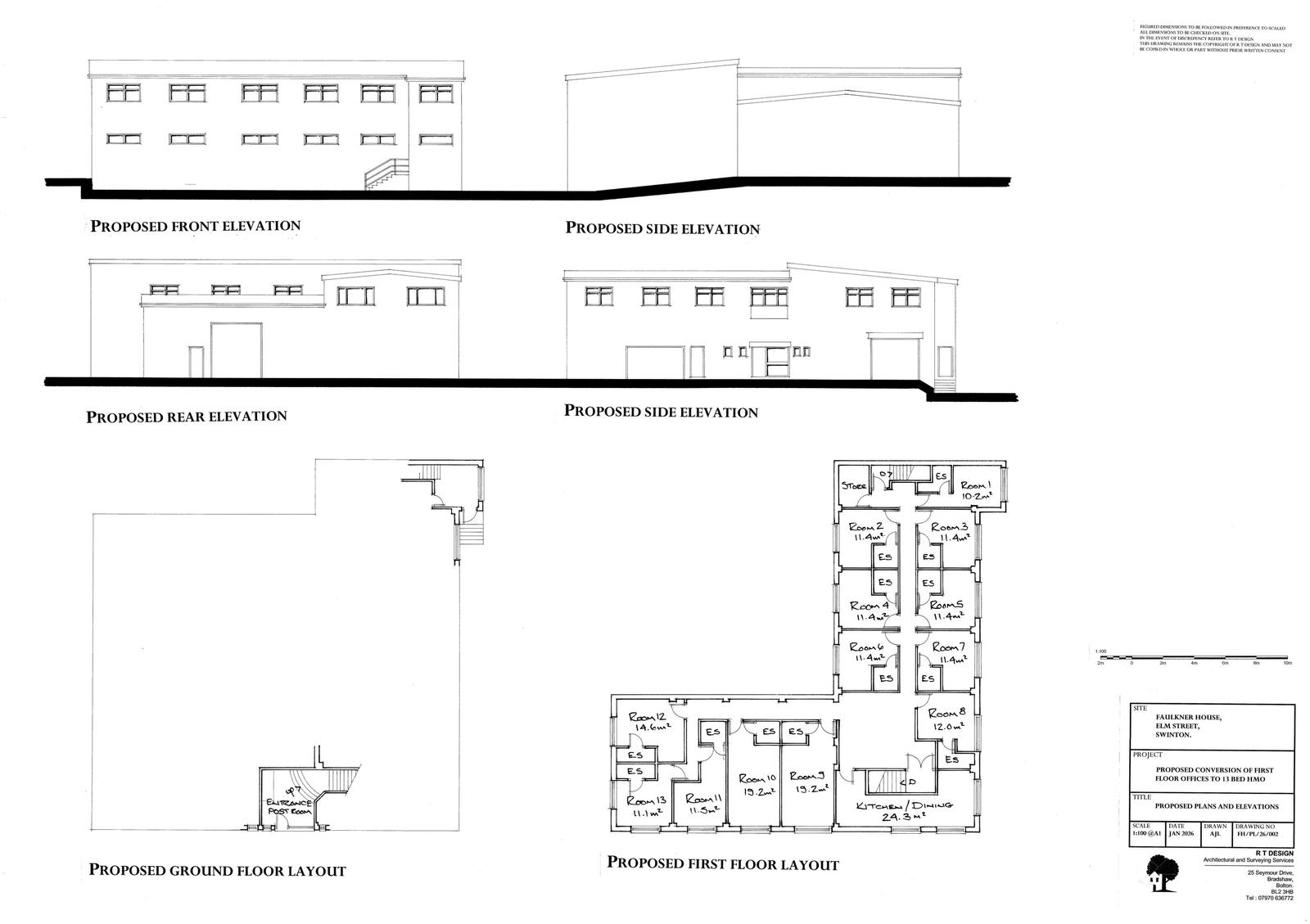
Reference PA/2026/0149 Application type Full planning permission Site address Faulkner House, Elm Street, SWINTON, MANCHESTER, M27 6AJ Description Conversion of first floor offices (use class E) to 13 bedroom (13 person) House of Multiple Occupation (HMO) (sui generis) with installation of 1no. window to side elevation and 3no. windows to rear elevation Status Under Consultation Decision date

Documents

Uncategorised
Archived · Original link
Uncategorised
Archived · Original link
Uncategorised
Archived · Original link
Uncategorised
Archived · Original link
Uncategorised
Archived · Original link
Uncategorised
Archived · Original link
Uncategorised
Archived · Original link
Uncategorised
Archived · Original link
Uncategorised
Archived · Original link
Uncategorised
Archived · Original link
Uncategorised
Archived · Original link
Uncategorised
Archived · Original link
Uncategorised
Archived · Original link
Uncategorised
Archived · Original link
Uncategorised
Archived · Original link
Uncategorised
Archived · Original link

Have your say

Your comment matters. Councils must consider every representation that raises material planning considerations.

Write a comment