← Salford City Council

Status

Pending House extension
Received
Not recorded
New homes
0

Full proposal

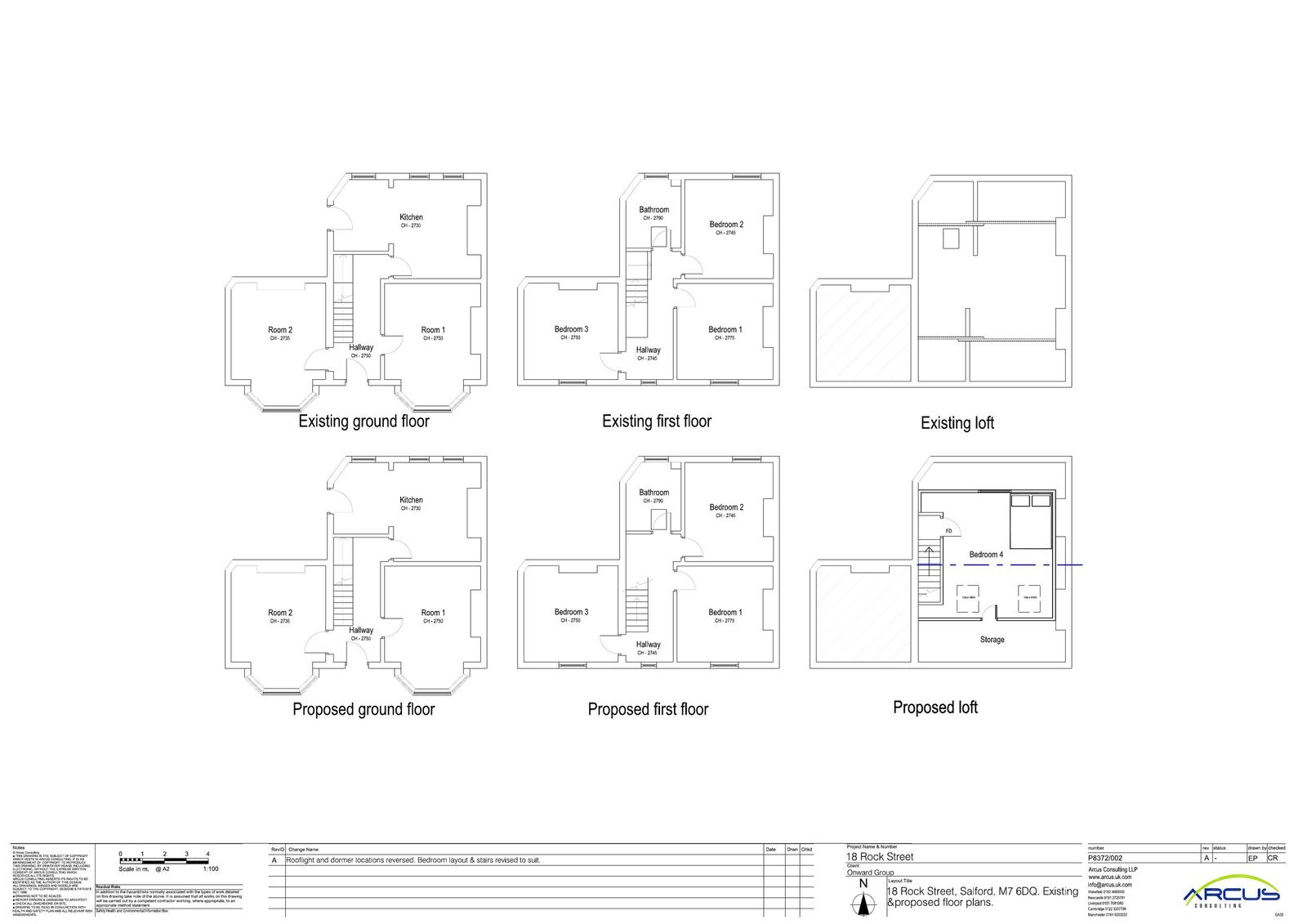
Reference PA/2026/0153 Application type Lawful development: Proposed use Site address 18 Rock Street, SALFORD, M7 2DQ Description Application for a lawful development certificate for a proposed loft conversion with construction of rear dormer and rooflights to the front elevation Status Valid Decision date

Documents

Uncategorised
Archived · Original link
Uncategorised
Archived · Original link
Uncategorised
Archived · Original link
Uncategorised
Archived · Original link

Have your say

Your comment matters. Councils must consider every representation that raises material planning considerations.

Write a comment