← Salford City Council

Status

Pending Change of use
Received
Not recorded
New homes
0

Full proposal

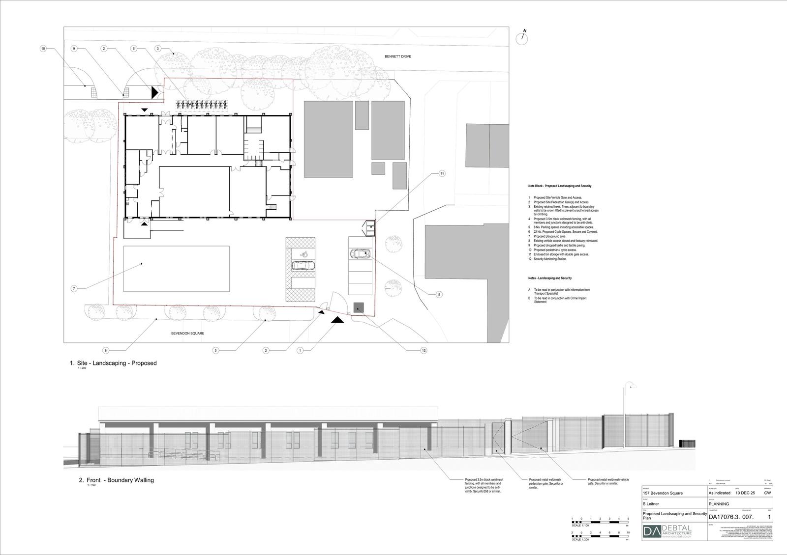
Reference PA/2026/0234 Application type Full planning permission Site address B And M Bargains, Bevendon Square, SALFORD, M7 4TF Description Change of use of the existing building to a Use Class F1(a) non‑residential educational institution (Yeshiva), with ancillary community use, external alterations including new windows and doors, roof alterations, new vehicle and pedestrian gates and boundary fencing, a dropped kerb to form a pedestrian/cycle access, and associated external works. Status Under Consultation Decision date

Documents

Uncategorised
Archived · Original link
Uncategorised
Archived · Original link
Uncategorised
Archived · Original link
Uncategorised
Archived · Original link
Uncategorised
Archived · Original link
Uncategorised
Archived · Original link
Uncategorised
Archived · Original link
Uncategorised
Archived · Original link
Uncategorised
Archived · Original link
Uncategorised
Archived · Original link
Uncategorised
Archived · Original link
Uncategorised
Archived · Original link

Have your say

Your comment matters. Councils must consider every representation that raises material planning considerations.

Write a comment