← Salford City Council

Status

Pending House extension
Received
Not recorded
New homes
0

Full proposal

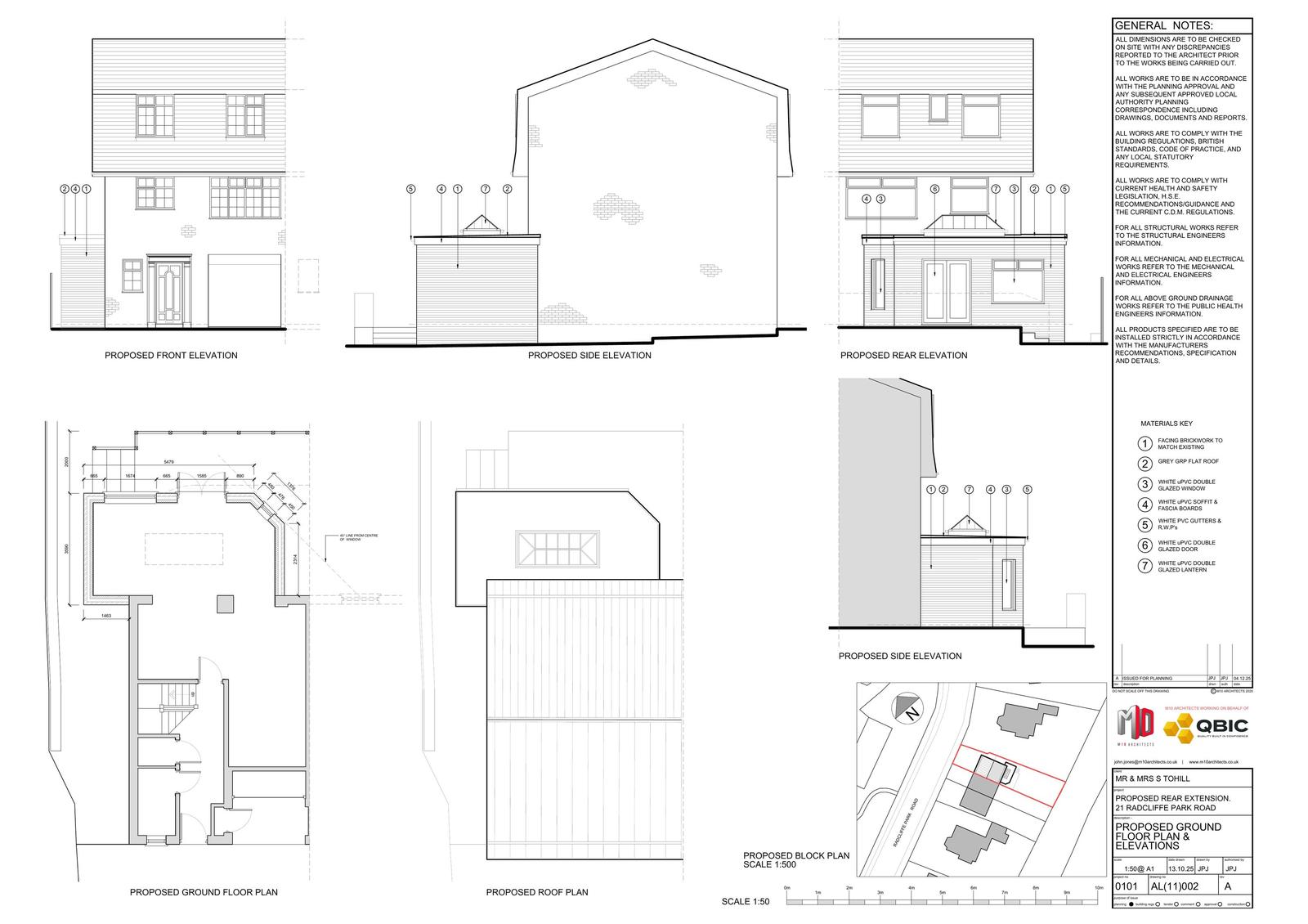
Reference PA/2026/0254 Application type Householder planning permission Site address 21 Radcliffe Park Road, SALFORD, M6 7WP Description Erection of single storey side and rear extension with skylight Status Under Consultation Decision date

Documents

Uncategorised
Archived · Original link
Uncategorised
Archived · Original link
Uncategorised
Archived · Original link
Uncategorised
Archived · Original link
Uncategorised
Archived · Original link
Uncategorised
Archived · Original link

Have your say

Your comment matters. Councils must consider every representation that raises material planning considerations.

Write a comment