← Salford City Council

Status

Pending House extension
Received
Not recorded
New homes
0

Full proposal

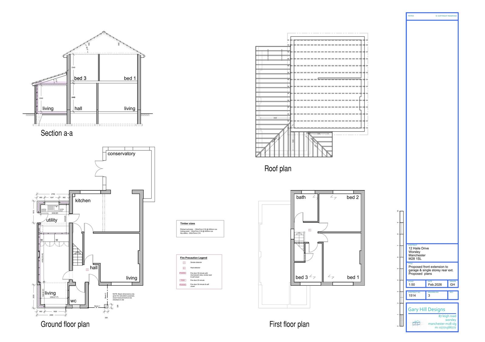
Reference PA/2026/0271 Application type Householder planning permission Site address 12 Haile Drive, WORSLEY, MANCHESTER, M28 1SL Description Proposed single-storey side infill extensions and front porch extension, with conversion of garage to habitable room Status Under Consultation Decision date

Documents

Uncategorised
Archived · Original link
Uncategorised
Archived · Original link
Uncategorised
Archived · Original link
Uncategorised
Archived · Original link
Uncategorised
Archived · Original link
Uncategorised
Archived · Original link
Uncategorised
Archived · Original link
Uncategorised
Archived · Original link

Have your say

Your comment matters. Councils must consider every representation that raises material planning considerations.

Write a comment