← Back to Sandwell Council

Status

Unknown Change of use
Received 21 May 2025
New dwellings 36

What you can do

Take Action

Make your voice heard. Authorities need to hear from people who support new homes.

Summary

Partial demolition and rear extension with change of use to 36 HMO units.

Full Proposal

Proposed demolition of part of building and proposed two storey rear extension in association with change of use to 36 houses of multiple occupation.

Detail pages

Documents

DELEGATED OFFICER REPORT
Report
Not downloaded · Council link
EXISTING ELEVATIONS PLAN
Drawing
Not downloaded · Council link
EXISTING LOWER/GROUND/FIRST/SECOND/THIRD FLOOR PLAN
Drawing
Not downloaded · Council link
FOUL WATER CALCULATIONS
Other
Not downloaded · Council link
GRANT CONDITIONAL LISTED BUILDING CONSENT
Decision
Not downloaded · Council link
GREENFIELD RUNOFF RATE ESTIMATE
Other
Not downloaded · Council link
HERITAGE STATEMENT ADDENDUM
Report
Not downloaded · Council link
HISTORIC ENGLAND COMMENTS
Consultee Comment
Not downloaded · Council link
HYDRAULIC CALCULATIONS
Other
Not downloaded · Council link
LISTED BUILDING CONSENT
Application Form
Not downloaded · Council link
NEUTRAL
General Comment
Not downloaded · Council link
NOISE IMPACT ASSESSMENT
Report
Not downloaded · Council link
OBJECTS
Objection Comment
Not downloaded · Council link
PHOTO OF SITE NOTICE AND LOCATION PLAN
Photo
Not downloaded · Council link
PLANNING POLICY COMMENTS
Consultee Comment
Not downloaded · Council link
PROPOSED BIN STORE AND LOWER GROUND/GROUND/FIRST/SECOND/THIRD FLOOR PLAN
Drawing
Not downloaded · Council link
PROPOSED DRAINAGE CONSTRUCTION DETAILS PLAN
Drawing
Not downloaded · Council link
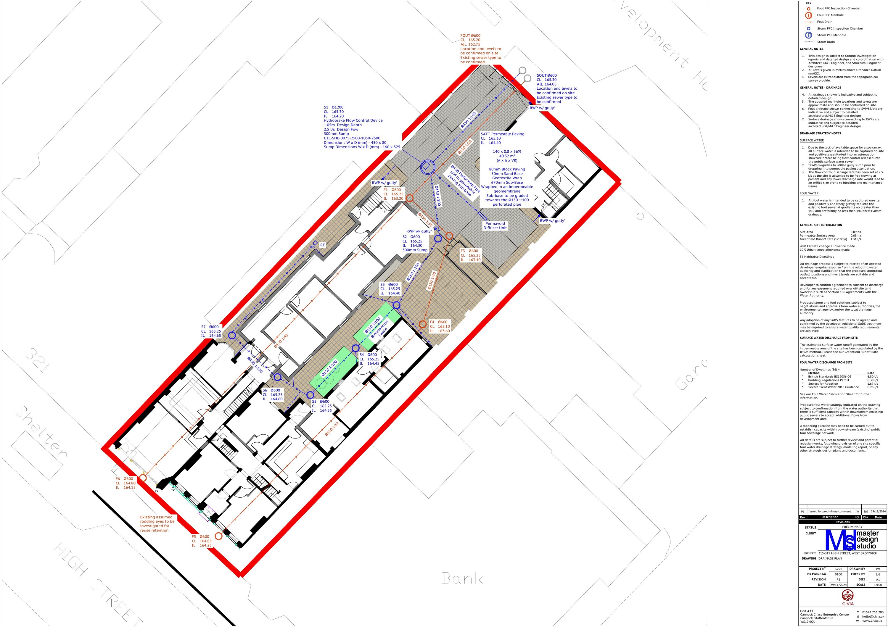
PROPOSED DRAINAGE PLAN
Drawing
Not downloaded · Council link
PROPOSED ELEVATIONS PLAN
Drawing
Not downloaded · Council link
PROPOSED LANDSCAPING PLAN
Drawing
Not downloaded · Council link
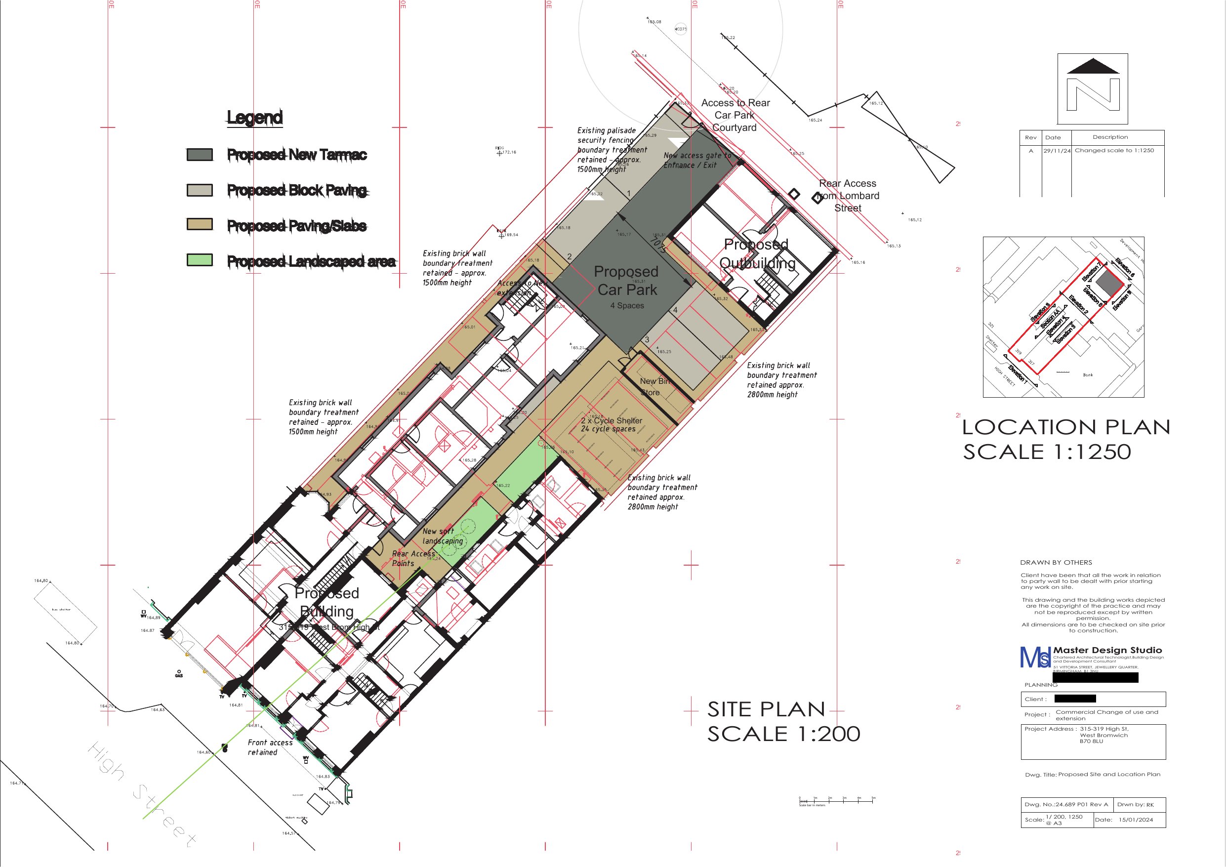
PROPOSED SITE AND LOCATION PLAN
OS Extract
Not downloaded · Council link
SITE NOTICE
Other
Not downloaded · Council link
TRANSPORT NOTE
Report
Not downloaded · Council link
WEST MIDLANDS POLICE COMMENTS
Consultee Comment
Not downloaded · Council link