← Sandwell Council

Status

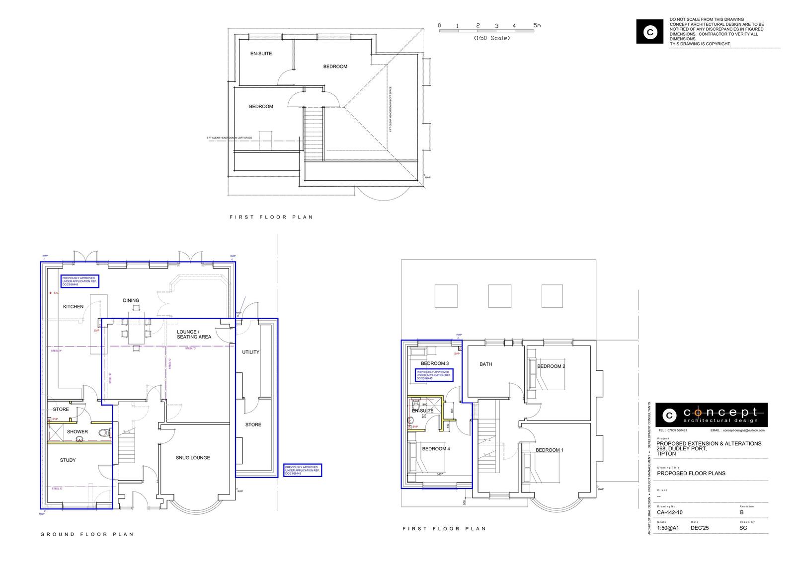
Awaiting decision House extension
Received
28 Jan 2026
New homes
0

Full proposal

Proposed hip-to-gable loft conversion with rear dormer.

Have your say

Your comment matters. Councils must consider every representation that raises material planning considerations.

Write a comment