← Sandwell Council

Status

Awaiting decision Change of use
Received
05 Feb 2026
New homes
0

Full proposal

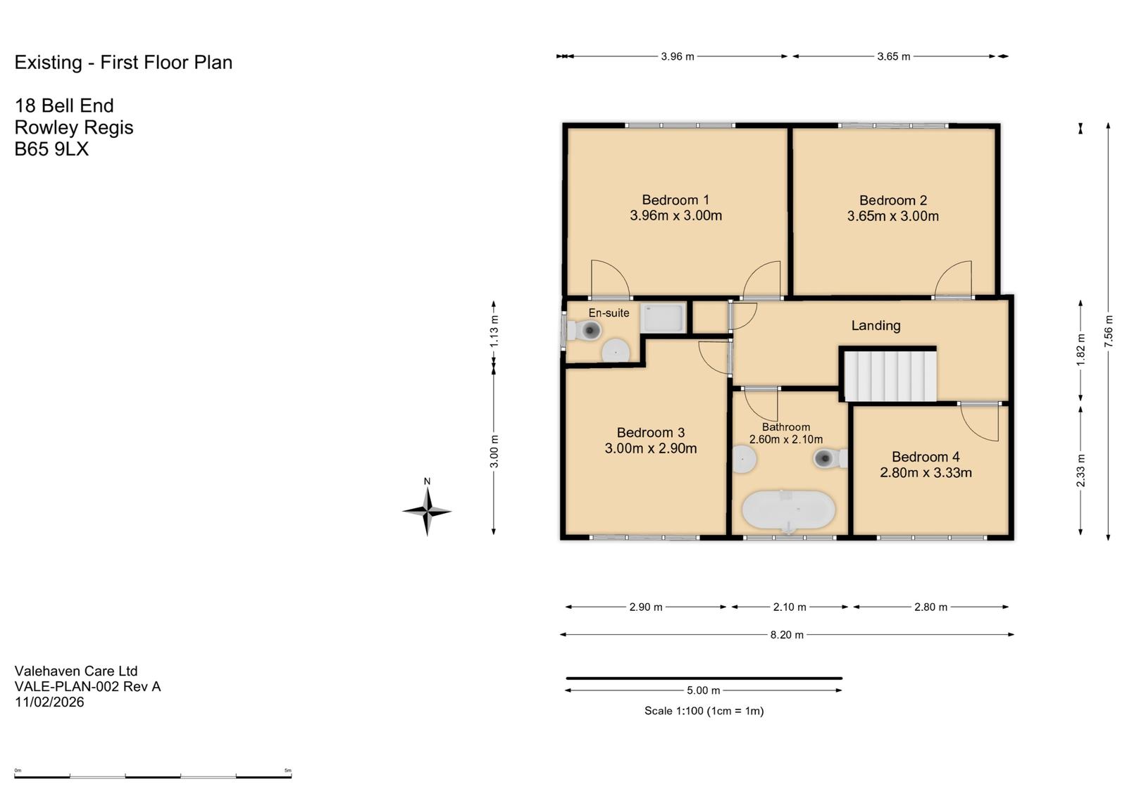
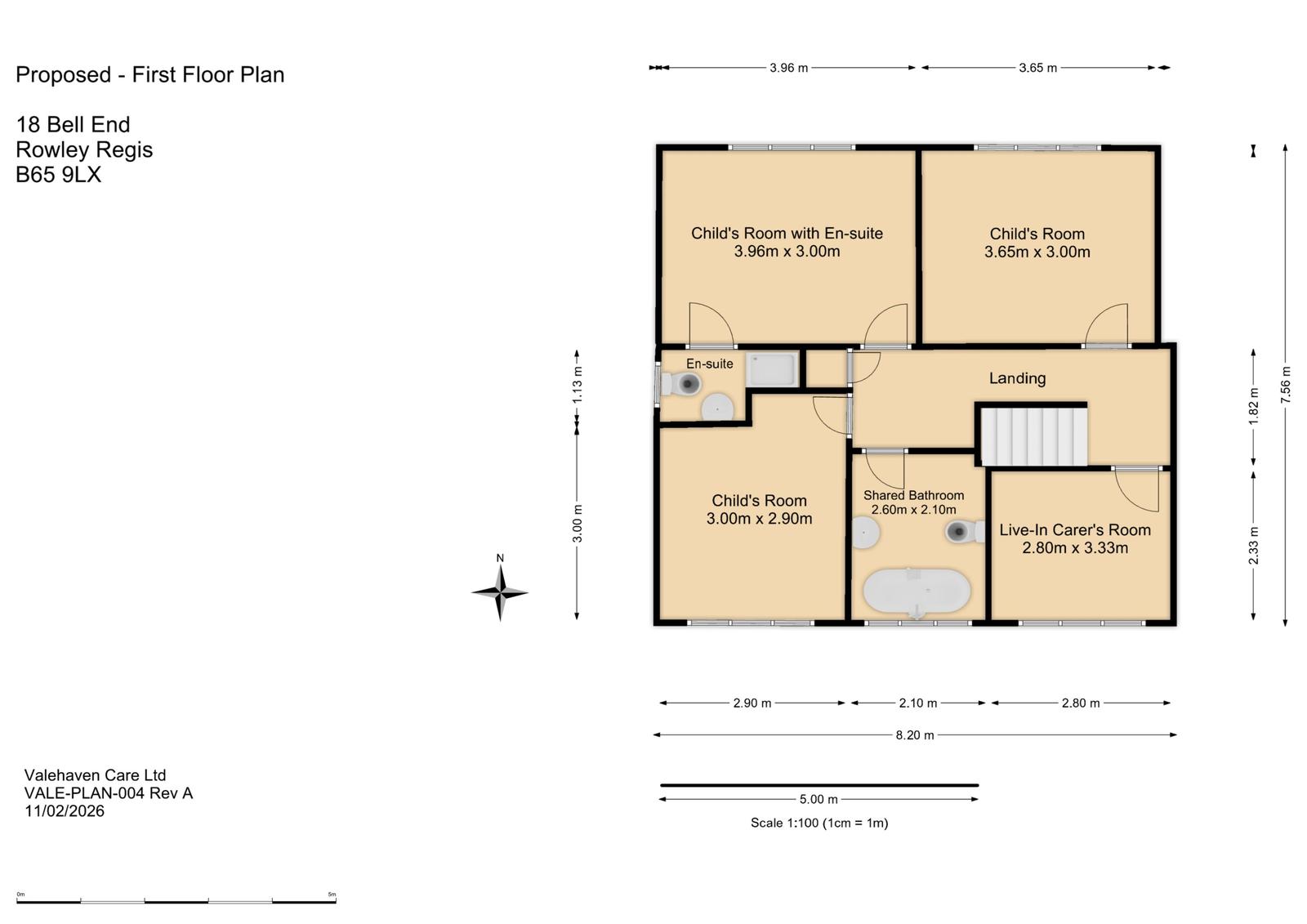
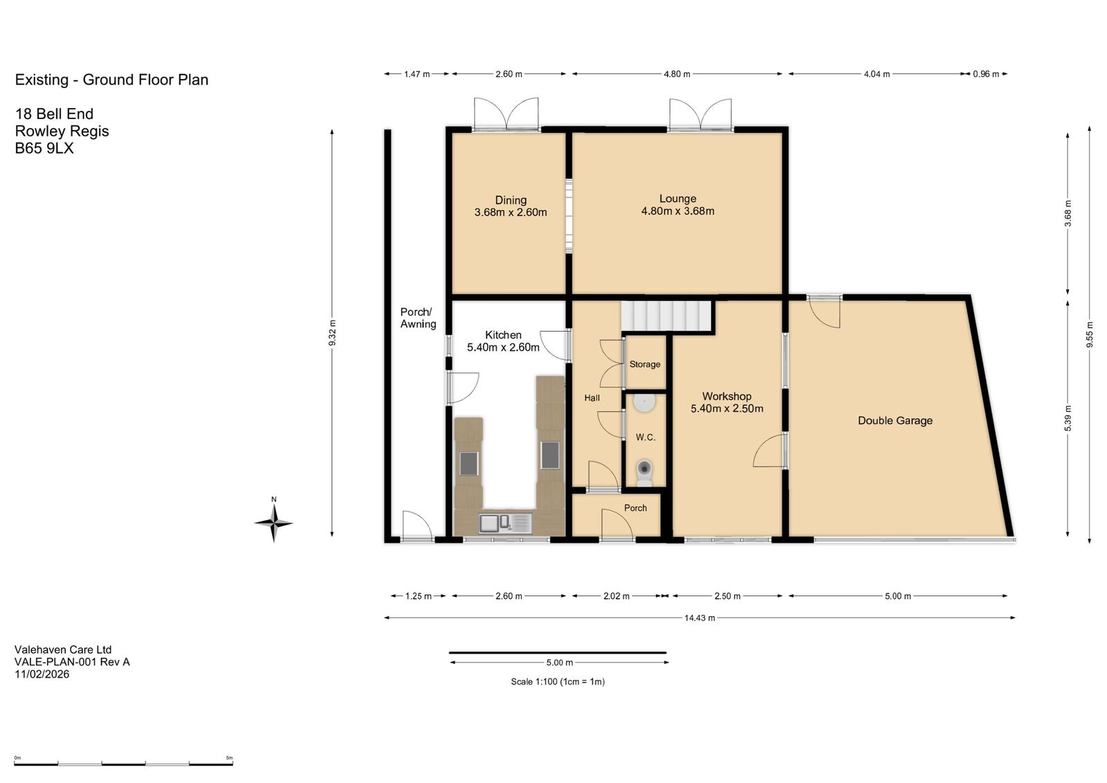
Proposed change of use from residential dwelling to residential care home for up to 3 No. young people aged between 8-18 years old (Lawful Development Certificate)

Have your say

Your comment matters. Councils must consider every representation that raises material planning considerations.

Write a comment