← Sandwell Council

Status

Awaiting decision Commercial
Received
Last month
New homes
0

Full proposal

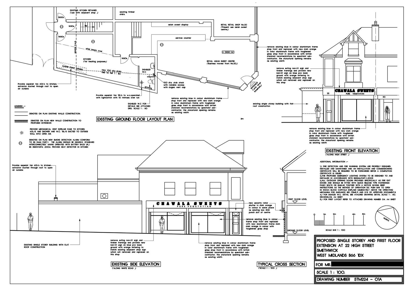
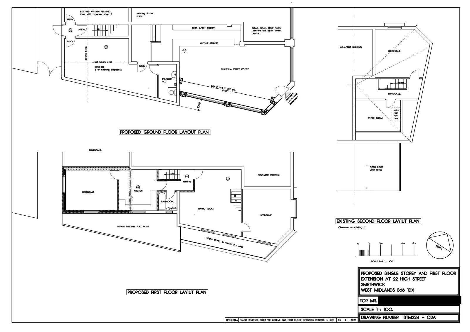
Proposed single storey front and side extension to existing ground floor retail shop, new shop front, roller shutters and first floor rear extension to existing flat. (Revision to refused planning permission DC/24/69670).

Have your say

Your comment matters. Councils must consider every representation that raises material planning considerations.

Write a comment