← Sandwell Council

Status

Awaiting decision Change of use
Received
Last month
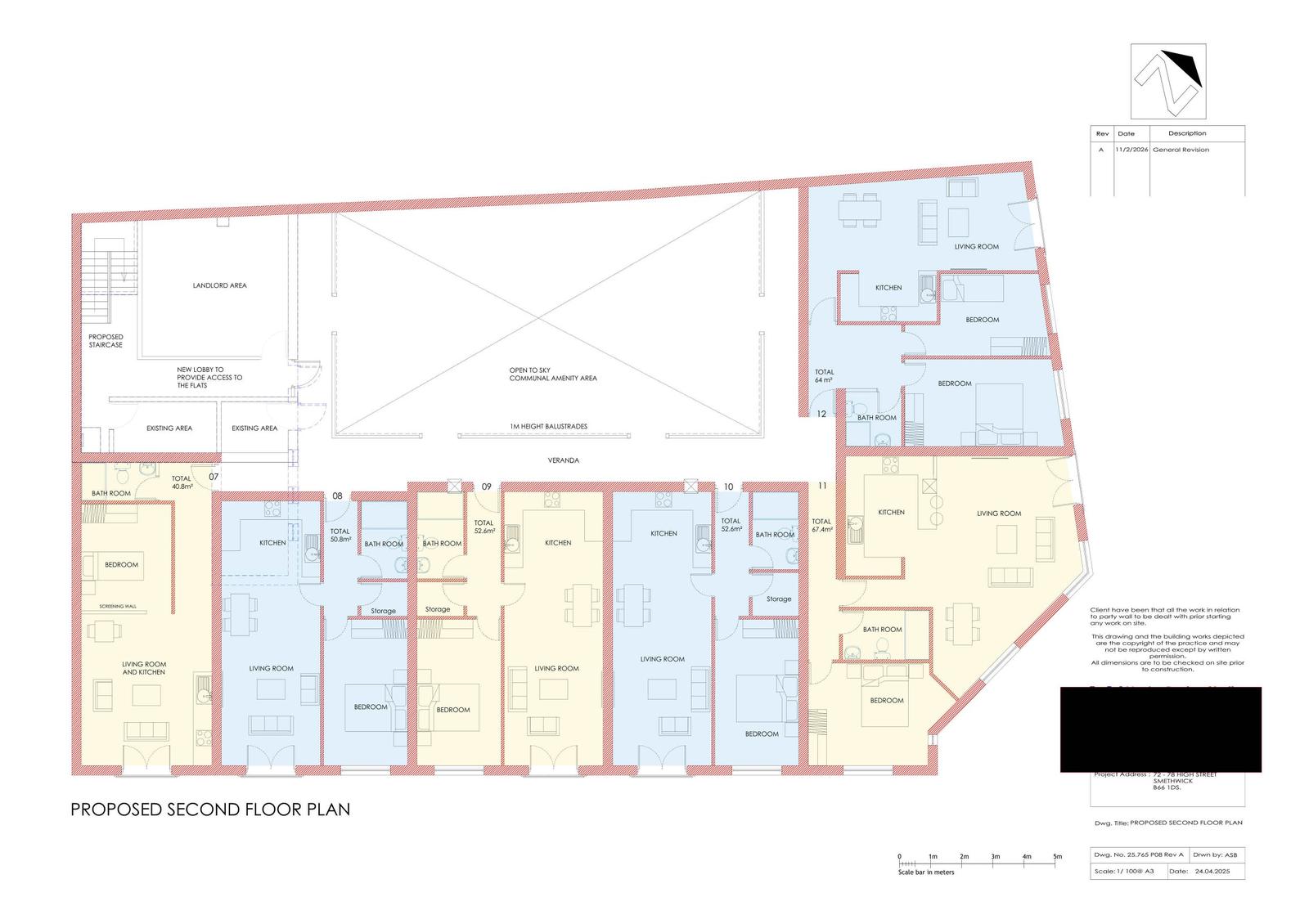
New homes
12

Full proposal

Proposed change of use from retail/storage of ground floor rear and first floor with two storey rear extension, creation of new second floor creating 12 No. self-contained flats with second floor amenity area and associated works.

Documents

Consultee Comment
Archived · Original link
Consultee Comment
Archived · Original link
Application Form
Archived · Original link
Consultee Comment
Archived · Original link
Consultee Comment
Archived · Original link
OS Extract
Archived · Original link
Drawing
Archived · Original link
Photo
Archived · Original link
Consultee Comment
Archived · Original link
Consultee Comment
Archived · Original link
Consultee Comment
Archived · Original link

Have your say

Your comment matters. Councils must consider every representation that raises material planning considerations.

Write a comment