← Sandwell Council

Status

Awaiting decision New housing
Received
Last month
New homes
100

Full proposal

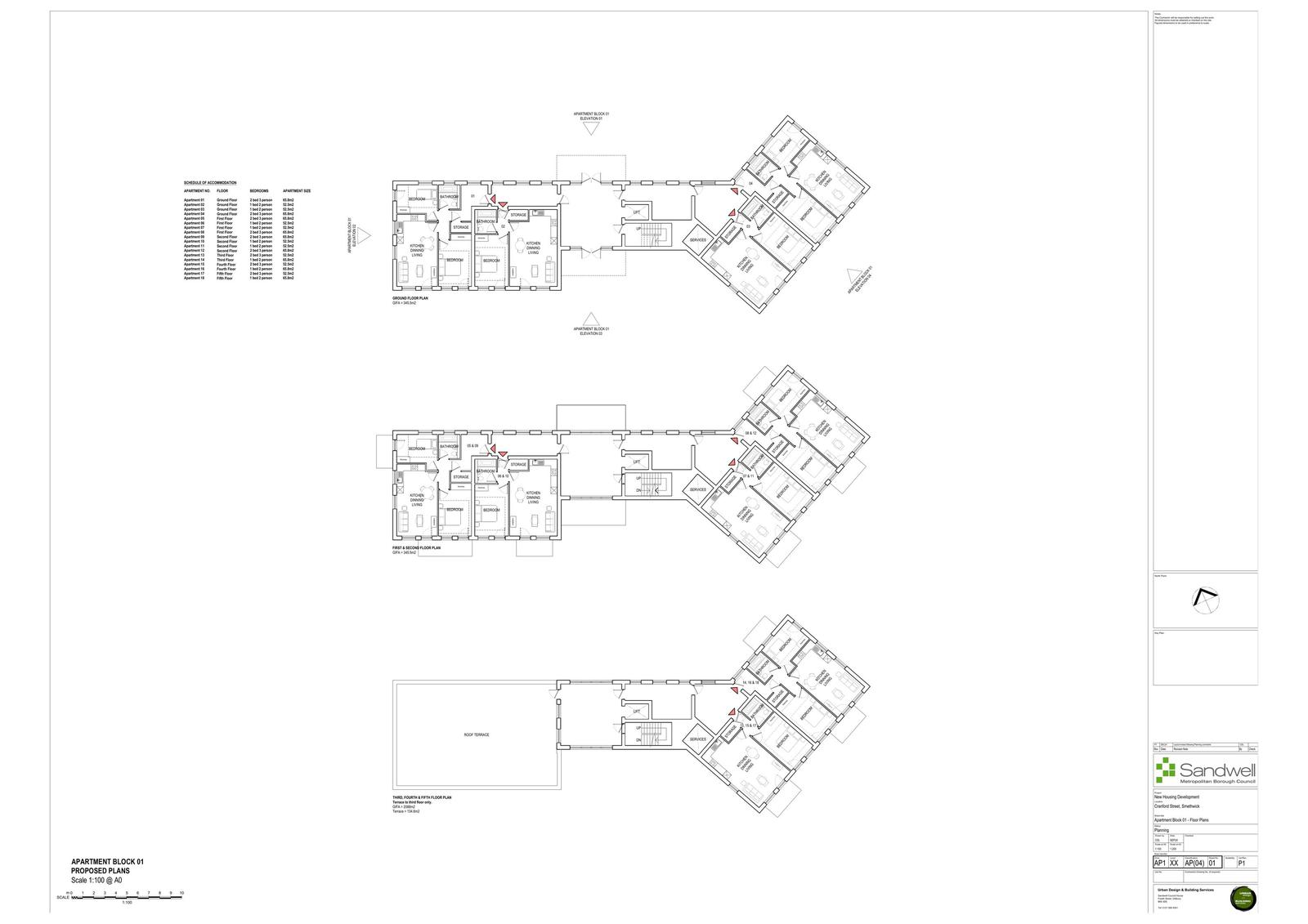
Proposed 26 No. residential dwellings, 5 No. apartment blocks consisting of 74 No. self-contained apartments, 1 No. commercial unit, parking, landscaping and associated works.

Documents

Application Form
Archived · Original link
Drawing
Archived · Original link
Drawing
Archived · Original link
OS Extract
Archived · Original link
Other
Archived · Original link
Drawing
Archived · Original link
Drawing
Archived · Original link
SCRUB CONDITION SHEET
Other
Not yet archived · Original link
Photo
Archived · Original link
Consultee Comment
Archived · Original link
Report
Archived · Original link
Report
Archived · Original link
Consultee Comment
Archived · Original link

Have your say

Your comment matters. Councils must consider every representation that raises material planning considerations.

Write a comment