← Sandwell Council

Status

Awaiting decision House extension
Received
Last month
New homes
0

Full proposal

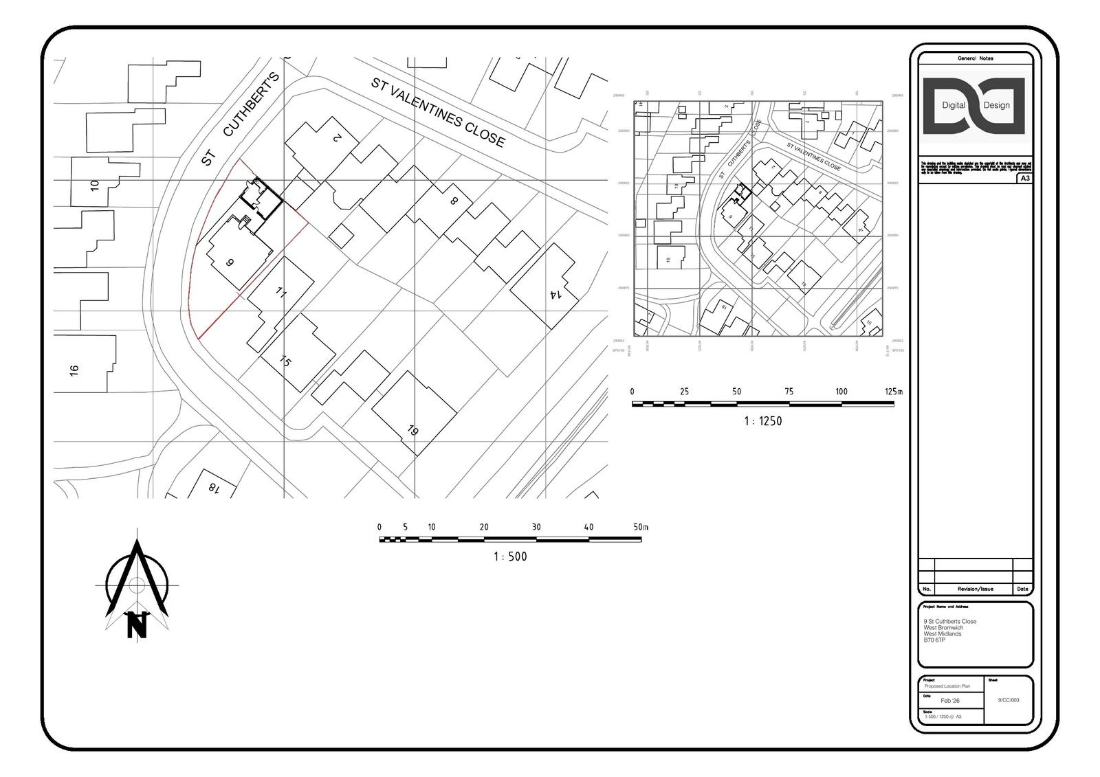
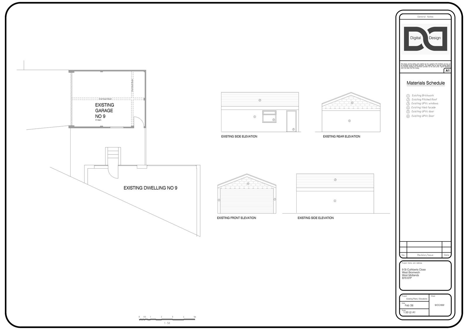
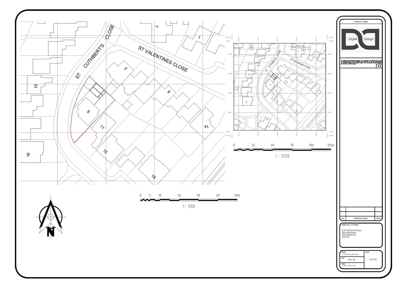
Proposed raising of existing garage roof height and conversion of garage to home office.

Have your say

Your comment matters. Councils must consider every representation that raises material planning considerations.

Write a comment