← Sandwell Council

Status

Awaiting decision New housing
Received
Last month
New homes
1

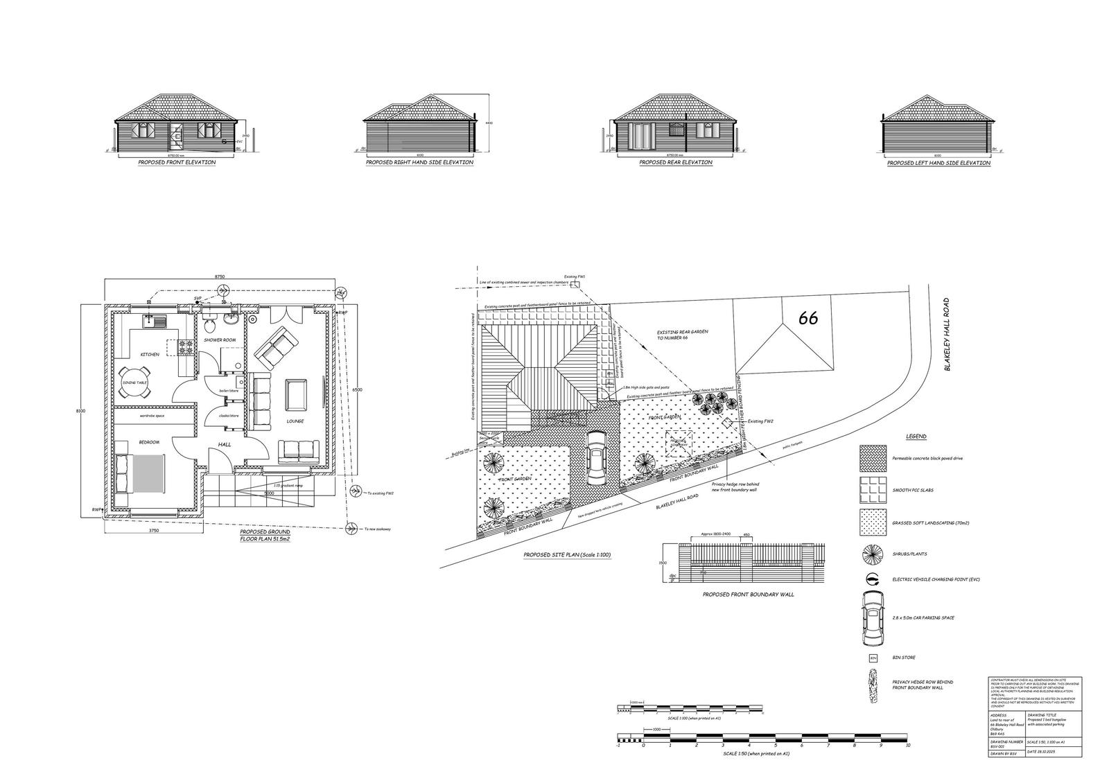
Full proposal

Proposed 1 No. bedroom bungalow with parking and associated works (Revision to refused planning application DC/25/70549)

Have your say

Your comment matters. Councils must consider every representation that raises material planning considerations.

Write a comment