← Sandwell Council

Status

Awaiting decision New housing
Received
Last month
New homes
3

Full proposal

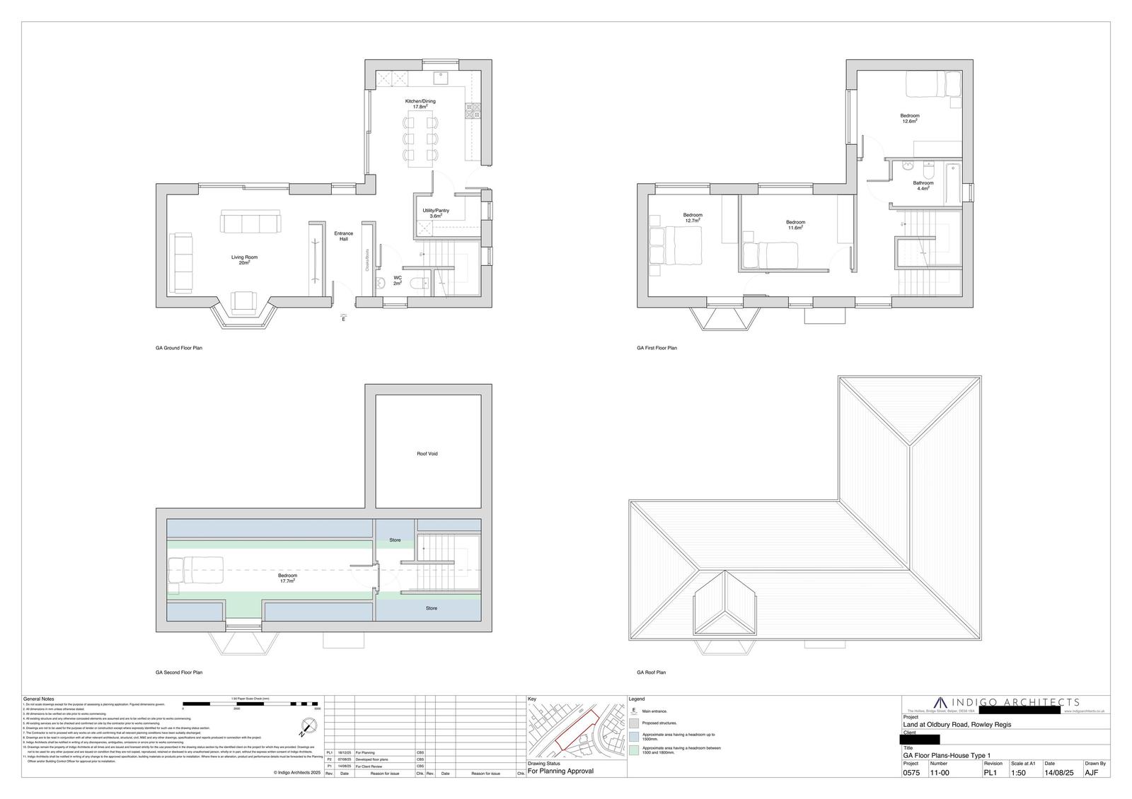
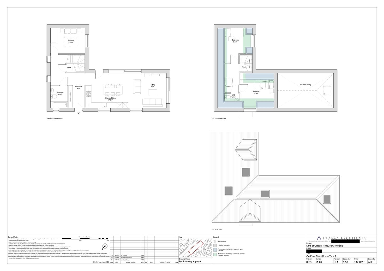
Proposed 3 No. detached residential dwellings with associated works.

Have your say

Your comment matters. Councils must consider every representation that raises material planning considerations.

Write a comment