← Sandwell Council

Status

Awaiting decision House extension
Received
Last month
New homes
0

Full proposal

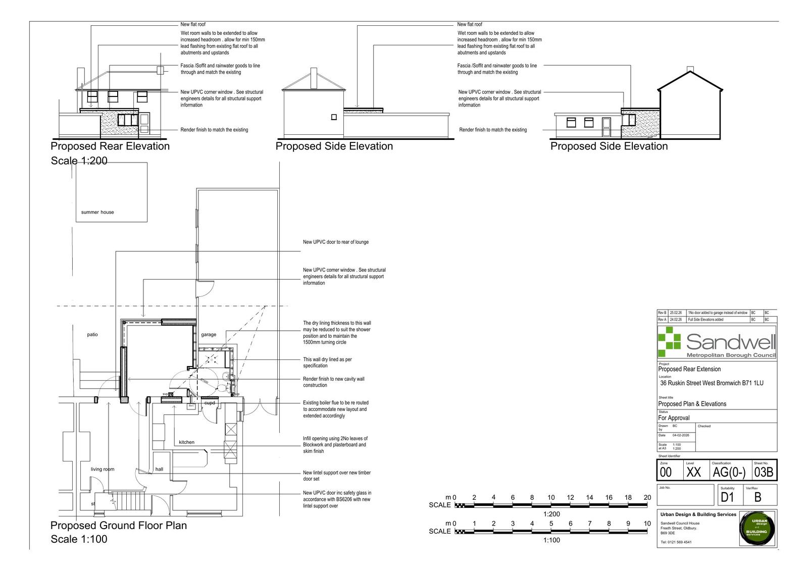
Proposed single storey rear extension and part garage conversion.

Have your say

Your comment matters. Councils must consider every representation that raises material planning considerations.

Write a comment