← Sandwell Council

Status

Awaiting decision Change of use
Received
Last month
New homes
0

Full proposal

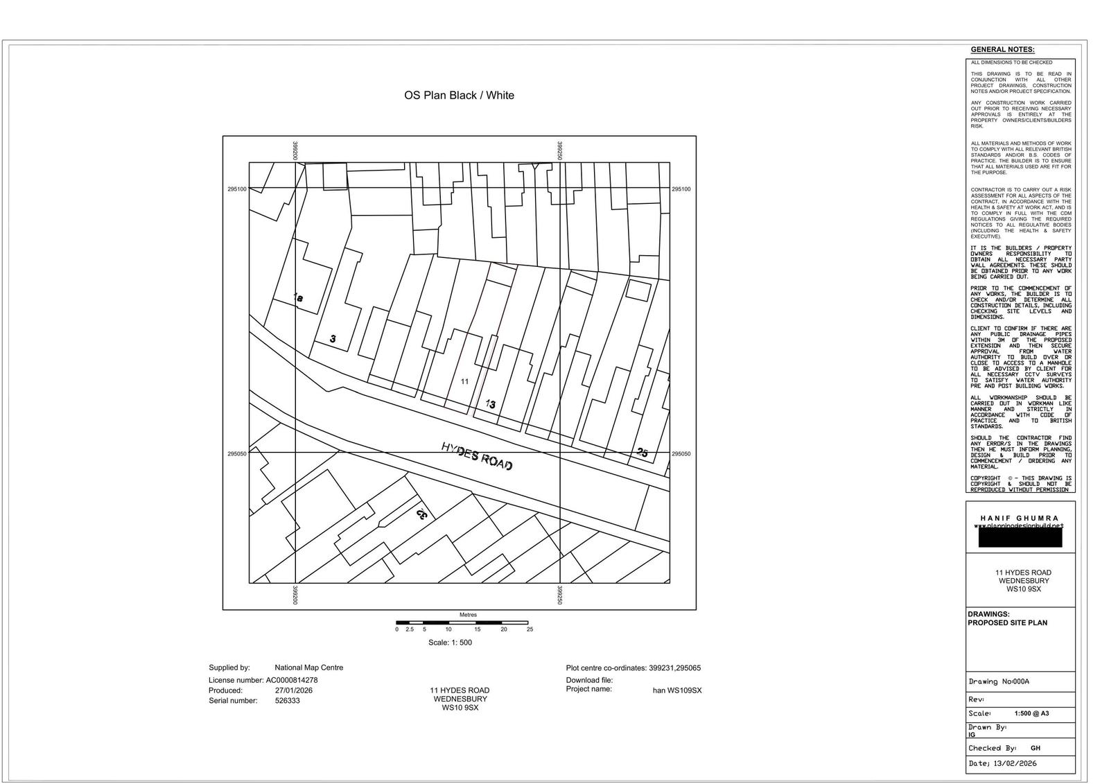
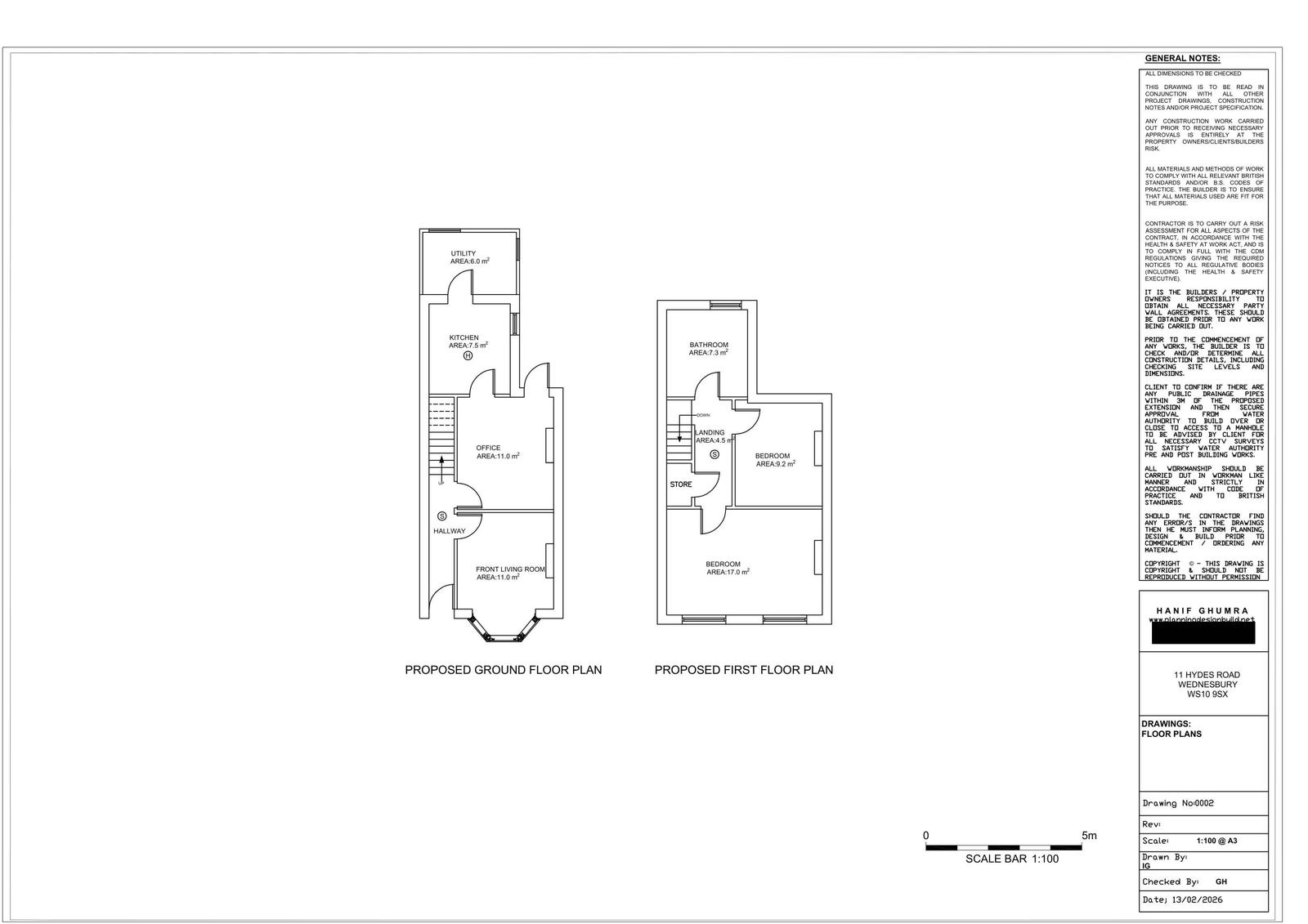
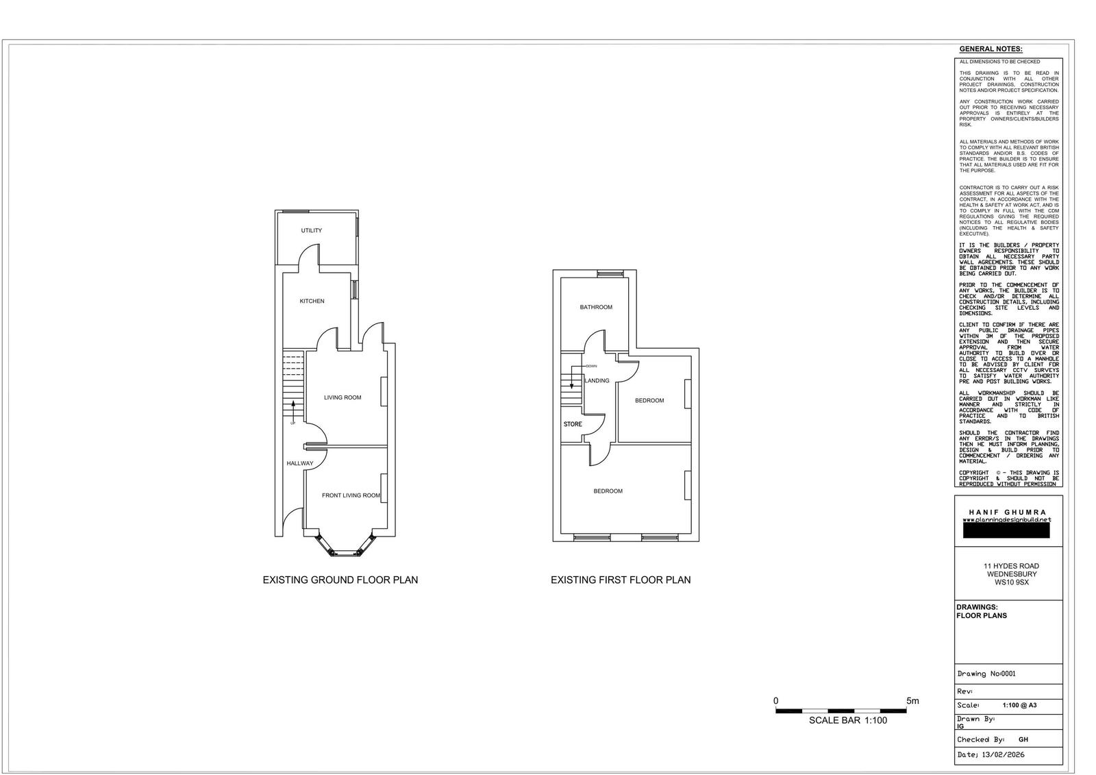
Proposed change of use from single family dwelling (Class C3) to residential home for up to two children (Class C2).

Have your say

Your comment matters. Councils must consider every representation that raises material planning considerations.

Write a comment