← Sandwell Council

Status

Awaiting decision House extension
Received
Last month
New homes
0

Full proposal

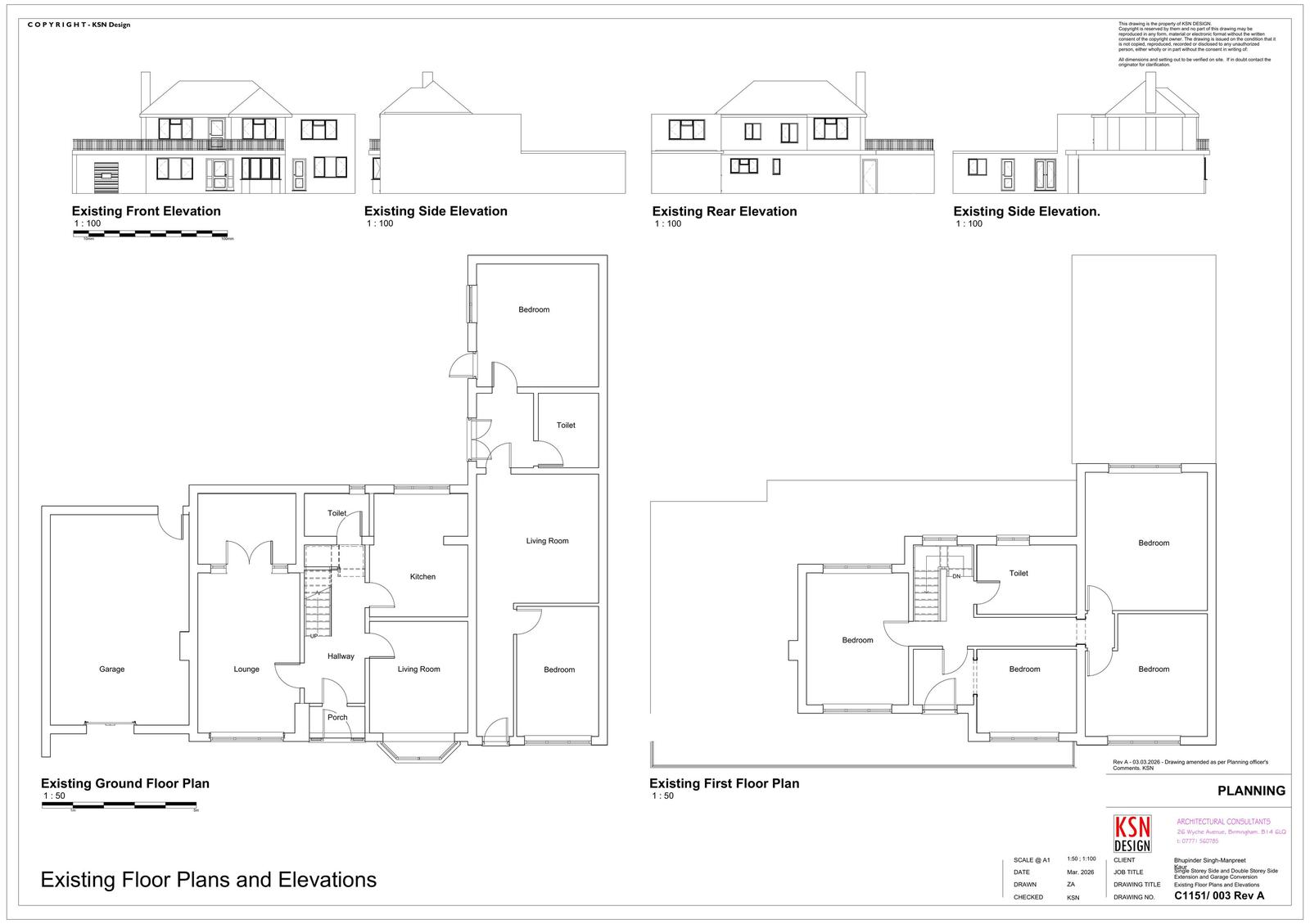
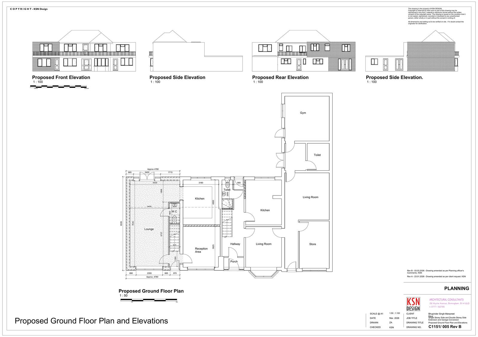
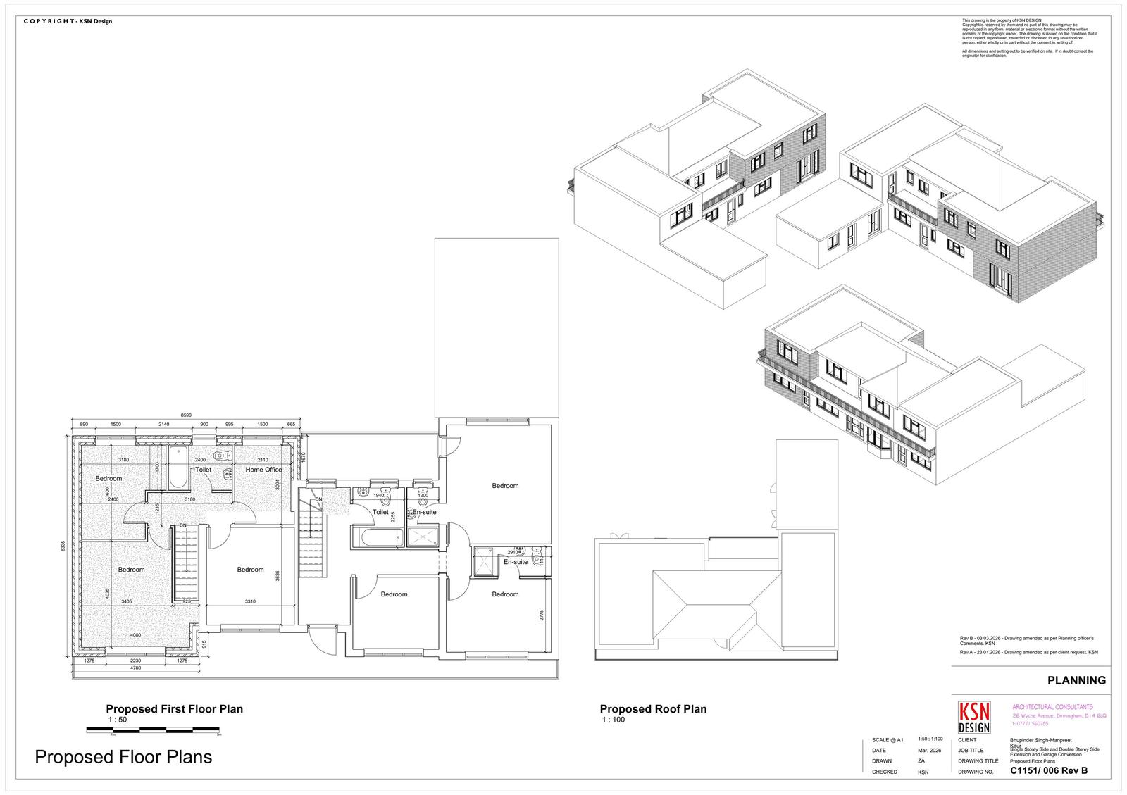
Demolition of garage, proposed single storey side extension, first floor front, side and rear extension, and pitched roof over existing flat roof to create 3 bed dwelling.

Have your say

Your comment matters. Councils must consider every representation that raises material planning considerations.

Write a comment