← Sandwell Council

Status

Awaiting decision House extension
Received
Last month
New homes
0

Full proposal

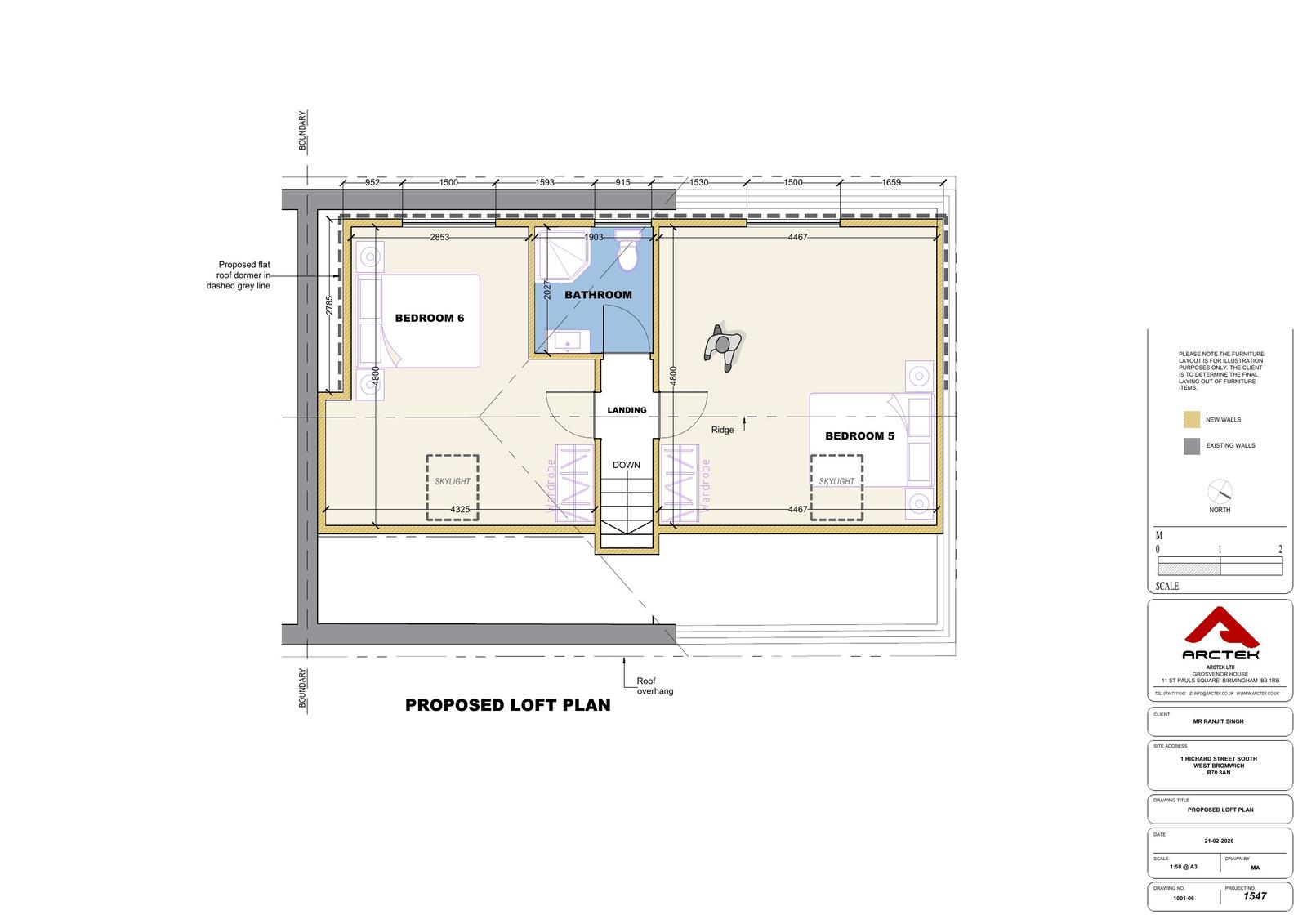
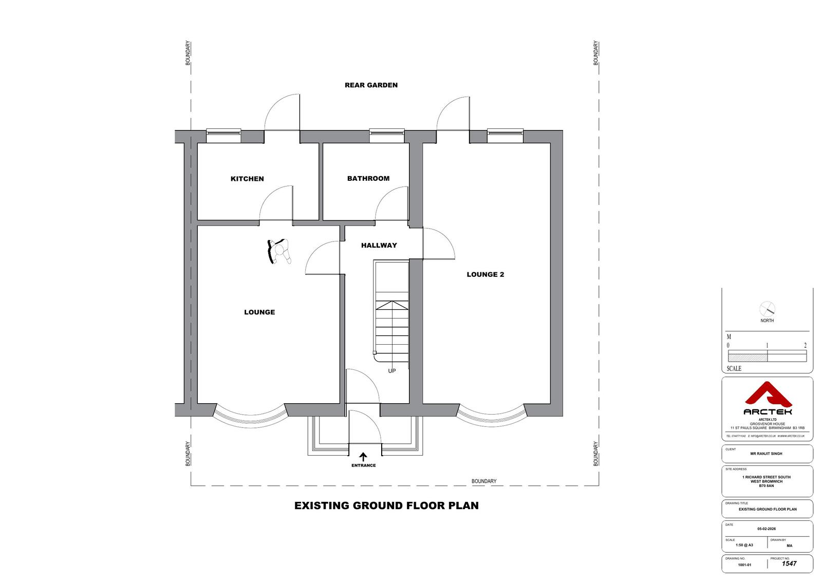
Proposed single and two storey side extension, single storey front extension, loft conversion and internal alterations at ground floor.

Have your say

Your comment matters. Councils must consider every representation that raises material planning considerations.

Write a comment