← Sandwell Council

Status

Awaiting decision Change of use
Received
Last month
New homes
6

Full proposal

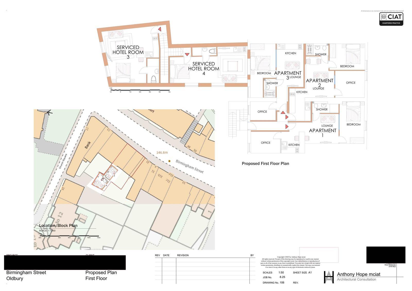
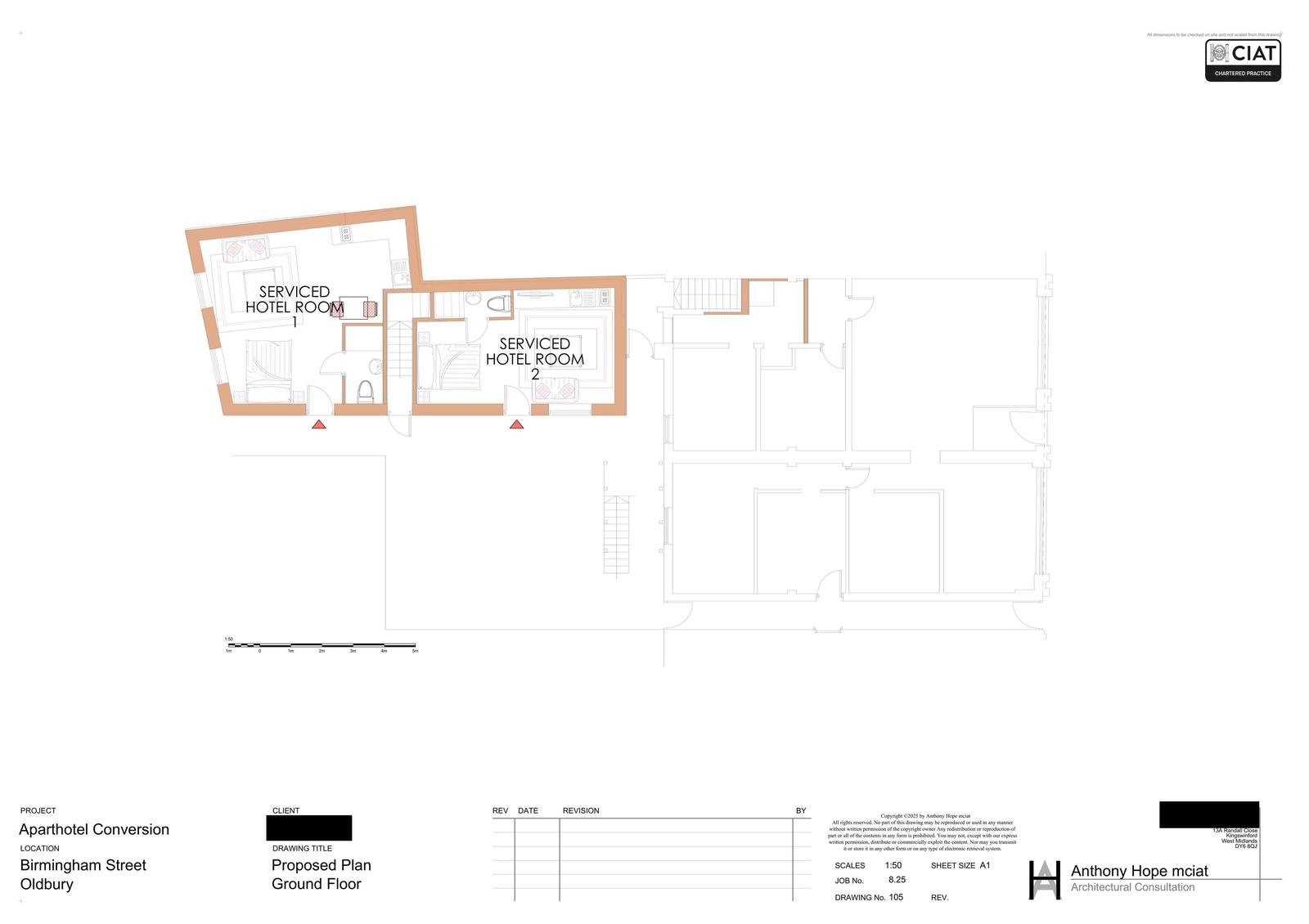
Proposed two storey rear extension comprising of 4 No. self service hotel rooms, conversion of first/second floors from offices to 6 No. self-contained apartments and external staircase extension to rear.

Have your say

Your comment matters. Councils must consider every representation that raises material planning considerations.

Write a comment