← Sandwell Council

Status

Awaiting decision House extension
Received
Last month
New homes
0

Full proposal

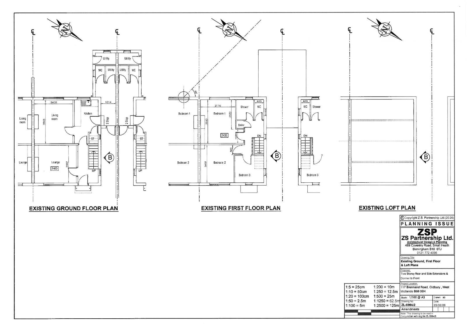
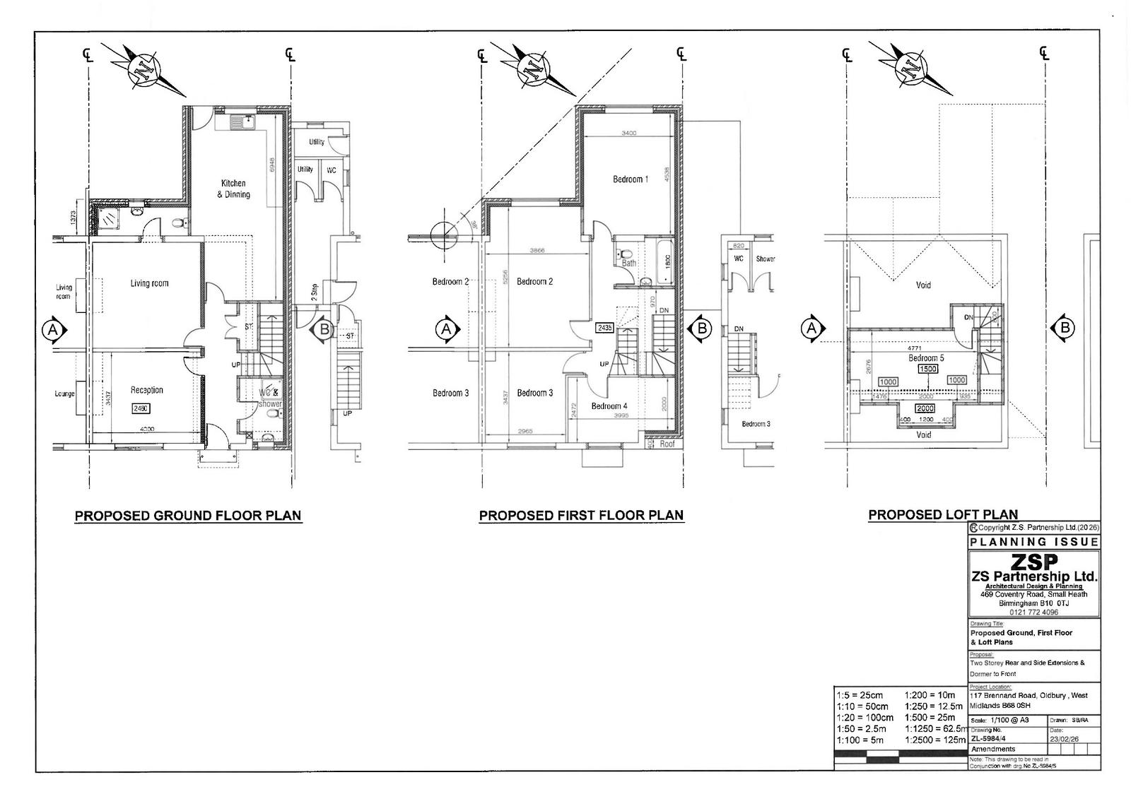
Proposed two storey side/rear and single storey side extensions, loft conversion and front dormer window.

Have your say

Your comment matters. Councils must consider every representation that raises material planning considerations.

Write a comment