← Sandwell Council

Status

Awaiting decision House extension
Received
Last month
New homes
0

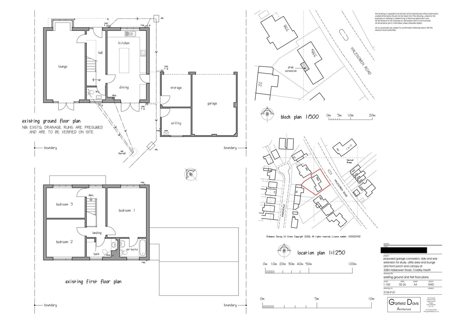
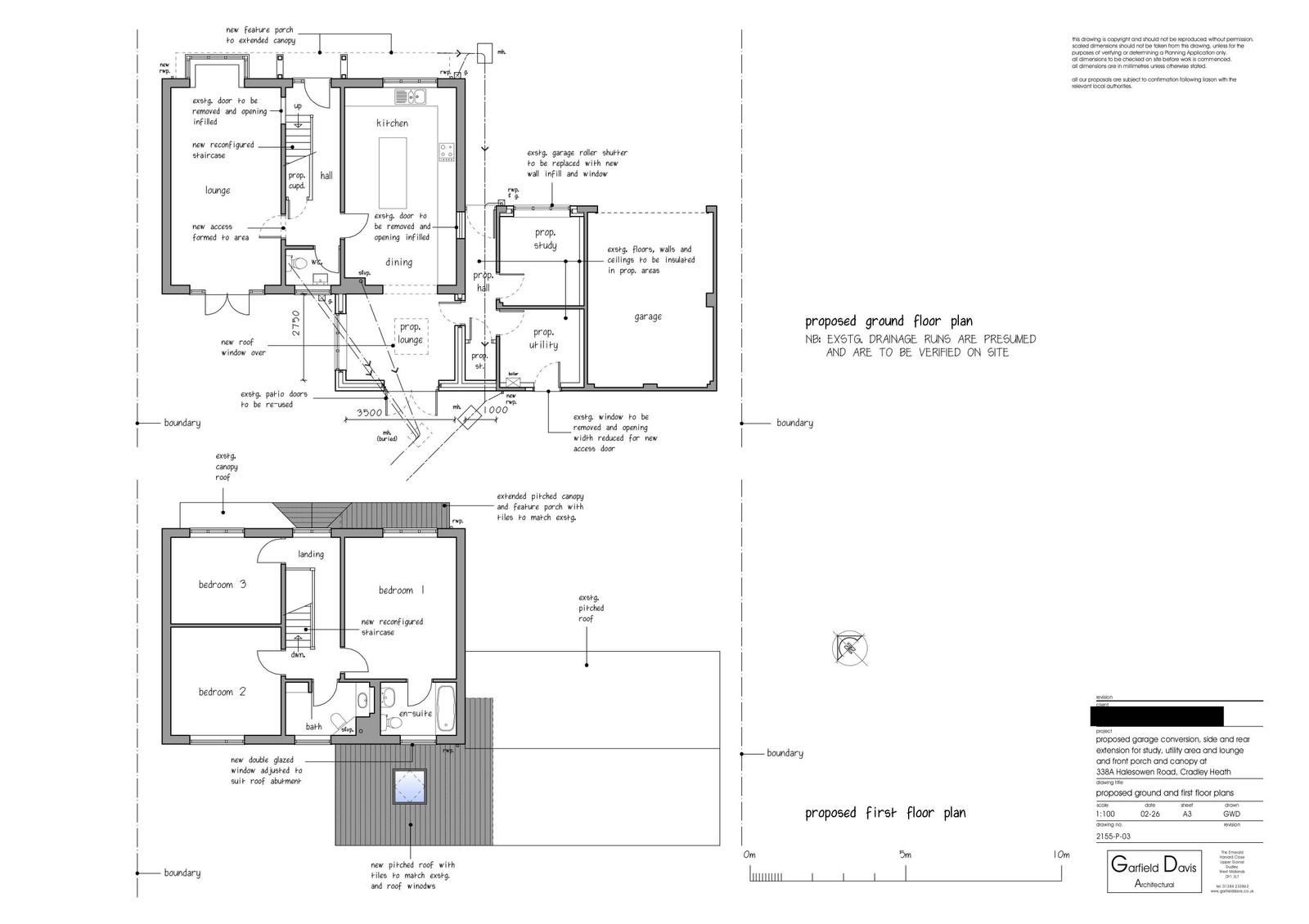
Full proposal

Proposed single storey side and rear extension, front porch and canopy and part garage conversion into habitable room.

Have your say

Your comment matters. Councils must consider every representation that raises material planning considerations.

Write a comment