← Sandwell Council

Status

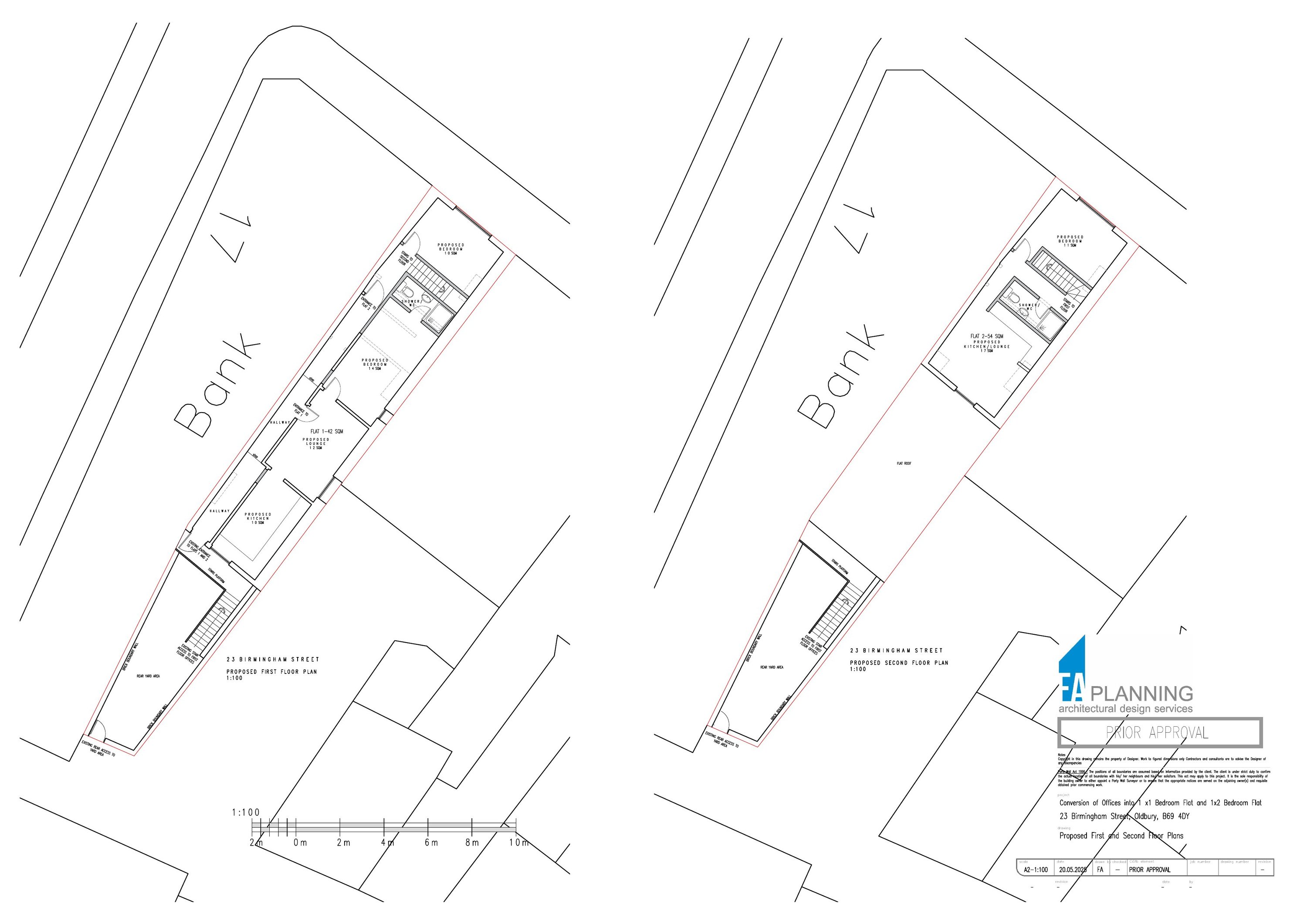
Unknown Change of use
Received
21 May 2025
New homes
2

Full proposal

Proposed change of use from offices to 1 No.one bedroom flat and 1 No. two bedroom flat to first and second floors.

Have your say

Your comment matters. Councils must consider every representation that raises material planning considerations.

Write a comment