← Sandwell Council

Status

Awaiting decision Change of use
Received
Last month
New homes
2

Full proposal

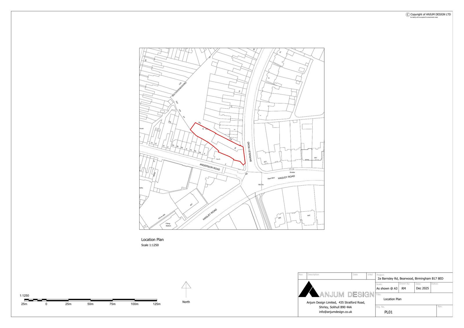
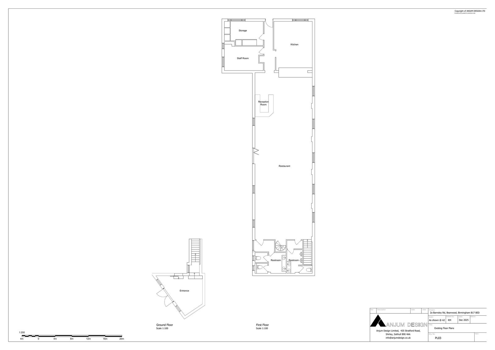
Proposed change of use of first floor from restaurant to 2 No. self-contained flats.

Documents

Drawing
Archived · Original link
Drawing
Archived · Original link
OS Extract
Archived · Original link
Application Form
Archived · Original link
Drawing
Archived · Original link
OS Extract
Archived · Original link
Consultee Comment
Archived · Original link

Have your say

Your comment matters. Councils must consider every representation that raises material planning considerations.

Write a comment