← Sandwell Council

Status

Awaiting decision Change of use
Received
Last month
New homes
4

Full proposal

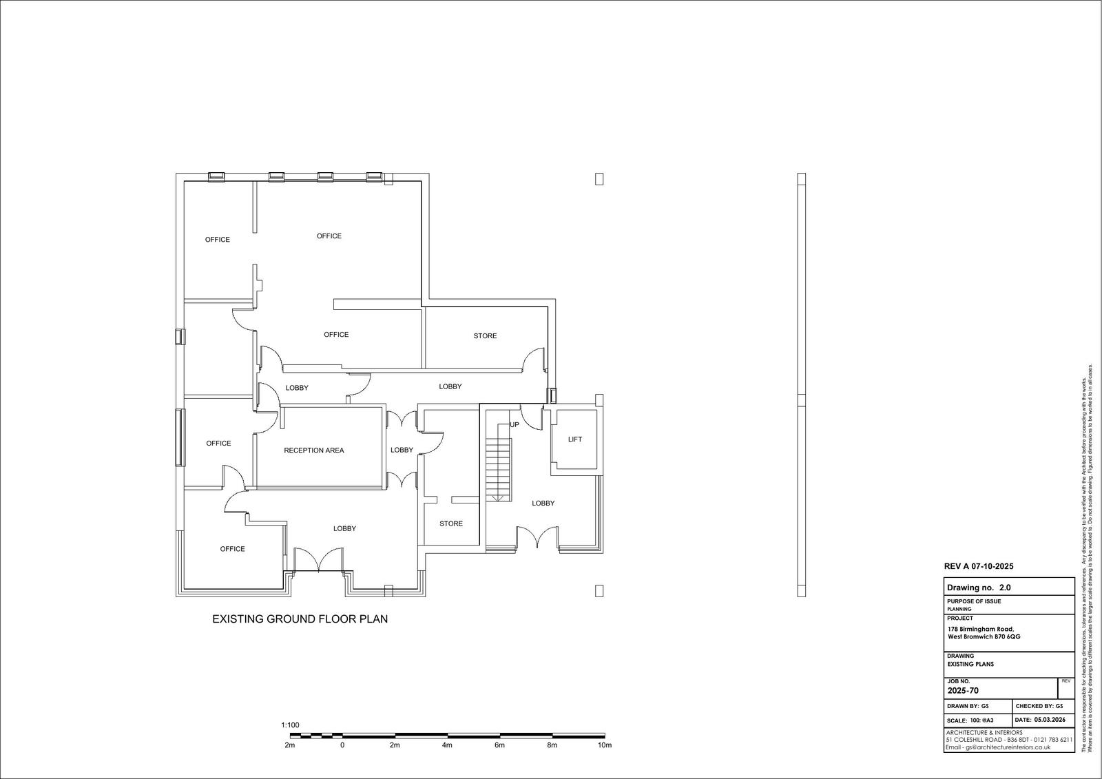
Proposed conversion of existing ground floor to 4 no. studio flats.

Have your say

Your comment matters. Councils must consider every representation that raises material planning considerations.

Write a comment