DC/2024/02165
Sefton Council
Status
Full proposal
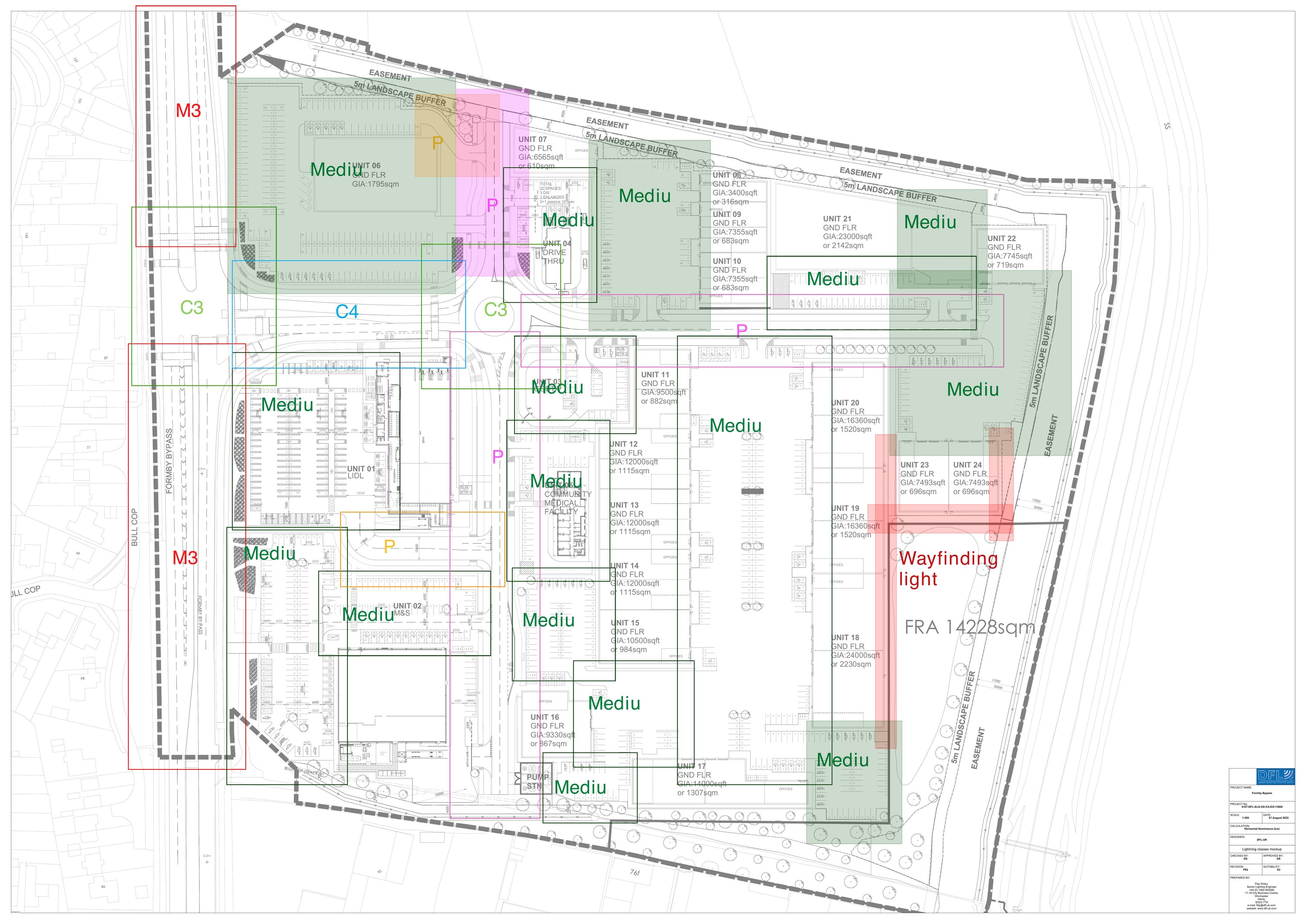
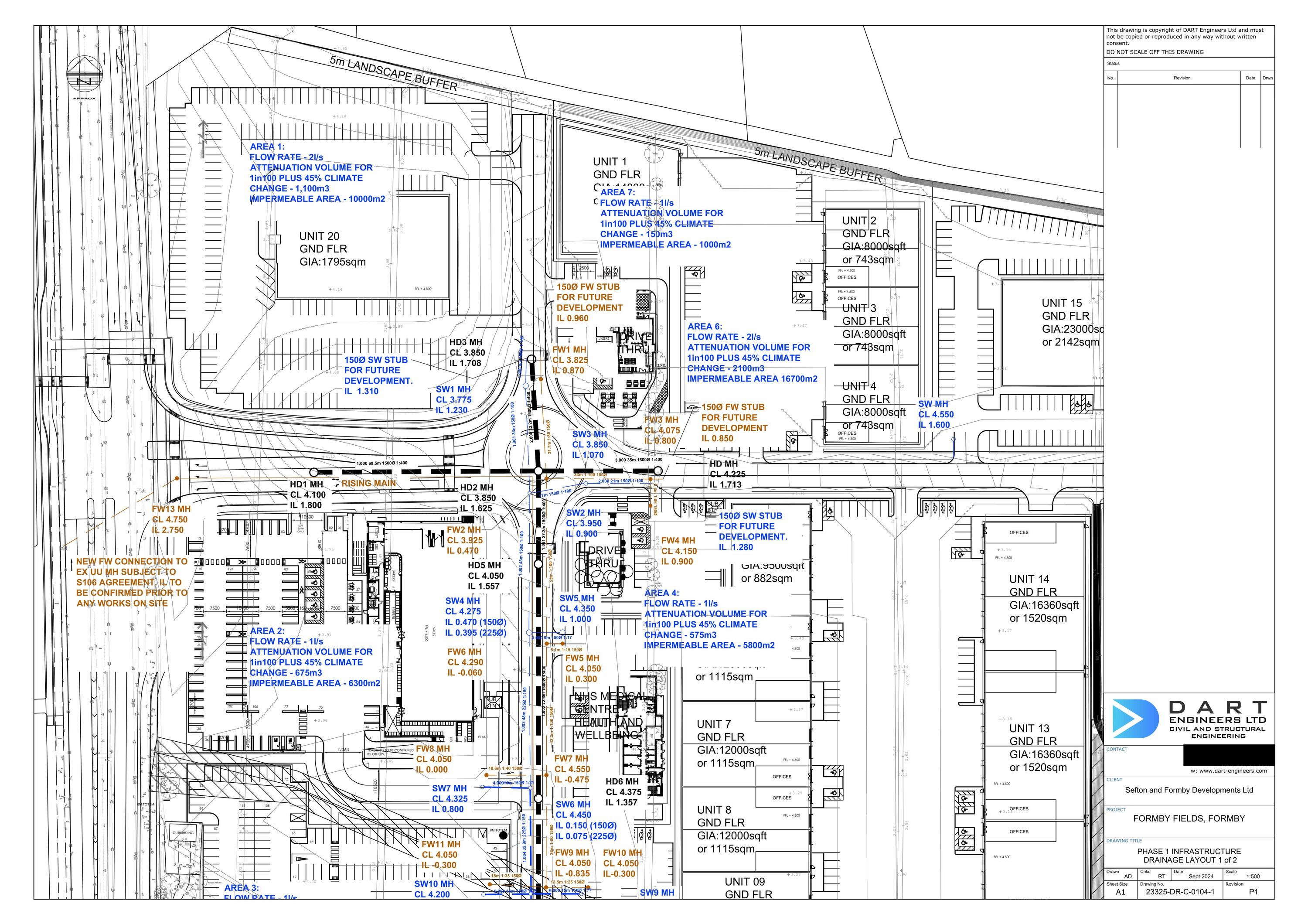
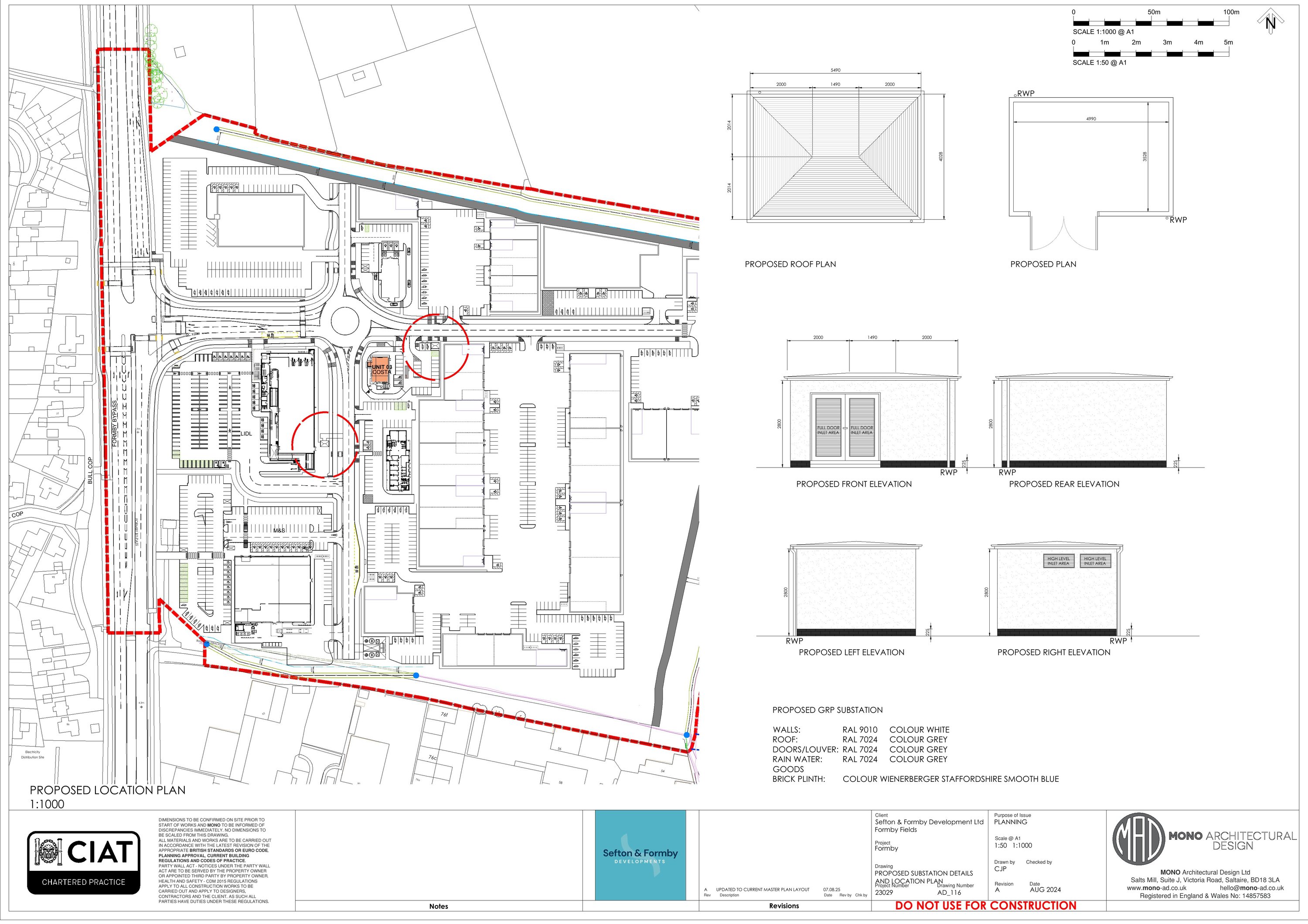
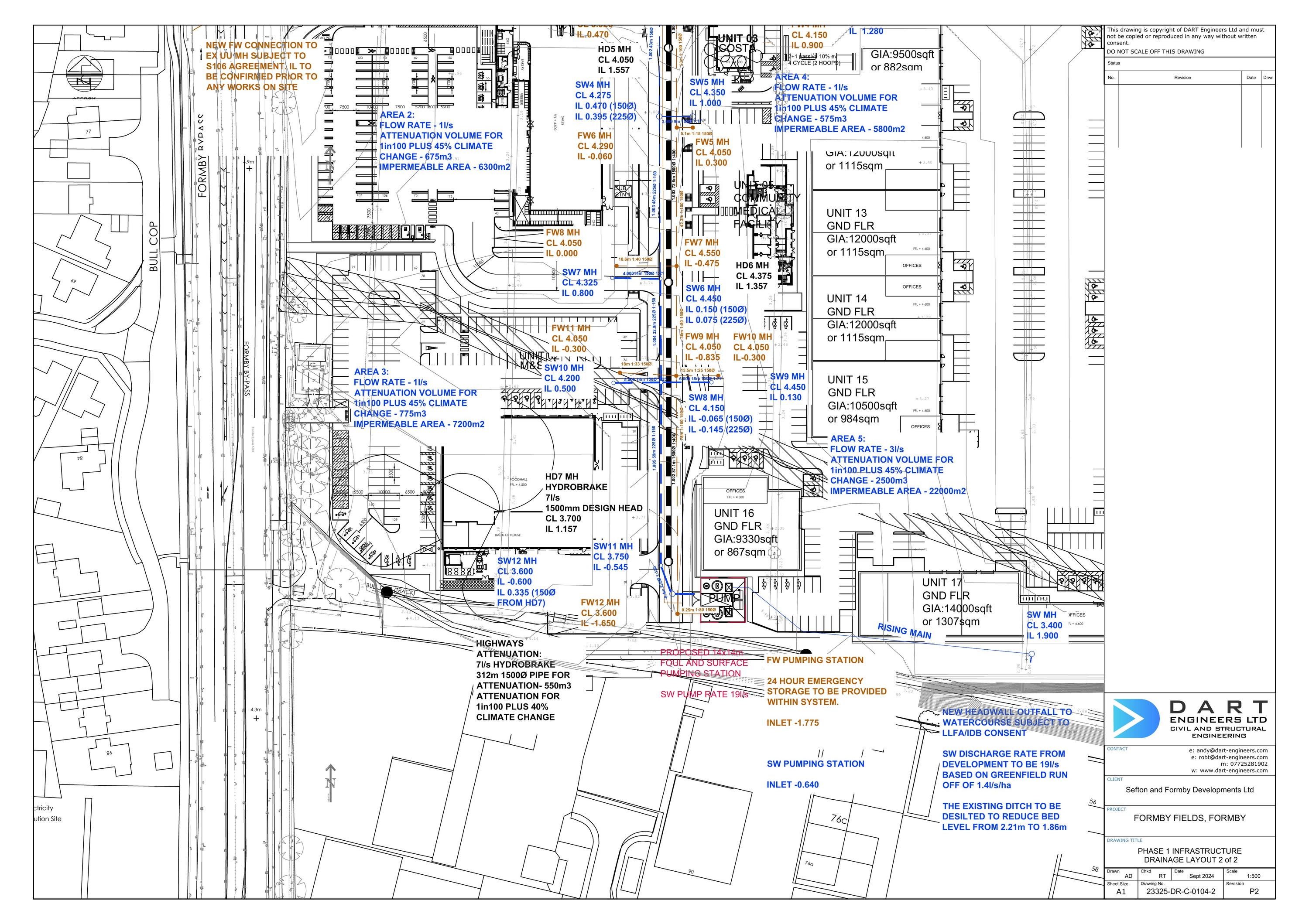
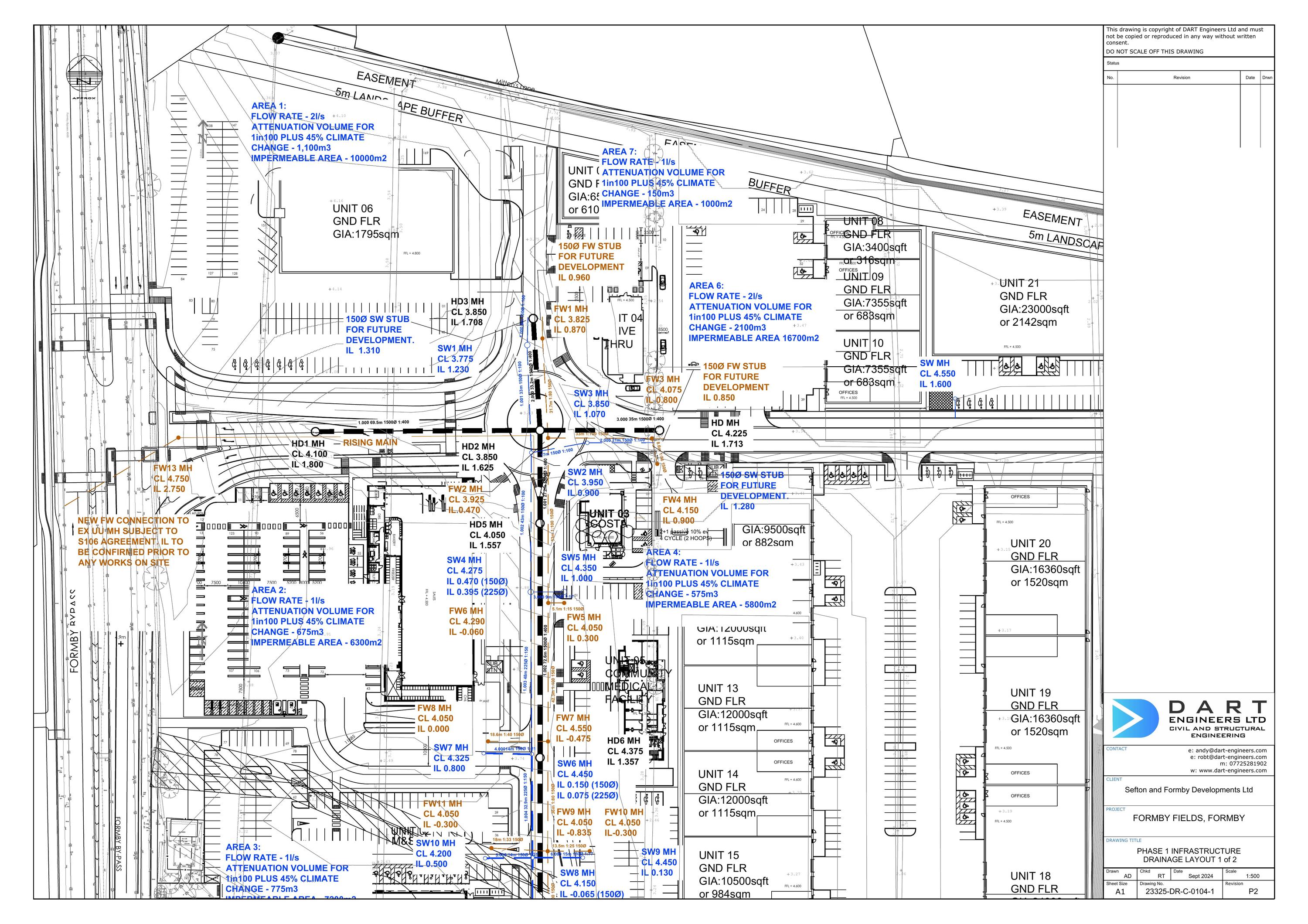
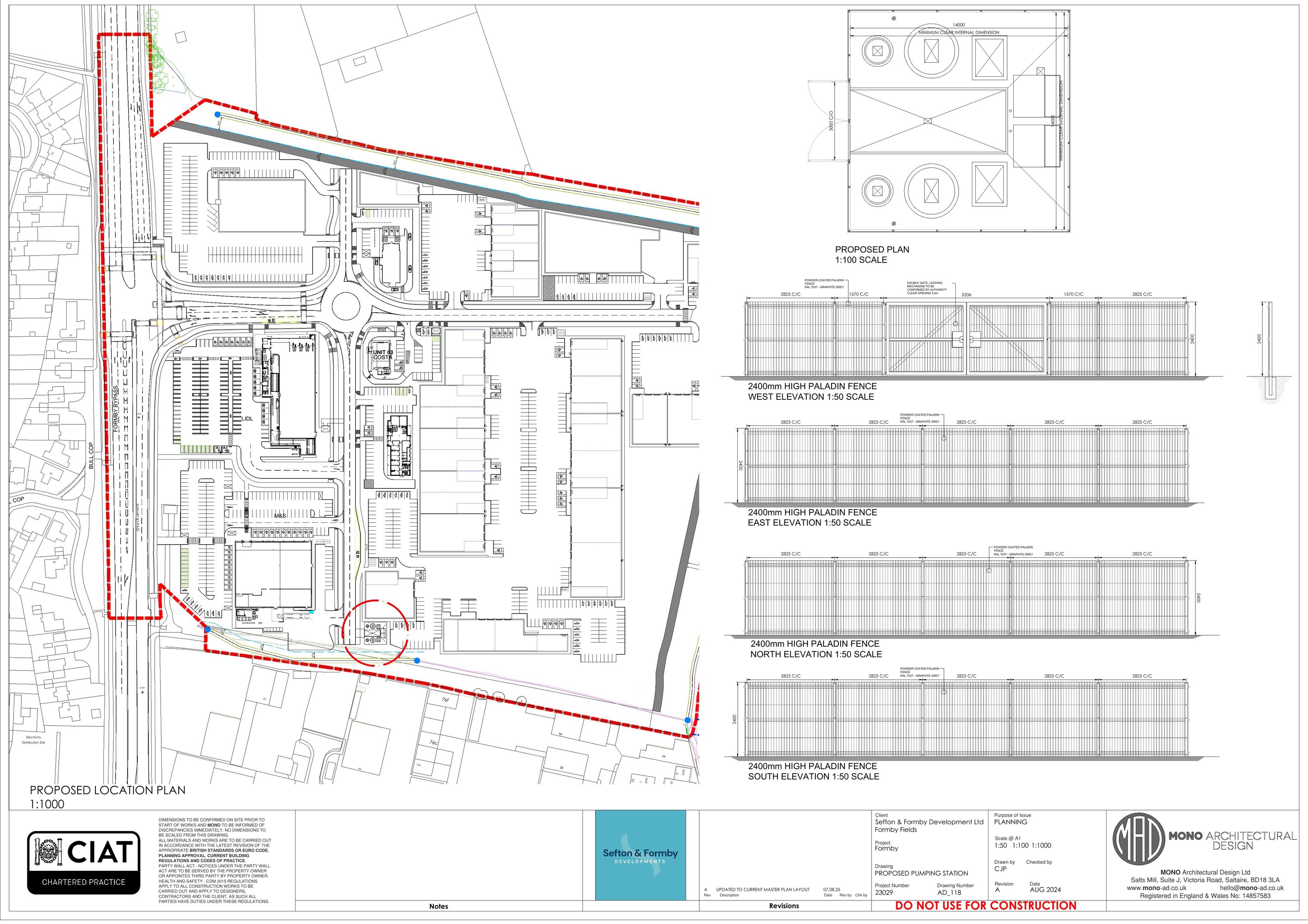
Hybrid planning application comprising: Full planning permission for a phased development comprising: construction of a signal controlled junction on Formby bypass, footways and cycle paths, and associated works (Phase I); infrastructure works to include an estate road and internal roundabout, utility supplies, electricity sub-stations, surface water and flood risk attenuation, including a pumping station, and landscaping (Phase II); erection of two Class E(a) retail foodstores with access, servicing and parking areas, plant compound, landscaping and associated works (Phase III and IV); and erection of a Class E(b)/Sui Generis Drive-Thru shop with access, servicing and parking areas, landscaping and associated works (Phase V). Outline planning application with approval of access and all other matters reserved (appearance, landscaping, layout, scale) for the phased development comprising: a minimum of 7.58ha of employment uses within Use Classes E(g), B2 and/or B8 and associated infrastructure to include access, parking and servicing areas, landscaping and associated works (Phase VI); infrastructure works to include an estate road, utility supplies, electricity sub-stations, surface water and flood risk attenuation and landscaping (Phase VII); the erection of a Class E(b)/Sui Generis Drive-Thru shop/restaurant with access, servicing and parking areas and associated works (Phase VIII); and the erection of a Class E(e) community medical centre with access, parking, landscaping and associated works (Phase IX).
Documents
Have your say
Your comment matters. Councils must consider every representation that raises material planning considerations.