← Sefton Council

Status

Registered House extension
Received
Not recorded
New homes
0

Full proposal

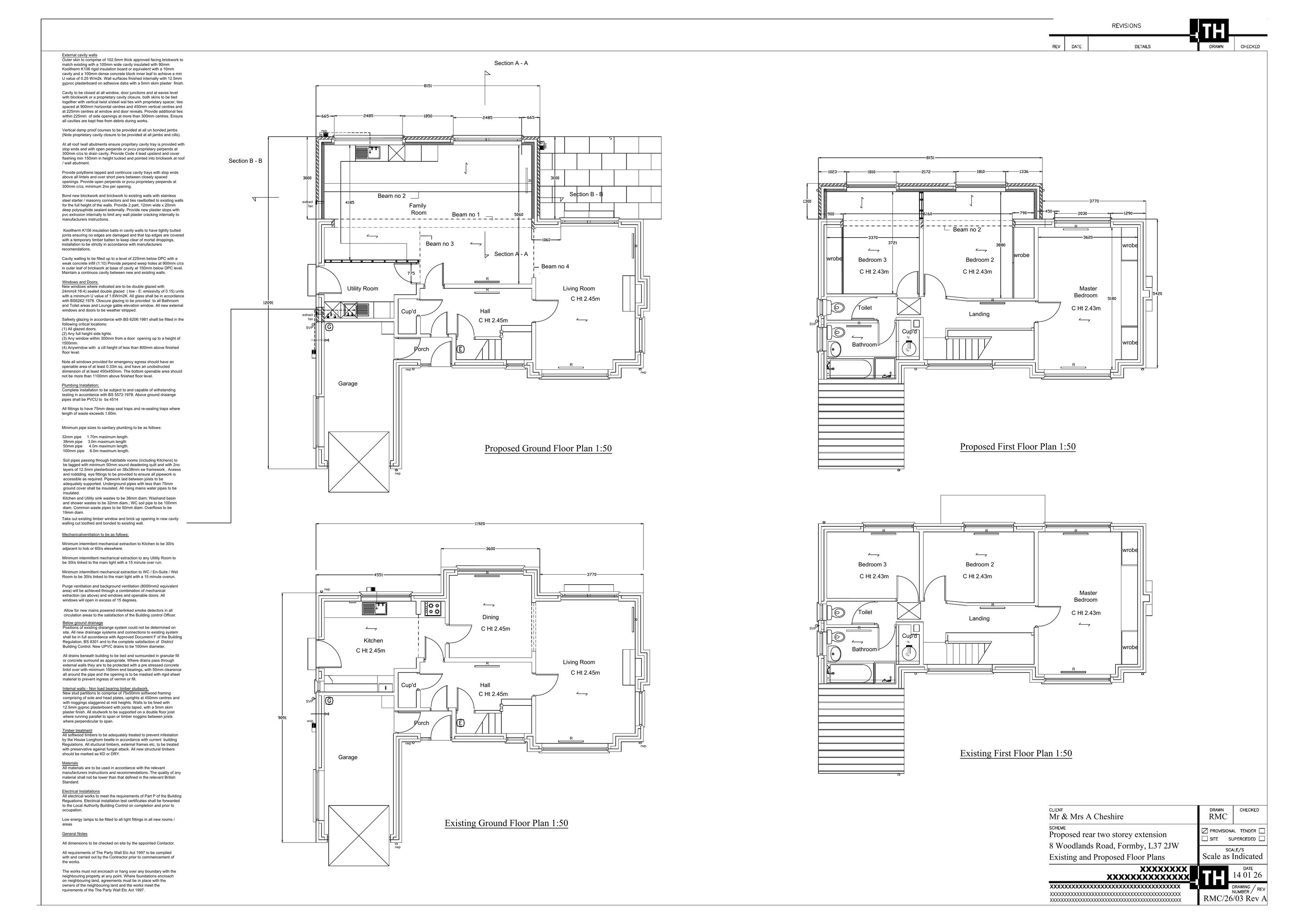
Demolition of single storey bay window to rear elevation and construction of two storey extension to rear elevation.

Have your say

Your comment matters. Councils must consider every representation that raises material planning considerations.

Write a comment