← Sefton Council

Status

Registered House extension
Received
Not recorded
New homes
0

Full proposal

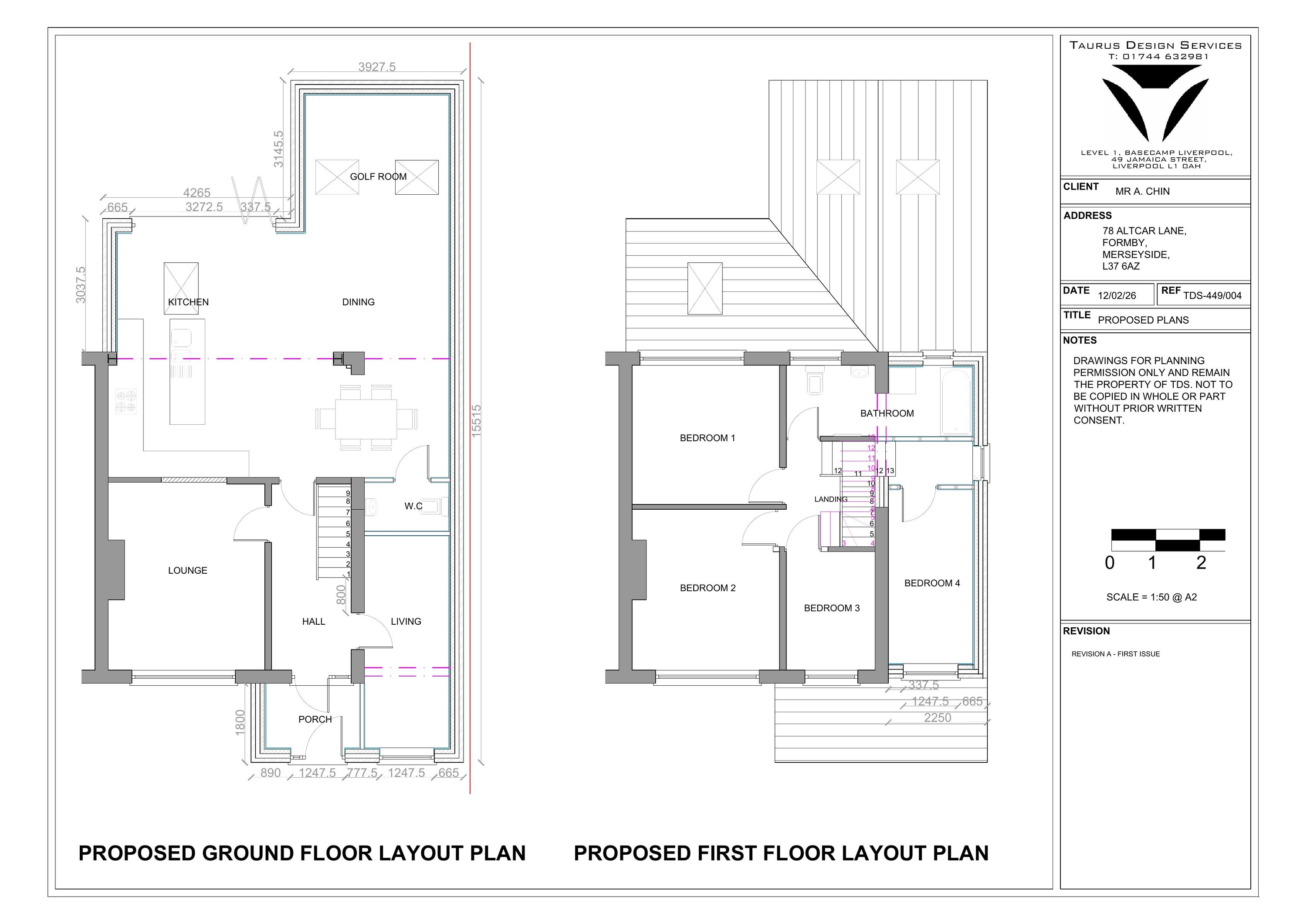
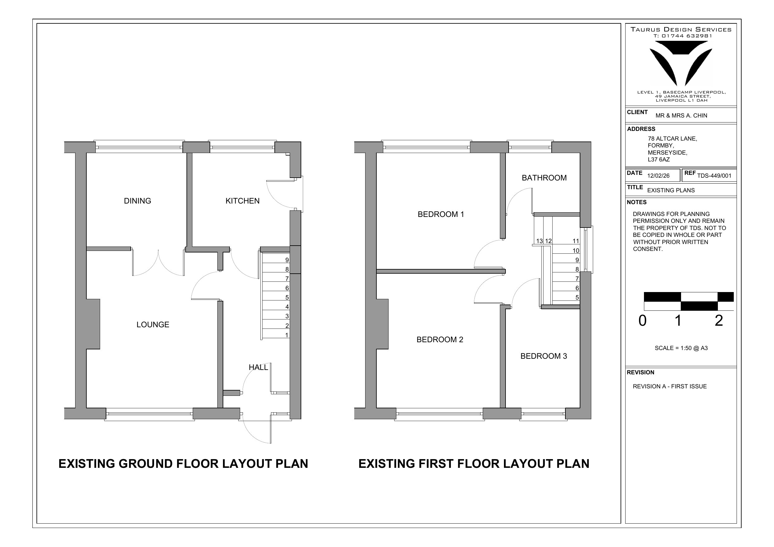
Proposed construction of 2 storey side extension with single storey rear extension and front porch.

Have your say

Your comment matters. Councils must consider every representation that raises material planning considerations.

Write a comment