DC/2026/00309
Sefton Council
Status
Registered
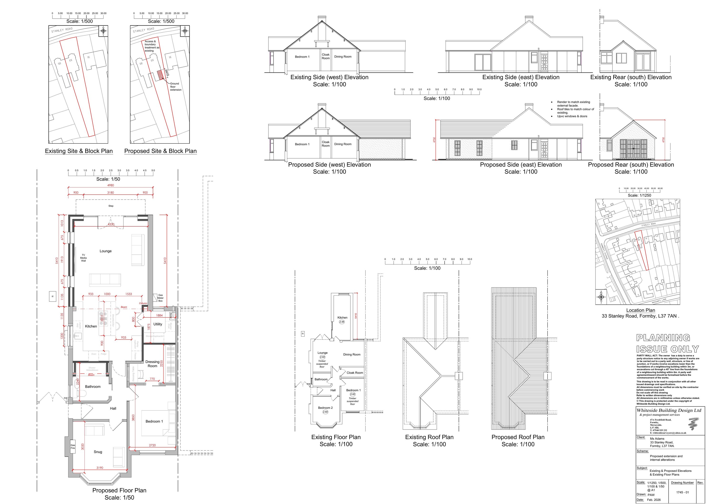
House extension
Received
Not recorded
New homes
0
Full proposal
Proposed ground floor rear elevation extension following demolition of existing rear extension
Documents
Have your say
Your comment matters. Councils must consider every representation that raises material planning considerations.