← Sefton Council

Status

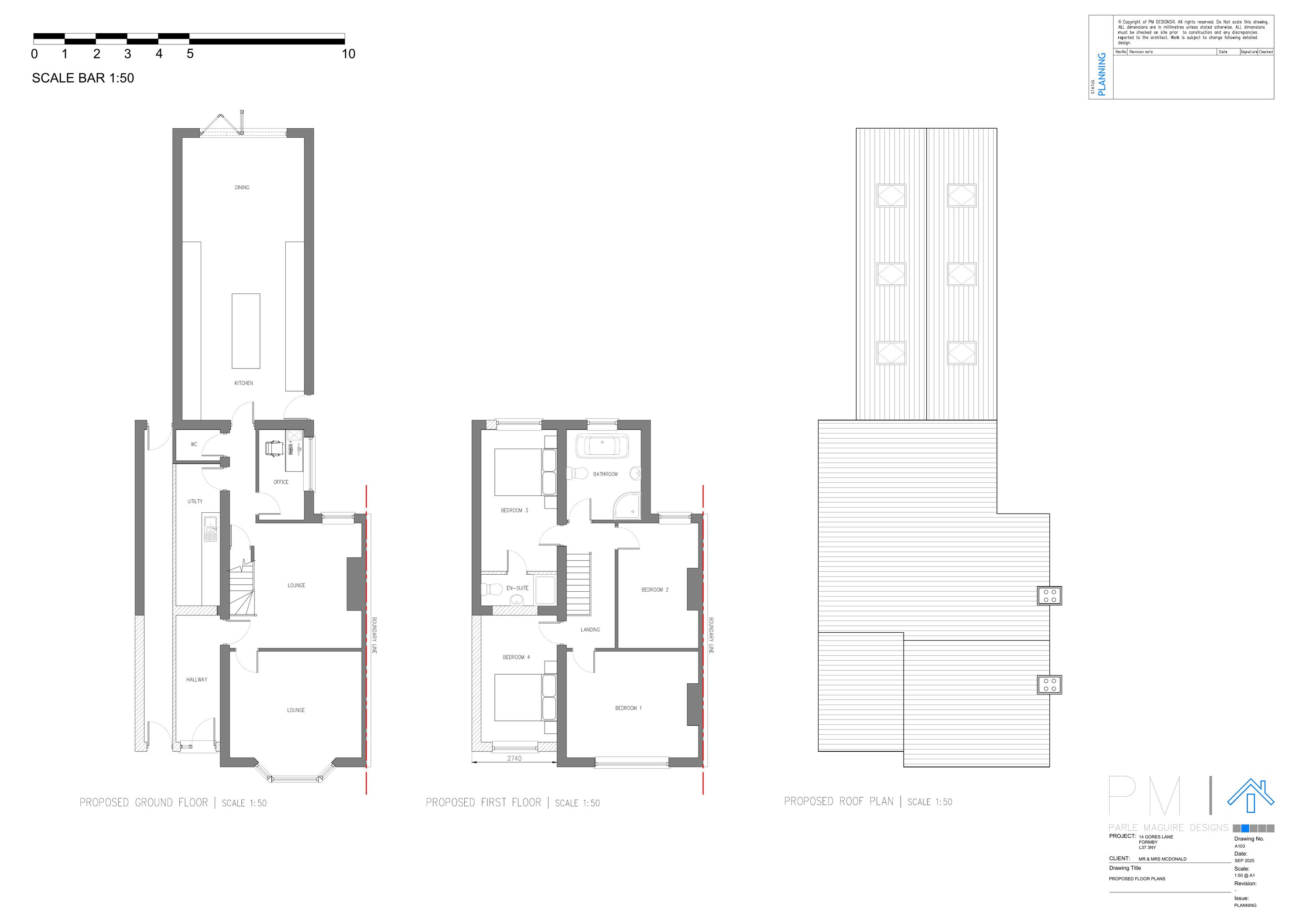
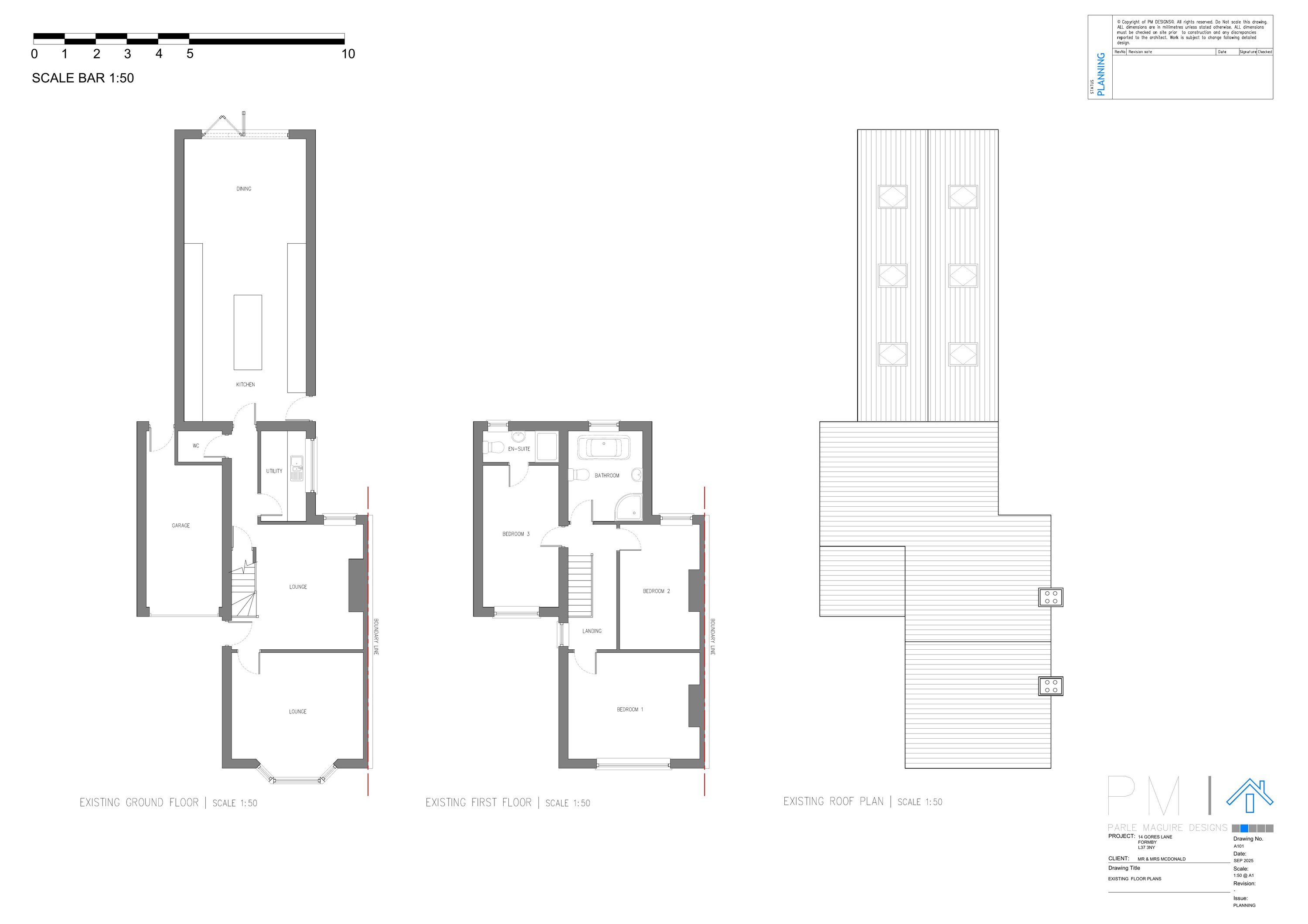
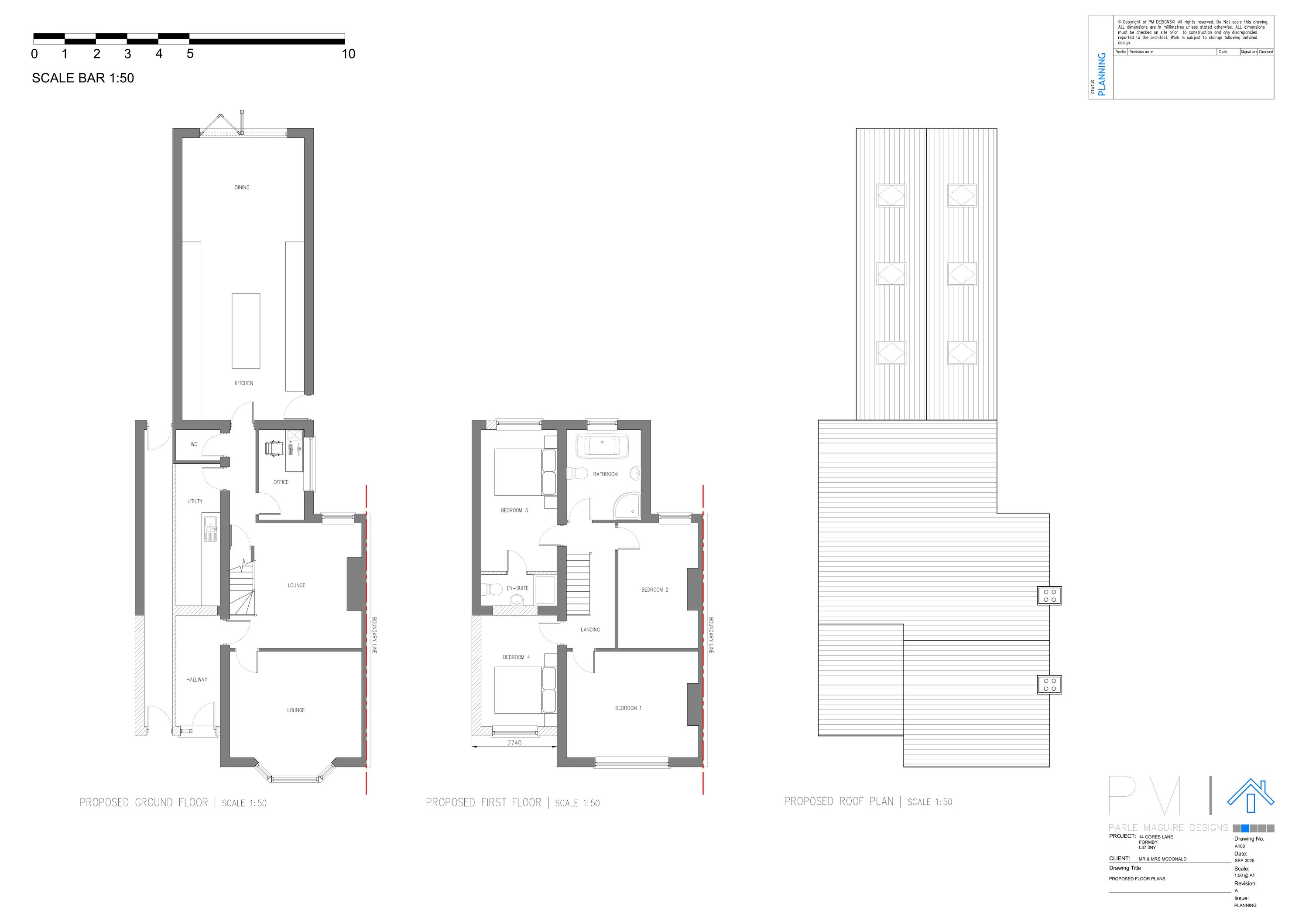
Registered House extension
Received
Not recorded
New homes
0

Full proposal

Erection of a two storey side extension after demolition of garage and external rear alteration

Have your say

Your comment matters. Councils must consider every representation that raises material planning considerations.

Write a comment