← Sefton Council

Status

Registered House extension
Received
Not recorded
New homes
0

Full proposal

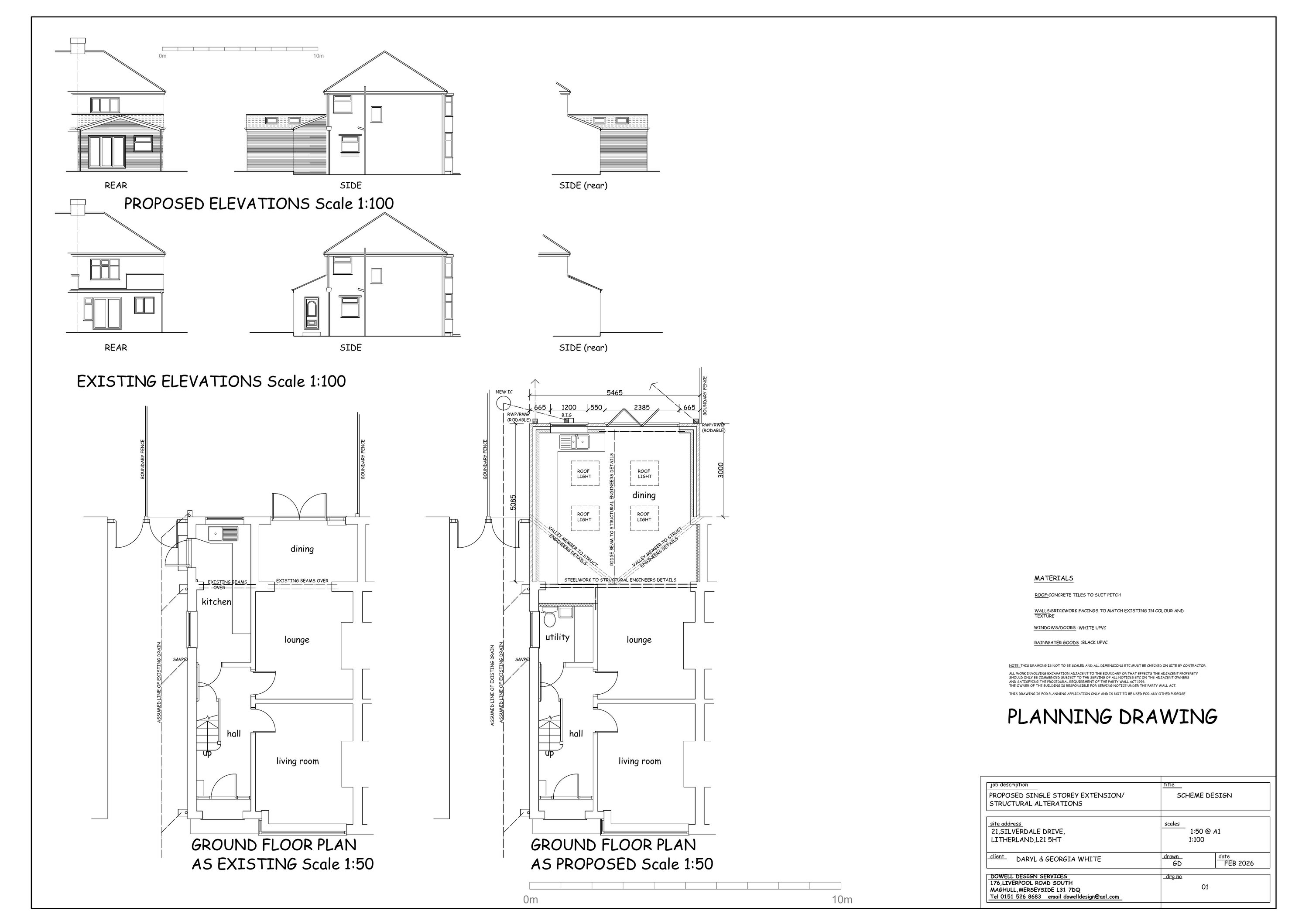
Single storey extension at rear following demolition of existing single storey extension/outrigger.

Documents

Application Form
Archived · Original link
Drawing
Archived · Original link
Drawing
Archived · Original link

Have your say

Your comment matters. Councils must consider every representation that raises material planning considerations.

Write a comment